Cisco N9396Y12C-SE1 NX-OS Mode Switch Hardware Installation Guide

PDF

Clearance requirements

Want to summarize with AI?

Log in

Overview

The required clearance for between the chassis and any other rack, device, or structure.

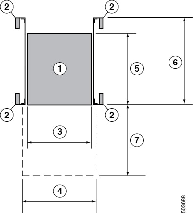
Provide the chassis with adequate clearance between the chassis and any other rack, device, or structure so that you can properly install the switch. Provide the chassis with adequate clearance to route cables, provide airflow, and maintain the switch. For the clearances required for an installation of this chassis in a four-post rack, see the figure.

clearance for the switch
Note
Both the front and rear of the chassis must be open to both aisles for airflow.

1

Chassis

5

Depth of the chassis

18.74 in (47.6 cm)

2

Vertical rack-mount posts and rails

6

Maximum extension of the bottom-support rails

36.0 in (91.0 cm)

3

Chassis width

17.4 in (44.2 cm)

7

Depth of the front clearance area (equal to the depth of the chassis).

22.27 in (56.68 cm)

4

Width of the front clearance area (equal to the width of the chassis with two rack-mount brackets that are attached to it).

19.0 in (48.26 cm)

Chassis height

3.4 in (8.63 cm)