The documentation set for this product strives to use bias-free language. For the purposes of this documentation set, bias-free is defined as language that does not imply discrimination based on age, disability, gender, racial identity, ethnic identity, sexual orientation, socioeconomic status, and intersectionality. Exceptions may be present in the documentation due to language that is hardcoded in the user interfaces of the product software, language used based on RFP documentation, or language that is used by a referenced third-party product. Learn more about how Cisco is using Inclusive Language.
この章では、サーバの設置方法について説明します。この章の内容は次のとおりです。
(注
) サーバの設置、操作、または保守を行う前に、『Regulatory Compliance and Safety Information for Cisco UCS C-Series Servers』を参照して重要な安全情報を確認してください。
警告
安全上の重要事項
「危険」の意味です。人身事故を予防するための注意事項が記述されています。機器の取り扱い作業を行うときは、電気回路の危険性に注意し、一般的な事故防止対策に留意してください。各警告の最後に記載されているステートメント番号を基に、装置に付属の安全についての警告を参照してください。
ステートメント 1071
ヒント
サーバの輸送が必要となる場合に備えて、輸送用の箱は保管しておいてください。
(注
) シャーシは厳密に検査したうえで出荷されています。輸送中の破損や内容品の不足がある場合には、ただちにカスタマー サービス担当者に連絡してください。
手順 1 段ボール箱からサーバを取り出します。梱包材はすべて保管しておいてください。
手順 2 カスタマー サービス担当者から提供された機器リストと梱包品の内容を照合します。すべての品目が揃っていることを確認してください。
手順 3 破損の有無を調べ、内容品の間違いや破損がある場合には、カスタマー サービス担当者に連絡してください。次の情報を用意しておきます。
ここでは、サーバの設置準備について説明します。この項の内容は次のとおりです。
警告
システムの過熱を防ぐため、最大推奨周囲温度の 35 °C (95 °F) を超えるエリアで操作しないでください。
ステートメント 1047
警告
いつでも装置の電源を切断できるように、プラグおよびソケットにすぐ手が届く状態にしておいてください。
ステートメント 1019
警告
この製品は、設置する建物に短絡(過電流)保護機構が備わっていることを前提に設計されています。この保護装置の定格が 250 V、15 A 以下であることを確認します。
ステートメント 1005
警告
装置は地域および国の電気規則に従って設置する必要があります。
ステートメント 1074
このサーバ用にシスコから提供されるスライド レールの場合、設置先のラックに 0.38 インチ(9.6 mm)の正方形、0.28 インチ(7.1 mm)の丸形、または #12-24 UNC のネジ穴があれば、設置用の工具は必要ありません。
このサーバがサポートしている 1 つのレール キット オプションが、シスコ部品 UCSC-RAILB-M4=(ボールベアリング レール キット)です。
Cisco UCS C240 M3 サーバ用のレール キットを使用しないでください。Cisco UCS C240 M4 サーバ専用のレール キットが設計されています。
この項では、シスコが販売するラック キットを使用して、サーバをラックに取り付ける方法について説明します。
警告
ラックへのユニットの設置や、ラック内のユニットの保守作業を行う場合は、負傷事故を防ぐため、システムが安定した状態で置かれていることを十分に確認してください。安全を確保するために、次のガイドラインを守ってください。
ラックに設置する装置が 1 台だけの場合は、ラックの一番下に取り付けます。
ラックに複数の装置を設置する場合は、最も重い装置を一番下に設置して、下から順番に取り付けます。
ラックにスタビライザが付いている場合は、スタビライザを取り付けてから、ラックに装置を設置したり、ラック内の装置を保守したりしてください。ステートメント 1006
a.
レール内の 3 つのキー付きスロットがサーバ側面の 3 個のペグの位置に合うように、内側レールをサーバの一方の側の位置に合わせます(図 2-1を参照)。
b.
キー付きスロットをペグに設定し、レールを前面に向けてスライドさせて、ペグの所定の位置にロックします。前面スロットには、前面ペグにロックするための金属製クリップがあります。
|
|
|
手順 2 両方のスライド レール部品で前面の固定プレートを開きます。スライド レール部品の前端に、バネ仕掛けの固定プレートがあります。取り付けペグをラック支柱の穴に挿入する前に、この固定プレートが開いている必要があります(図 2-2を参照)。
部品の外側で、背面を向いている緑色の矢印ボタンを押して、固定プレートを開きます。
|
|
|
||
|
|
|
手順 3 スライド レールを次のようにラックに取り付けます。
a.
片側のスライド レール部品の前端を、使用する前面ラック支柱の穴の位置に合わせます。
スライド レールの前端をラック支柱の外側に迂回させ、取り付けペグを外側前面からラック支柱の穴に入れます(図 2-2を参照)。
(注
) ラック支柱は、取り付けペグと開いた固定プレートの間にある必要があります。
b.
取り付けペグを、外側前面からラック支柱の穴に押し込みます。
c.
「PUSH」のマークが付いた固定プレートのリリース ボタンを押します。ばね仕掛けの固定プレートが閉じて、ペグが所定の位置にロックされます。
d.
スライド レールの長さを調整したら、背面取り付けペグを対応する背面ラック支柱の穴に差し込みます。スライド レールは前面から背面に向かって水平である必要があります。
背面取り付けペグを、ラック支柱の内側から背面ラック支柱の穴に入れます。
e.
2 つ目のスライド レール部品を、ラックの反対側に取り付けます。2 つのスライド レール部品が相互に同じ高さであり、水平になっていることを確認します。
f.
所定の位置に収まって留まるまで、各部品の内側のスライド レールをラック前方へ引き出します。
a.
サーバの側面に装着されている内側レールの背面を、ラック上の空のスライド レールの前端の位置に合わせます。
b.
内部の停止位置で止まるまで、内側レールをラック上のスライド レールに押し込みます。
c.
両方の内側レールでリリース クリップを背面に向けてスライドさせたら(図 2-3)、前面のスラム ラッチがラック支柱に収まるまで、サーバをラックに押し込みます。
|
|
|
||
|
|
|
手順 5 (任意)スライド レールに付属の 2 本のネジを使用して、サーバをさらに確実にラックに固定します。サーバを取り付けたラックを移動する場合は、この手順を実行します。
サーバをスライド レールに完全に押し込んだ状態で、サーバ前面のヒンジ付きスラム ラッチのレバーを開き、レバーの下にある穴からネジを挿入します。ネジがラック支柱のレールの静止部分に挿入され、サーバが引き抜かれるのを防ぎます。反対のスラム ラッチについても行ってください。
(注
) CMA は左右逆に取り付けることができます。CMA を逆に取り付けるには、取り付ける前に ケーブル マネジメント アーム(省略可能)の取り付けを逆にするを参照してください。
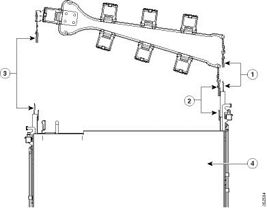
手順 1 サーバをラックに完全に押し込んだ状態で、サーバから最も離れた CMA アームの CMA タブを、ラック支柱に装着された固定スライド レールの終端にスライドさせます(図 2-4を参照)。カチッと音がしてロックされるまで、タブをレールの終端にスライドさせます。
手順 2 サーバに最も近い CMA タブを、サーバに装着された内側レールの終端にスライドさせます(図 2-4を参照)。カチッと音がしてロックされるまで、タブをレールの終端にスライドさせます。
手順 3 ラックの幅に一致するまで、CMA アセンブリの反対側の終端にある幅調整スライダを引き出します(図 2-4を参照)。
手順 4 幅調整スライダの終端にある CMA タブを、ラック支柱に装着された固定スライド レールの終端にスライドさせます(図 2-4を参照)。カチッと音がしてロックされるまで、タブをレールの終端にスライドさせます。
手順 5 各プラスチック製ケーブル ガイドの上部でヒンジ付きフラップを開き、必要に応じてケーブル ガイドを通してケーブルを配線します。
図 2-4 スライド レールの背面へのケーブル マネジメント アームの装着
|
|
|
||
|
|
|
手順 1 CMA アセンブリ全体を 180 度回転させます。プラスチック製ケーブル ガイドは、上を向いたままにしておく必要があります。
手順 2 サーバの背面を向くように、各 CMA アームの終端でタブを反転させます。
手順 3 幅調整スライダの終端にあるタブを回転させます。タブの外側の金属ボタンを長押しし、サーバの背面を向くようにタブを 180 度回転させます。
|
|
|
(注
) ここでは、サーバをスタンドアロン モードで使用する場合のサーバの電源投入方法、IP アドレスの割り当て方法、サーバ管理への接続方法について説明します。サーバを UCS 統合で使用する場合は、固有のケーブル接続および設定が必要です。Cisco UCS Manager 統合に適した設置方法を参照してください。
Shared LOM EXT モードでは、1 Gb イーサネット ポートおよび取り付け済みの Cisco 仮想インターフェイス カード(VIC)上のすべてのポートが、Cisco Integrated Management Interface(Cisco IMC)にアクセスできます。10/100/1000 専用管理ポートを使用して Cisco IMC にアクセスする場合は、次の手順の 手順 1の説明に従って、サーバに接続して NIC モードを変更できます。
システムに接続して初期設定を行うには、次の 2 つの方法があります。
(注
) システムをリモートで設定するには、システムと同じネットワーク上に DHCP サーバが存在する必要があります。このサーバ ノードの MAC アドレスの範囲を、DHCP サーバにあらかじめ設定しておく必要があります。MAC アドレスは、前面パネルの引き抜きアセット タグにあるラベルに印字されています(図 1-1~図 1-4 を参照)。このサーバ ノードでは、Cisco IMC に 6 つの MAC アドレスの範囲が割り当てられています。ラベルに印字されている MAC アドレスは、6 つの連続 MAC アドレスのうち最初のものです。
手順 1 電源コードをサーバの各電源装置に接続し、次に、接地された AC 電源コンセントに各コードを接続します。電源仕様については、電力仕様を参照してください。
最初のブート中、サーバがスタンバイ電源でブートするまでに約 2 分かかります。
システムの電源ステータスは、前面パネルのシステムの電源ステータス LED で確認できます(外部機能概要を参照)。LED がオレンジの場合、サーバはスタンバイ電源モードです。
手順 2 次のいずれかの方法を使用して、USB キーボードと VGA モニタをサーバに接続します。
手順 3 Cisco IMC 設定ユーティリティを開きます。
a.
前面パネルの電源ボタンを 4 秒間長押しして、サーバを起動します。
b.
ブートアップ時に、Cisco IMC 設定ユーティリティを開くよう求められたら F8を押します。
このユーティリティには 2 つのウィンドウがあり、F1 または F2 を押すことで切り替えることができます。
手順 4 Cisco IMC 設定ユーティリティのセットアップに進みます。
手順 1 電源コードをサーバの各電源装置に接続し、次に、接地された AC 電源コンセントに各コードを接続します。電源仕様については、電力仕様を参照してください。
最初のブート中、サーバがスタンバイ電源でブートするまでに約 2 分かかります。
システムの電源ステータスは、前面パネルのシステムの電源ステータス LED で確認できます(外部機能概要を参照)。LED がオレンジの場合、サーバはスタンバイ電源モードです。
手順 2 管理イーサネット ケーブルを背面パネルの専用管理ポートに差し込みます(外部機能概要を参照)。
手順 3 事前設定された DHCP サーバで、サーバ ノードに IP アドレスを割り当てられるようにします。
手順 4 割り当てられた IP アドレスを使用して、サーバ ノードの Cisco IMC にアクセスし、ログインします。IP アドレスを特定するには、DHCP サーバの管理者に相談してください。
(注
) サーバのデフォルトのユーザ名は admin、デフォルト パスワードは password です。
手順 5 Cisco IMC の [Server Summary] ページで、[Launch KVM Console]をクリックします。別の KVM コンソール ウィンドウが開きます。
手順 6 Cisco IMC の [Summary] ページで、[Power Cycle Server]をクリックします。システムがリブートします。
(注
) 次のキーボード操作を有効にするには、KVM コンソール ウィンドウがアクティブ ウィンドウである必要があります。
手順 8 プロンプトが表示されたら、F8を押して、Cisco IMC 設定ユーティリティを起動します。このユーティリティは、KVM コンソール ウィンドウで開きます。
このユーティリティには 2 つのウィンドウがあり、F1 または F2 を押すことで切り替えることができます。
手順 9 Cisco IMC 設定ユーティリティのセットアップに進みます。
システムに接続して Cisco IMC 設定ユーティリティを開いた後に、次の手順を実行します。
a.
NIC モードを設定して、サーバ管理で Cisco IMC にアクセスする際に使用するポートを選択します(ポートの識別については、図 1-5を参照)。
このモードでは、DHCP 応答が shared LOM ポートと Cisco カード ポートの両方に返されます。サーバがスタンドアロン モードであるために、Cisco カード接続でその IP アドレスが Cisco UCS Manager システムから取得されないと判別された場合は、その Cisco カードからのその後の DHCP 要求はディセーブルになります。スタンドアロン モードで Cisco カードを介して Cisco IMC に接続する場合は、Cisco Card NIC モードを使用します。
–
Riser1 を選択する場合、スロット 2 がプライマリ スロットですが、スロット 1 を使用できます。
–
Riser2 を選択する場合、スロット 5 がプライマリ スロットですが、スロット 4 を使用できます。
–
Flex-LOM を選択する場合、mLOM スロットで mLOM-style VIC を使用する必要があります。
b.
必要に応じて NIC 冗長化を変更するには、このユーティリティを使用します。このサーバでは、次の 3 つの NIC 冗長化設定を行うことができます。
–
[None]:イーサネット ポートは個別に動作し、問題が発生した場合にフェールオーバーを行いません。この設定は、専用 NIC モードでのみ使用できます。
–
[Active-standby]:アクティブなイーサネット ポートに障害が発生した場合、スタンバイ ポートにトラフィックがフェールオーバーします。
–
[Active-active]:すべてのイーサネット ポートが同時に使用されます。Shared LOM EXT モードでは、この NIC 冗長化の設定のみが可能です。Shared LOM と Cisco Card モードでは、Active-standby と Active-active の両方の設定が可能です。
手順 2 ダイナミック ネットワーク設定用に DHCP をイネーブルにするか、スタティック ネットワーク設定を開始するかを選択します。
(注
) DHCP をイネーブルにするには、DHCP サーバにこのサーバの MAC アドレスの範囲をあらかじめ設定しておく必要があります。MAC アドレスはサーバ背面のラベルに印字されています。このサーバでは、Cisco IMC に 6 つの MAC アドレスの範囲が割り当てられています。ラベルに印字されている MAC アドレスは、6 つの連続 MAC アドレスのうち最初のものです。
スタティック IPv4 および IPv6 設定には次が含まれます。
IPv6 の場合、ゲートウェイが不明な場合は、 :: (コロン 2 つ)を入力して none のままに設定することができます。
IPv6 の場合、 :: (コロン 2 つ)を入力してこれを none のままに設定することができます。
手順 3 (任意)このユーティリティを使用して、VLAN 設定を行います。
手順 4 F1を押して 2 番目の設定ウィンドウに移動したら、次のステップに進みます。
2 番目のウィンドウで F2を押すと、最初のウィンドウに戻ることができます。
手順 6 (任意)ダイナミック DNS をイネーブルにし、ダイナミック DNS(DDNS)ドメインを設定します。
手順 7 (任意)[Factory Default] チェックボックスをオンにすると、サーバは出荷時の初期状態に戻ります。
手順 8 (任意)デフォルトのユーザ パスワードを設定します。
手順 9 (任意)ポート設定の自動ネゴシエーションをイネーブルにするか、ポート速度およびデュプレックス モードを手動で設定します。
(注
) 自動ネゴシエーションは専用 NIC モードを使用する場合にのみ使用できます。自動ネゴシエーションはサーバが接続されているスイッチ ポートに基づいて自動的にポート速度およびデュプレックス モードを設定します。自動ネゴシエーションをディセーブルにした場合、ポート速度およびデュプレックス モードを手動で設定する必要があります。
手順 10 (任意)ポート プロファイルとポート名をリセットします。
手順 11 F5を押して、行った設定に更新します。新しい設定が表示され、メッセージ「Network settings configured」が表示されるまでに約 45 秒かかる場合があります。その後、次の手順でサーバを再起動します。
手順 12 F10を押して設定を保存し、サーバを再起動します。
(注
) DHCP のイネーブル化を選択した場合、動的に割り当てられた IP アドレスと MAC アドレスがブートアップ時にコンソール画面に表示されます。
ブラウザと Cisco IMC の IP アドレスを使用して、Cisco IMC 管理インターフェイスに接続します。IP アドレスは、行った設定に基づいています(スタティック アドレスまたは DHCP サーバによって割り当てられたアドレス)。
(注
) サーバのデフォルトのユーザ名は admin です。デフォルト パスワードは password です。
サーバを管理するには、これらのインターフェイスの使用手順について『 Cisco UCS C-Series Rack-Mount Server Configuration Guide 』または『 Cisco UCS C-Series Rack-Mount Server CLI Configuration Guide 』を参照してください。これらのマニュアルへのリンクは、次の URL の C シリーズ マニュアル ロードマップ内にあります。
このサーバには、次のような選択可能な NIC モード設定があります。
このモードでは、DHCP 応答が shared LOM ポートと Cisco カード ポートの両方に返されます。サーバがスタンドアロン モードであるために、Cisco カード接続でその IP アドレスが Cisco UCS Manager システムから取得されないと判別された場合は、その Cisco カードからのその後の DHCP 要求はディセーブルになります。Cisco カード接続でその IP アドレスが Cisco UCS Manager システムから取得されると判別された場合、応答にはサーバを自動的に UCSM モードにするパラメータが含まれます。
–
Riser1 を選択する場合、スロット 2 がプライマリ スロットですが、スロット 1 も使用できます。
このサーバには、次のような選択可能な NIC 冗長化設定があります。
–
[None]:イーサネット ポートは個別に動作し、問題が発生した場合にフェールオーバーを行いません。この設定は、専用 NIC モードでのみ使用できます。
–
[Active-standby]:アクティブなイーサネット ポートに障害が発生した場合、スタンバイ ポートにトラフィックがフェールオーバーします。
–
[Active-active]:すべてのイーサネット ポートが同時に使用されます。Shared LOM EXT モードでは、この NIC 冗長化の設定のみが可能です。Shared LOM と Cisco Card モードでは、Active-standby と Active-active の両方の設定が可能です。
Active-active 設定では、モード 5 またはバランス TLB(ロード バランシングを発信する適応型)を使用します。これは特別なスイッチのサポートを必要としないチャネル ボンディングです。発信トラフィックは、各スレーブの現在の負荷を実行(速度に関連して計算される)配信されます。着信トラフィックは現在のスレーブによって受信されます。受信のスレーブで障害が発生すると、別のスレーブは、失敗した受信のスレーブに MAC アドレスを引き継ぎます。
ここでは、システム BIOS について説明します。この項の内容は次のとおりです。
サーバには、シスコが提供し、承認しているファームウェアが使用されています。シスコは、各ファームウェア イメージと共にリリース ノートを提供しています。ファームウェアを更新するには、いくつかの方法があります。
ファームウェア レベルについては、下記のマニュアル ロードマップ リンクにある『 Cisco Host Upgrade Utility Quick Reference Guide 』を参照してください。
『 Cisco UCS C-Series Rack-Mount Server BIOS Upgrade Guide 』を参照してください。
『 Cisco UCS C-Series Rack-Mount Servers Configuration Guide 』を参照してください。
『 Cisco UCS C-Series Rack-Mount Servers CLI Configuration Guide 』を参照してください。
サーバの BIOS 設定を変更できます。詳しい手順は、BIOS 画面にも表示されます。
手順 1 ブート中にメッセージが表示されたら、F2キーを押して BIOS Setup ユーティリティに切り替えます。
(注
) このユーティリティの [Main] ページに、現在の BIOS のバージョンとビルドが表示されます。
手順 2 矢印キーを使って、BIOS メニュー ページを選択します。
手順 3 矢印キーを使って、変更するフィールドを反転表示にします。
手順 4 Enterキーを押して変更するフィールドを選択し、そのフィールドの値を変更します。
手順 5 Exit メニュー画面が表示されるまで右矢印キーを押します。
手順 6 Exit メニュー画面の指示に従って変更内容を保存し、セットアップ ユーティリティを終了します(または、F10キーを押します)。Escキーを押すと、変更内容を保存せずにユーティリティを終了できます。