この製品のマニュアルセットは、偏向のない言語を使用するように配慮されています。このマニュアルセットでの偏向のない言語とは、年齢、障害、性別、人種的アイデンティティ、民族的アイデンティティ、性的指向、社会経済的地位、およびインターセクショナリティに基づく差別を意味しない言語として定義されています。製品ソフトウェアのユーザーインターフェイスにハードコードされている言語、RFP のドキュメントに基づいて使用されている言語、または参照されているサードパーティ製品で使用されている言語によりドキュメントに例外が存在する場合があります。シスコのインクルーシブランゲージに対する取り組みの詳細は、こちらをご覧ください。
このドキュメントは、米国シスコ発行ドキュメントの参考和訳です。リンク情報につきましては、日本語版掲載時点で、英語版にアップデートがあり、リンク先のページが移動/変更されている場合がありますことをご了承ください。あくまでも参考和訳となりますので、正式な内容については米国サイトのドキュメントを参照ください。
この章では、ステータス LED を使用してハードウェアの問題を診断する方法と、ハードウェアコンポーネントの取り付けまたは交換の方法について説明します。この章の内容は次のとおりです。
組み込みの Cisco Integrated Management Controller(CIMC)GUI または CLI インターフェイスを使用して、サーバ インベントリ、状態、およびシステム イベント ログをモニタできます。次の URL で、使用しているファームウェア リリースのユーザ マニュアルを参照してください。
http://www.cisco.com/en/US/products/ps10739/products_installation_and_configuration_guides_list.html
シスコは、C シリーズ サーバ用の Cisco Server Configuration Utility も開発しています。このユーティリティを利用することにより、次のタスクを簡素化できます。
このユーティリティは、新しいサーバとともに CD で出荷されます。Cisco.com から ISO をダウンロードすることもできます。次の URL で、このユーティリティのユーザ マニュアルを参照してください。
http://www.cisco.com/en/US/docs/unified_computing/ucs/sw/ucsscu/user/guide/20/SCUUG20.html
ここでは、サーバの LED の位置と解釈について説明します。LED を確認すると、ステータスとトラブルシューティングに関する情報が得られます。この項では、次のトピックについて取り上げます。
前面パネル LED とその位置は、大型フォーム ファクタ(LFF)バージョンのサーバと小型フォーム ファクタ(SFF)バージョンのサーバで異なります。
•
図 3-1 に、LFF の前面パネル LED の名前と位置を示します。
•
図 3-2 に、SFF の前面パネル LED の名前と位置を示します。デフォルトの前面コントロール パネル モジュールの代わりに使用できる、オプションの DVD モジュールも示します。
•
表 3-1 に LED のさまざまな状態と説明を記します。これは LFF バージョンおよび SFF バージョンの両方のサーバに共通しています。
|
|
|
||
|
|
|
||
|
|
|
||
|
|
|
||
|
|
|
|
|
|
||
|
|
|
||
|
|
|
||
|
|
|
||
|
|
|
||
|
|
|
||
|
|
|
表 3-1 に、図 3-1 で示した LED が示す状態と説明を記します。
|
|
|
|---|---|
• • |
|
| • |
|
| • |
|
| これらの電源モードの定義については、「サーバの接続と電源投入(スタンドアロン モード)」を参照してください。 |
図 3-3 に、背面パネル LED の名前と位置を示します。これは M2 世代のサーバです(USB ポートおよび 10/100 イーサネット管理ポートが、M1 世代とはわずかに異なる位置にあります)。LED の状態の説明については、表 3-2を参照してください。
|
|
|
||
|
|
|
||
|
|
|
表 3-2 に、図 3-3 で示した LED が示す状態と説明を記します。
|
|
|
|---|---|
• • • • • これらの電源モードの定義については、「サーバの接続と電源投入(スタンドアロン モード)」を参照してください。 |
|
| • |
|
(注) 10/100 イーサネット リンク ステータス LED および速度 LED を組み合わせて読み取り、次のように解釈する必要があります。 |
|
• • • |
|
(注) 10/100/1000 ギガビット イーサネット リンク ステータス LED および速度 LED を組み合わせて読み取り、次のように解釈する必要があります。 |
|
• • • • • |
|
ここでは、コンポーネント取り付けのためサーバを準備する方法について説明します。この項の内容は次のとおりです。
•
「必要な工具」
•
「サーバ前面カバーの取り外しおよび取り付け(小型フォーム ファクタのみ)」
警告 この装置の設置、交換、または保守は、訓練を受けた相応の資格のある人が行ってください。ステートメント 1030
警告 この装置には複数の電源コードが付いている場合があります。感電の危険を減らすため、装置の保守を行う前に 2 本の電源コードを外してください。ステートメント 14
ヒント サーバに電源装置の冗長性(2 つ以上の電源装置)を指定している場合は、冗長性が確保され、ホットプラグ可能であるため、電源装置の交換時にサーバの電源をオフにする必要はありません。サーバのハード ドライブもホットプラグ可能です。
•
主電源モード:サーバのすべてのコンポーネントに電力が供給され、ハード ドライブ内のオペレーティング システムが稼働できます。
•
スタンバイ電源モード:電力はサービス プロセッサと冷却ファンにだけに供給され、このモードでサーバを安全に電源オフできます。
次の方法のいずれかを使用して、グレースフル シャットダウンまたは緊急シャットダウン(ハード シャットダウン)を実行できます。
•
CIMC 管理インターフェイスを使用します。『 Cisco UCS C-Series Rack-Mount Server Configuration Guide 』または『 Cisco UCS C-Series Rack-Mount Server CLI Configuration Guide 』 を参照してください。
•
サーバの前面パネルにある 電源 ボタンを使用します。 電源 ボタンを使用するには、次の手順に従います。
ステップ 1
電源ステータス LED(「前面パネル LED」を参照)の色を確認します。
•
グリーンは、サーバが主電源モードであり、安全に電源オフするにはシャットダウンする必要があることを示します。ステップ 2 に進みます。
•
オレンジは、サーバがスタンバイ モードになっており、安全に電源オフできることを示します。ステップ 3 に進みます。
ステップ 2
次の手順でグレースフル シャットダウンまたはハード シャットダウンを実行します。
•
グレースフル シャットダウン: 電源 ボタンを押して放します。オペレーティング システムがグレースフル シャットダウンを実行し、サーバはスタンバイ モード(電源ステータス LED がオレンジ)になります。
•
緊急時シャットダウン:4 秒間 電源 ボタンを押したままにして主電源モードを強制終了し、スタンバイ モードを開始します。
ステップ 3
サーバの電源装置から電源コードを取り外し、サーバの電源を完全にオフにします。
ラック内のサーバを取り出して取り付けるには、次の手順に従います。
ヒント サーバを前方にスライドさせることで、上部カバーを取り外して内部コンポーネントの確認および作業を安全に行える場合は、ラックからサーバを取り出す必要はありません。上部カバーを取り外す前に、すべての電源コードを外してください。
ステップ 1
次のようにして、ラックからサーバを取り出します。
a.
サーバからすべてのケーブルを取り外します。CMA を経由するケーブルはそのままにしておくことができます。
a.
サーバ前面を各ラック支柱に固定している 2 個の非脱落型ネジを緩めます。
b.
スライド レールが内部ロックで止まるまで、サーバをラック前面に引き出します。
c.
各スライド レールにある取り出しリリース クリップを押し(図 2-4 を参照)、サーバがスライド レールから離れるまで水平に引き出します。
ステップ 2
次のようにして、サーバをラックに取り付けます。
a.
サーバ側面にある取り付けブラケットを、空のスライド レールの前側に合わせます。
b.
スライド レールが内部停止位置で止まるまで、サーバをスライド レールに押し込みます。
c.
各サイド レールにある取り付けリリース クリップを押し(図 2-4 を参照)、フロント フランジがラック支柱に接触するまで、サーバを水平に押し込みます。
d.
各フランジにある取り付けネジを締め、サーバをラック支柱に固定します。
サーバ上部カバーの取り外しまたは取り付けを行うには、次の手順に従います。
警告 この装置には複数の電源コードが付いている場合があります。感電の危険を減らすため、装置の保守を行う前に 2 本の電源コードを外してください。ステートメント 14
ヒント ハード ドライブまたは電源装置の交換時は、カバーを取り外す必要はありません。
a.
No.2 プラス ドライバを使用して、上部カバーを固定している 2 個のネジを外します(M1 世代のみ)。
(注) UCS C200 M2 世代のサーバにはカバーのネジがありません。
b.
解除ボタンを押し、すべり止めパッドを使用して、カバーが停止するまでカバーをサーバの後ろ側に約 2.5 cm 押します。
a.
完全に閉じたときの位置から 2.5 cm 後ろの位置にカバーをセットします。カバーの内側の各端にあるアライメント ペグ(3 個)を使用して、カバーをシャーシのアライメント ノッチに合わせます。
b.
解除ボタンのカチッという音がするまで、カバーをサーバの前側に押します。
c.
2 個のネジを再度取り付けて、カバーを元どおり固定します(M1 世代のみ)。
|
|
|
||
|
|
|
(注) 取り付け手順に指示されていない場合は、前面カバーを取り外す必要はありません。
SFF バージョンのサーバ(PID UCSC-BSE-SFF-C200)の前面カバーを取り外すか、再度取り付けるには、次の手順に従います。
a.
「サーバ上部カバーの取り外しおよび取り付け」の説明に従って、サーバ上部カバーを取り外します。
b.
No.2 プラス ドライバを使用して、前面カバーを固定している 10 個のネジを外します。前面カバーの上面に 4 個、各側面に 3 個ずつのネジがあります(図 3-5 を参照)。
ステップ 2
次のようにして、前面カバーを再度取り付けます。
a.
前面カバーを元の位置にセットし、カバーのネジ穴とシャーシのネジ穴の位置を合わせます。
c.
「サーバ上部カバーの取り外しおよび取り付け」の説明に従って、上部カバーを再度取り付けます。
|
|
|
ここでは、この章で扱うコンポーネントの位置を示します。上から見下ろした図を示します。上部カバー、内部のケーブル カバー、および内部のエアー バッフルは取り除いてあります。
•
図 3-6 は大型フォーム ファクタ(LFF)バージョンのサーバです。
•
図 3-7 は小型フォーム ファクタ(SFF)バージョンのサーバです。
図 3-6 大型フォーム ファクタの交換可能なコンポーネントの位置(上から見た図)
|
|
|
||
|
|
|
||
|
|
|
||
|
|
|
||
|
|
|
||
|
|
|
図 3-7 小型フォーム ファクタの交換可能なコンポーネントの位置(上から見た図)
|
|
|
||
|
|
|
||
|
|
|
||
|
|
|
||
|
|
|
||
|
|
|
||
|
|
|
警告 この装置には複数の電源コードが付いている場合があります。感電の危険を減らすため、装置の保守を行う前に 2 本の電源コードを外してください。
ステートメント 14
警告 ブランクの前面プレートおよびカバー パネルには、3 つの重要な機能があります。シャーシ内の危険な電圧および電流による感電を防ぐこと、他の装置への電磁干渉(EMI)の影響を防ぐこと、
およびシャーシ内の冷気の流れを適切な状態に保つことです。システムは、必ずすべてのカード、
前面プレート、前面カバー、および背面カバーを正しく取り付けた状態で運用してください。
ステートメント 1029
警告 クラス 1 レーザー製品です。
ステートメント 1008
ヒント 前面パネルにあるロケータ ボタンを押すと、サーバの前面パネルと背面パネル上のロケータ LED が点滅します。このボタンの確認によって、ラックの背面側に移動しても対象のサーバを特定できます。LED の位置については、「ステータス LED」を参照してください。
ここでは、サーバ コンポーネントの取り外しと交換の方法について説明します。この項では、次のトピックについて取り上げます。
•
「前面パネルのコントロール モジュールまたは DVD モジュールの交換 (小型フォーム ファクタのみ)」
•
「ハード ドライブまたはソリッド ステート ドライブの取り付け」
•
「トラステッド プラットフォーム モジュールの取り付け」
•
「LSI MegaRAID バッテリ バックアップ ユニットの交換」
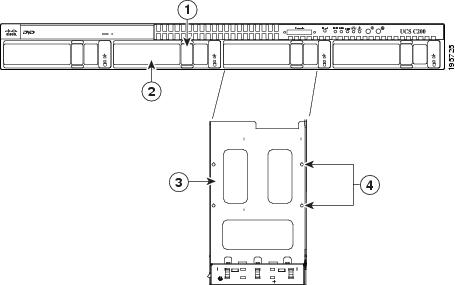
小型フォーム ファクタ バージョンのサーバ(PID UCSC-BSE-SFF-C200)では、交換可能な前面パネルのコントロール モジュールまたはオプションの DVD モジュールを所定の位置に取り付けることができます。ここでは、前面パネルのコントロール モジュールまたは DVD モジュールを交換する方法について説明します。
このコンポーネントに関して認定されているサポート対象の部品番号は、時間の経過とともに変更されることがあります。交換可能なコンポーネントの最新リストについては、次の URL を参照し、『 Technical Specifications 』までスクロールしてください。
http://www.cisco.com/en/US/products/ps10493/products_data_sheets_list.html
前面パネルのコントロール モジュールまたは DVD モジュールを交換するか取り付けるには、次の手順に従います。
ステップ 1
次のようにして、モジュールを取り外します(図 3-8 を参照)。
a.
「サーバのシャットダウンおよび電源オフ」の説明に従ってサーバの電源をオフにします。
c.
上部カバーと前面カバーを取り外せるように、サーバをラックの前方に引き出します。場合によっては、背面パネルからケーブルを取り外して隙間を空ける必要があります。
d.
「サーバ上部カバーの取り外しおよび取り付け」 に示すように、上部カバーを取り外します。
e.
「サーバ前面カバーの取り外しおよび取り付け(小型フォーム ファクタのみ)」の説明に従って、前面カバーを取り外します。
f.
モジュールのコネクタから 2 本のケーブル ハーネスを外します。
g.
モジュールをシャーシに固定している 1 個の固定ネジを外します。
h.
モジュールの下部にある 3 個の鍵状の穴がシャーシの 3 個のペグから外れるまで、モジュールをサーバの前方に約 0.25 インチ(6 mm)スライドさせます。
i.
モジュールをまっすぐに持ち上げて、シャーシから外します。
ステップ 2
次のようにして、モジュールを取り付けます(図 3-8 および図 3-9 を参照)。
a.
モジュールの下部にある 3 個の鍵状の穴をシャーシの 3 個のペグに合わせて、新しいモジュールをシャーシにセットします。
b.
3 個の鍵状の穴がシャーシの 3 個のペグにロックされるまで、モジュールをシャーシの後方に約 0.25 インチ(6 mm)スライドさせます。
c.
モジュールをシャーシに固定する固定ネジを 1 個取り付けます。
d.
モジュールのコネクタに 2 本のケーブル ハーネスを再度取り付けます。
(注) ケーブルの接続および経路は、モジュールの 2 つのタイプで異なります。別のタイプのモジュールに交換する場合は、ケーブルおよびマザーボードへの接続を交換する必要があります。図 3-9を参照してください。
e.
「サーバ前面カバーの取り外しおよび取り付け(小型フォーム ファクタのみ)」の説明に従って、前面カバーを再度取り付けます。
(注) 前面カバーの後端を黒いプラスチック ケーブル カバーの下に入れる必要があります。
f.
「サーバ上部カバーの取り外しおよび取り付け」の説明に従って、上部カバーを再度取り付けます。
g.
サーバをラックに元どおりに配置し、電源コードおよびその他のケーブルを再度接続したら、 電源 ボタンを押してサーバの電源をオンにします。
図 3-8 前面パネルのコントロール モジュールまたは DVD モジュールの取り外しおよび取り付け
|
|
|
||
|
|
|
|
|
|
||
|
|
|
このコンポーネントに関して認定されているサポート対象の部品番号は、時間の経過とともに変更されることがあります。交換可能なコンポーネントの最新リストについては、次の URL を参照し、『 Technical Specifications 』までスクロールしてください。
http://www.cisco.com/en/US/products/ps10493/products_data_sheets_list.html
ヒント ハード ドライブはホットプラグ可能なため、ハード ドライブの交換時にサーバのシャットダウンまたは電源オフを行う必要はありません。
(注) 同一サーバにハード ドライブとソリッド ステート ドライブ(SSD)を混在させることができます。ただし、ハード ドライブと SSD が混在する論理ボリューム(仮想ドライブ)を構成することはできません。つまり、論理ボリュームを作成するときは、すべてハード ドライブまたはすべて SSD にする必要があります。
(注) ハード ドライブの取り付け後に RAID 構成を変更する必要が生じた場合は、大容量記憶装置用の LSI 構成ユーティリティを使用します。詳細については、「「RAID コントローラに関する考慮事項」」を参照してください。
(注) RAID ボリュームを構成する際は、業界標準の方法に従って容量が同じドライブを使用することを推奨します。容量が異なるドライブを使用すると、RAID ボリュームの全ドライブにおいて、最も容量の小さなドライブで使用可能な容量が使用されることになります。
(注) UCS C200 M2 SFF サーバと共に販売される 500 GB SATA ドライブ(A03-D500GC3)および 1 TB SATA ドライブ(A03-D1TBSATA)は、最高速度 6 G でサポートされます。
ホットプラグ可能なハード ドライブの交換または取り付けを行うには、次の手順に従います。
ステップ 1
次のようにして、交換するハード ドライブを取り外すか、空のベイからブランク パネルを取り外します(図 3-11 または図 3-13 を参照)。
a.
解除ボタンを押し、イジェクト レバーが見えるようにします。
b.
イジェクト レバーを手前に引き、ハード ドライブ スレッドをドライブ ベイから引き出します。
c.
既存のハード ドライブを交換する場合は、4 個の固定ネジを外して、スレッドからハード ドライブを取り外します。
–
3.5 インチ ドライブを搭載した LFF バージョンのサーバの場合、スレッド底面に 4 個のネジがあります。
–
2.5 インチ ドライブを搭載した SFF バージョンのサーバの場合、スレッドの各側面にネジが 2 個ずつあります。
ステップ 2
次のようにして、新しいハード ドライブを取り付けます(図 3-11 または図 3-13 を参照)。
a.
コネクタを背面側にして、ハード ドライブをスレッドに配置します。
–
3.5 インチ ドライブを搭載した LFF バージョンのサーバの場合、スレッド底面に 4 個のネジを取り付けます。
–
2.5 インチ ドライブを搭載した SFF バージョンのサーバの場合、スレッドの各側面に 2 個ずつネジを取り付けます。
c.
イジェクト レバーを開いたまま、ドライブがバックプレーンで止まるまでスレッドをドライブ ベイに押し込みます。
d.
カチッという音がしてしっかり収まるまで、イジェクト レバーを水平に押します。
図 3-10 ドライブの番号付けおよび物理的方向、サーバ前面側(大型フォーム ファクタ)
図 3-11 ハード ドライブの取り外しおよび取り付け(大型フォーム ファクタ)
|
|
|
||
|
|
|
図 3-12 ドライブの番号付けおよび物理的方向、サーバ前面側(小型フォーム ファクタ)
図 3-13 ハード ドライブの取り外しおよび取り付け(小型フォーム ファクタ)
|
|
|
||
|
|
|
このコンポーネントに関して認定されているサポート対象の部品番号は、時間の経過とともに変更されることがあります。交換可能なコンポーネントの最新リストについては、次の URL を参照し、『 Technical Specifications 』までスクロールしてください。
http://www.cisco.com/en/US/products/ps10493/products_data_sheets_list.html
電源装置の交換または取り付けを行うには、次の手順に従います。
(注) 電源装置を冗長化(2 台以上の電源装置)したサーバを注文した場合は、ホットプラグ可能であるため、電源装置の交換時にサーバの電源をオフにする必要はありません。
ステップ 1
次のようにして、電源装置を取り外すか、ブランク パネルを空のベイから取り外します。
–
サーバに電源装置が 1 つしかない場合は、「サーバのシャットダウンおよび電源オフ」の説明に従ってサーバをシャットダウンし、電源をオフにします。
–
サーバに電源装置が 2 台ある場合、電源装置はホットプラグ可能なため、サーバをシャット ダウンする必要がありません。
c.
リリース レバーを電源装置またはブランク パネルの中心部に向けて押し、電源装置がバックプレーンから外れるまでハンドルを引っ張ります(図 3-14 を参照)。
ステップ 2
次のようにして、新しい電源装置を取り付けます。
a.
新しい電源装置をベイに挿入し、リリース レバーがカチッという音を立ててロックされるまで、電源装置を押し込みます。
|
|
|
このコンポーネントに関して認定されているサポート対象の部品番号は、時間の経過とともに変更されることがあります。交換可能なコンポーネントの最新リストについては、次の URL を参照し、『 Technical Specifications 』までスクロールしてください。
http://www.cisco.com/en/US/products/ps10493/products_data_sheets_list.html
ステップ 1
次のようにして、ファン トレイを取り外します。
a.
「サーバのシャットダウンおよび電源オフ」の説明に従ってサーバの電源をオフにします。
c.
上部カバーを取り外せるように、サーバをラックの前方に引き出します。場合によっては、背面パネルからケーブルを取り外して隙間を空ける必要があります。
d.
「サーバ上部カバーの取り外しおよび取り付け」 に示すように、上部カバーを取り外します。
e.
ファン トレイの上にあるケーブル カバーを取り外し、横に置きます。
(注) サーバのファン トレイにオプションの LSI バッテリ バックアップ ユニット(BBU)が取り付けられている場合は、BBU を取り外す必要があります。ファン トレイのブラケットに BBU を固定している 3 個のネジを外して、BBU を横に置きます。詳細については、「LSI MegaRAID バッテリ バックアップ ユニットの交換」を参照してください。
f.
バッテリ ユニット ブラケットをファン トレイに固定している 3 個のネジを外して、バッテリ ユニット ブラケットを取り外し、ケーブル ハーネスのためのスペースを作ります(図 3-15 を参照)。
g.
ファン トレイ コネクタからケーブル ハーネスを取り外します。
h.
ファン トレイをシャーシ支柱に固定している 2 個のネジを外し、トレイを持ち上げてシャーシから外します。
ステップ 2
次のようにして、ファン トレイを取り付けます。
a.
ファン トレイのブラケットの 2 つの穴をシャーシ支柱に合わせ、新しいファン トレイをシャーシ内に配置します。
b.
トレイをシャーシ支柱に固定する 2 個のネジを再度取り付けます。
c.
ケーブル ハーネスをファン トレイ コネクタに再度取り付けます。
d.
ファン トレイにバッテリ ユニット ブラケットを再度取り付けて、3 個のネジで固定します。
(注) オプションの LSI BBU をファン トレイから取り外した場合は、3 個のネジで BBU を再度取り付けてファン トレイに固定します。
f.
サーバをラックに元どおりに配置し、電源コードおよびその他のケーブルを再度接続したら、 電源 ボタンを押してサーバの電源をオンにします。
|
|
|
||
|
|
|
•
「メモリ パフォーマンスに関するガイドラインおよび装着規則」
(注) サーバ パフォーマンスを最大限に引き出すには、メモリ モジュールの取り付けと交換を行う前に、メモリ パフォーマンスに関するガイドラインと装着規則を熟知している必要があります。
このコンポーネントに関して認定されているサポート対象の部品番号は、時間の経過とともに変更されることがあります。交換可能なコンポーネントの最新リストについては、次の URL を参照し、『 Technical Specifications 』までスクロールしてください。
http://www.cisco.com/en/US/products/ps10493/products_data_sheets_list.html
(注) 非 ECC UDIMM では温度センサーはサポートされません。
各メモリ チャネルは文字で識別されます(チャネル A、B、および C は CPU1、チャネル D、E、および F は CPU2)。図 3-16を参照してください。
各メモリ バンクは数字で識別されます。(1 または 2)。たとえば、DIMM スロット A1、B1、および C1 はバンク 1 に属し、A2、B2、および C2 はバンク 2 に属しています。バンク 1 の各スロットは青で、バンク 2 の各スロットは黒です。図 3-16を参照してください。
サーバのメモリ構成を検討する際は、次の項目を考慮に入れます。
•
サーバ内の DIMM はすべて同じタイプ、速度、サイズにする必要があります。サイズまたはクロック レートの異なる DIMM を同じサーバ内に混在させないでください。混在させると、メモリ システムの速度が装着された中で最低速の DIMM の速度に設定されます。
•
DIMM の構成には、チャネルあたり 1 つの DIMM 構成(1DPC)とチャネルあたり 2 つの DIMM 構成(2DPC)があります。
•
青と黒の DIMM スロットがあります。バンクの青のスロットから使用します。
•
(M2 世代のみ)低電圧(1.35 V)DIMM と標準電圧 DIMM(1.5 V)を同じサーバに混在させることができます。この構成では、システム BIOS はデフォルトで標準電圧(パフォーマンス モード)で動作します。「低電圧 DIMM に関する考慮事項(M2 世代のみ)」を参照してください。
(注) 低電圧 DIMM は M2 世代のサーバでのみサポートされます。
この M2 世代のサーバは、低電圧(1.35 V)DIMM または標準電圧(1.5 V)DIMM で注文できます。以下の点に注意してください。
•
サーバ内の低電圧 DIMM は、同じメーカー、タイプ、速度、サイズである必要があります。
•
低電圧 DIMM と標準電圧 DIMM を同じサーバに混在させることができます。この構成では、システム BIOS はデフォルトで標準電圧(パフォーマンス モード)で動作します。つまり、すべての DIMM が低電圧 DIMM でない限り、サーバを省電力モードで動作させることはできません。
(注) 最大メモリ周波数が 1333 MHz 未満の CPU は、省電力モードでのみ LV DIMM の動作をサポートし、パフォーマンス モードではサポートしません。ただしサーバにこれらの CPU のいずれかがあると、LV DIMM のモニタリング出力で、[Power Saving Mode] と [Performance Mode] の両方に同じ電圧が表示されます。この場合 [Performance Mode] はアクティブではなく、このフィールドに [Power Saving Mode] フィールドの値がミラーリングされるだけです。
•
M2 世代のサーバには、取り付けられている DIMM がすべて低電圧 DIMM である場合に、DDR メモリ モードの変更に使用できる BIOS セットアップ ユーティリティの設定があります。この設定にアクセスする手順は、次のとおりです。
ステップ 1
ブート中にメッセージが表示されたら、F2 キーを押して BIOS Setup ユーティリティに切り替えます。
ステップ 3
[Low Voltage DDR Mode] を選択します。
ステップ 4
ポップアップ ウィンドウで、[Power Saving Mode] または [Performance Mode] を選択します。
•
[Power Saving Mode]:低電圧メモリ動作を優先します。この設定は、取り付けられている DIMM がすべて低電圧 DIMM である場合にのみ使用できます。
•
[Performance Mode]:パフォーマンス メモリ動作を優先します。低電圧 DIMM ペアと標準電圧 DIMM ペアを混在させると、システムはデフォルトでこの設定になります。
ステップ 5
F10 を押して変更内容を保存し、セットアップ ユーティリティを終了します。
•
CPU は、CPU 1 のチャネル A と B に同じ構成、サイズ、速度の DIMM を装着した場合にだけ、メモリのミラーリングをサポートします。チャネル C には装着しないでください。3 つのチャネルに DIMM を装着した場合、メモリのミラーリングは自動的にディセーブルになります。
•
CPU 2 に DIMM を装着する場合は、チャネル D と E に同じ構成、サイズ、速度の DIMM を装着する必要があります。チャネル F には装着しないでください。3 つのチャネルに DIMM を装着した場合、メモリのミラーリングは自動的にディセーブルになります。
•
メモリのミラーリングを使用した場合、信頼性の理由で DRAM サイズが 50% 減少します。スペア メモリはサポートされていません。
DIMM の取り付けまたは交換を行うには、次の手順に従います。
(注) DIMM の取り外しまたは取り付けを行う前に、DIMM の装着規則を参照します。「メモリ パフォーマンスに関するガイドラインおよび装着規則」を参照してください。
ステップ 1
次のようにして、既存の DIMM を取り外します。
a.
「サーバのシャットダウンおよび電源オフ」の説明に従ってサーバの電源をオフにします。
c.
上部カバーを取り外せるように、サーバをラックの前方に引き出します。場合によっては、背面パネルからケーブルを取り外して隙間を空ける必要があります。
d.
「サーバ上部カバーの取り外しおよび取り付け」 に示すように、上部カバーを取り外します。
e.
CPU と DIMM の上にあるエアー バッフルを取り外し、横に置きます。
f.
DIMM スロットの両端にあるイジェクト レバーを押し下げます。
g.
DIMM 上部の両隅をしっかり持って、サーバから取り外します。静電気防止用マットまたは静電気防止用パッケージに DIMM を置きます。
a.
DIMM スロットの両端にあるイジェクト レバーを開いたまま、DIMM のアライメント ノッチを、DIMM スロット内のアライメント キーに向けます。
b.
イジェクト レバーがカチッという音を立てて DIMM 内にロックされるまで、DIMM 上部の両隅を押し下げます。
d.
サーバをラックに元どおりに配置し、電源コードおよびその他のケーブルを再度接続したら、 電源 ボタンを押してサーバの電源をオンにします。
|
|
|
||
|
|
|
このコンポーネントに関して認定されているサポート対象の部品番号は、時間の経過とともに変更されることがあります。交換可能なコンポーネントの最新リストについては、次の URL を参照し、『 Technical Specifications 』までスクロールしてください。
http://www.cisco.com/en/US/products/ps10493/products_data_sheets_list.html
マザーボードまたは CPU の Return Material Authorization(RMA)が Cisco UCS C シリーズ サーバで行われると、CPU またはマザーボード予備部品表(BOM)に含まれていない可能性のある追加部品があります。TAC エンジニアが正常に交換を行うためには、RMA に追加部品を追加する必要がある場合があります。
–
ヒート シンクのクリーニング キット(UCSX-HSCK=)
–
C200 用サーマル グリス キット(UCS-CPU-GREASE=)
–
ヒート シンクのクリーニング キット(UCSX-HSCK=)
CPU ヒートシンク クリーニング キットは最大 4 CPU およびヒート シンクのクリーニングに最適です。クリーニング キットには、古いサーマル インターフェイス マテリアルの CPU およびヒートシンクのクリーニング用と、ヒートシンクの表面調整用の 2 本のボトルの溶液が入っています。
新しいヒートシンクのスペアには小型プラスチック シートでカバーされたサーマル インターフェイス マテリアルが事前に取り付けられています。ヒートシンクを取り付ける前に CPU の古いサーマル インターフェイス マテリアルを洗浄することが重要です。このため、新しいヒート シンクを注文する場合には、ヒート シンク クリーニング キットを注文する必要があります。
CPU およびヒートシンクの取り付けまたは交換を行うには、次の手順に従います。
ステップ 1
次のようにして、既存の CPU およびヒートシンクを取り外します。
a.
「サーバのシャットダウンおよび電源オフ」の説明に従ってサーバの電源をオフにします。
c.
上部カバーを取り外せるように、サーバをラックの前方に引き出します。場合によっては、背面パネルからケーブルを取り外して隙間を空ける必要があります。
d.
「サーバ上部カバーの取り外しおよび取り付け」 に示すように、上部カバーを取り外します。
e.
CPU と DIMM の上にあるエアー バッフルを取り外し、横に置きます。
f.
ヒートシンクをシャーシ支柱に固定している 2 個の非脱落型ネジを緩め、ヒートシンクを持ち上げてサーバから外します(図 3-18 を参照)。
g.
このヒートシンクを新しい CPU に使用する場合は、ヒートシンク底部に付いた古いサーマル コンパウンドをすべて取り除きます。
h.
CPU ソケット ラッチのロックを解除し、CPU カバー プレートを開きます。
i.
CPU を持ち上げてソケットから取り出し、静電気防止用マットに置くか静電気防止用袋に入れます。
ステップ 2
次のようにして、CPU およびヒートシンクを取り付けます。
a.
新しい CPU をソケットにセットします。このとき、CPU アライメント ノッチを、ソケットのアライメント キーに合わせるよう注意します。
b.
CPU カバー プレートを閉じ、ソケット ラッチを引っ掛けてロック位置に戻します。
c.
CPU とヒートシンク間の熱伝導を助けるサーマル コンパウンドを準備します。
•
新しいヒートシンクを取り付ける場合、ヒートシンクにはあらかじめ熱パッドが付いています。保護フィルムをはがして熱パッドを露出させます。この場合は、交換用の CPU に付属しているサーマル コンパウンドのシリンジを使用しないでください。
•
既存のヒートシンクを使用する場合、ヒートシンクの裏側の古いサーマル コンパウンドがすべて取り除かれていることを確認します。その後、新しい CPU に付属しているシリンジの中身をすべて使用して、CPU 上部にサーマル コンパウンドを塗布します。ヒートシンクを固定したときに平らな層になるように、コンパウンドをできるだけ均一に塗布します。
d.
ヒートシンクの非脱落型ネジをシャーシ支柱の位置に合わせて、両方の非脱落型ネジを均一に締めます。
f.
サーバをラックに元どおりに配置し、電源コードおよびその他のケーブルを再度接続したら、 電源 ボタンを押してサーバの電源をオンにします。
図 3-18 CPU およびヒートシンクの取り外しおよび取り付け
|
|
|
||
|
|
|
警告 バッテリを正しく交換しないと、爆発するおそれがあります。交換用バッテリは元のバッテリと同じものか、製造元が推奨する同等のタイプのものを使用してください。使用済みのバッテリは、製造元が指示する方法に従って処分してください。(ステートメント 1015)
このコンポーネントに関して認定されているサポート対象の部品番号は、時間の経過とともに変更されることがあります。交換可能なコンポーネントの最新リストについては、次の URL を参照し、『 Technical Specifications 』までスクロールしてください。
http://www.cisco.com/en/US/products/ps10493/products_data_sheets_list.html
マザーボードの CMOS バッテリの取り付けまたは交換を行うには、次の手順に従います。
ステップ 1
マザーボードの CMOS バッテリを取り外します。
a.
「サーバのシャットダウンおよび電源オフ」の説明に従ってサーバの電源をオフにします。
c.
上部カバーを取り外せるように、サーバをラックの前方に引き出します。場合によっては、背面パネルからケーブルを取り外して隙間を空ける必要があります。
d.
「サーバ上部カバーの取り外しおよび取り付け」 に示すように、上部カバーを取り外します。
e.
バッテリ ソケット固定クリップをシャーシ側面の方向に押します(図 3-19 を参照)。
f.
ソケットからバッテリを持ち上げます。指を入れるスペースがない場合は、ラジオ ペンチでバッテリを保持します。
ステップ 2
マザーボード CMOS バッテリを取り付けます。
a.
バッテリ ソケット固定クリップをシャーシ側面の方向に押します。
b.
バッテリのプラス(+)マークをシャーシ側面に向けて新しいバッテリをソケットに取り付けます。バッテリの上部で固定クリップがカチッと鳴ることを確認してください。
d.
サーバをラックに元どおりに配置し、電源コードおよびその他のケーブルを再度接続したら、 電源 ボタンを押してサーバの電源をオンにします。
図 3-19 マザーボードの CMOS バッテリの取り外しと取り付け
|
|
|
このコンポーネントに関して認定されているサポート対象の部品番号は、時間の経過とともに変更されることがあります。交換可能なコンポーネントの最新リストについては、次の URL を参照し、『 Technical Specifications 』までスクロールしてください。
http://www.cisco.com/en/US/products/ps10493/products_data_sheets_list.html
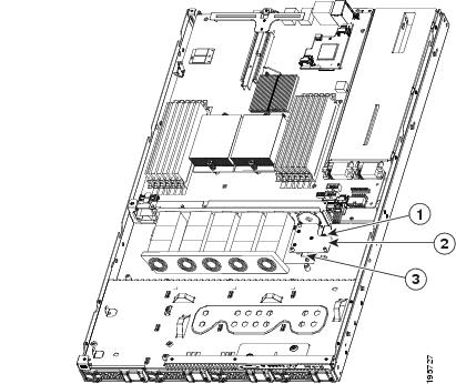
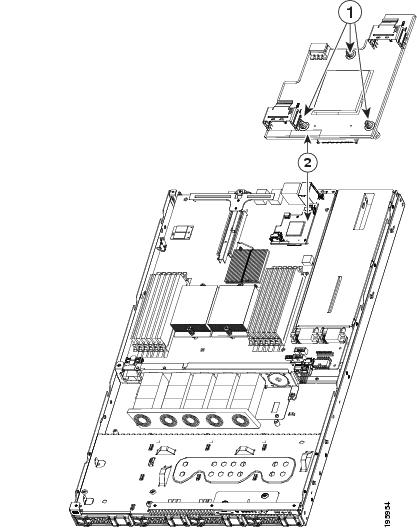
トラステッド プラットフォーム モジュール(TPM)の取り付けまたは交換を行うには、次の手順に従います。
a.
「サーバのシャットダウンおよび電源オフ」の説明に従ってサーバの電源をオフにします。
c.
上部カバーを取り外せるように、サーバをラックの前方に引き出します。場合によっては、背面パネルからケーブルを取り外して隙間を空ける必要があります。
d.
「サーバ上部カバーの取り外しおよび取り付け」 に示すように、上部カバーを取り外します。
e.
PCIe ライザー カード アセンブリを取り外して、TPM のためのスペースを作ります。
手順については、「PCIe ライザー カード アセンブリの交換」を参照してください。
f.
TPM をマザーボードの絶縁ポストに固定している止めネジを外します(図 3-20 を参照)。
g.
TPM の両端を持ち上げてマザーボードのソケットから外します。
a.
新しい TPM の裏側にあるコネクタをマザーボードのソケット JP2 に合わせ、TPM の両端をしっかりと押し下げてコネクタをソケットにはめ込みます。
b.
TPM をマザーボードの絶縁ポストに固定する止めネジを再度取り付けます。
c.
PCIe ライザー カード アセンブリを再度取り付けます。
手順については、「PCIe ライザー カード アセンブリの交換」を参照してください。
e.
サーバをラックに元どおりに配置し、電源コードおよびその他のケーブルを再度接続したら、 電源 ボタンを押してサーバの電源をオンにします。次の(注)を参照してください。
(注) TPM を使用する前に BIOS で有効化する必要があります。BIOS で TPM を有効化していない場合は、次のステップに進みます。
|
|
|
||
|
|
|
ステップ 3
サーバ BIOS で TPM を有効化します。
a.
VGA モニタと USB キーボードをサーバに接続するか、または、サーバの CIMC インターフェイスにリモート ログインして仮想 KVM コンソール ウィンドウを開きます。CIMC の使用手順については、『 Cisco UCS C-Series Rack-Mount Server Configuration Guide 』を参照してください。
(注) サーバをリブートするには、サーバの電源ボタンを押すか、 [Cisco KVM Console] ウィンドウのメニュー バーで [Macros] を選択して Ctrl+Alt+Del を押すか、CIMC GUI の [Server Summary] タブで [Power Cycle Server] を選択します。
c.
ブートアップ中に F2 プロンプトが表示されたら、F2 を押して BIOS セットアップに入ります。
d.
BIOS 管理者パスワードを設定している場合はそれを入力し、ステップ h. に進みます。
e.
サーバの BIOS 管理者パスワードを設定していない場合は、次のステップに進みます。
BIOS ユーティリティの画面で、[Security] タブを選択してから、[Set Administrator Password] を選択します。ポップアップ ボックスを使用して BIOS 管理者パスワードを設定したら、F10 を押して設定を保存し、サーバを再起動します。
f.
ブートアップ中に F2 プロンプトが表示されたら、F2 を押して BIOS セットアップに入ります。
g.
BIOS 管理者パスワードを使用して、BIOS Setup ユーティリティにログインします。
h.
BIOS ユーティリティの画面で、[Security] タブを選択します。
i.
[TPM] にスクロール ダウンし、[TURN ON] を選択します。
k.
ブートアップ中に F2 プロンプトが表示されたら、F2 を押して BIOS セットアップに入ります。
l.
BIOS 管理者パスワードを使用して、BIOS Setup ユーティリティにログインします。
m.
TPM がイネーブルになっていることを確認します。[Security] タブを選択します。TPM エントリが [Enabled] になっていることを確認します。
このコンポーネントに関して認定されているサポート対象の部品番号は、時間の経過とともに変更されることがあります。交換可能なコンポーネントの最新リストについては、次の URL を参照し、『 Technical Specifications 』までスクロールしてください。
http://www.cisco.com/en/US/products/ps10493/products_data_sheets_list.html
PCIe ライザー カード アセンブリを交換するには、次の手順に従います。
ステップ 1
次のようにして、PCIe ライザー カードを取り外します。
a.
「サーバのシャットダウンおよび電源オフ」の説明に従ってサーバの電源をオフにします。
c.
上部カバーを取り外せるように、サーバをラックの前方に引き出します。場合によっては、背面パネルからケーブルを取り外して隙間を空ける必要があります。
d.
「サーバ上部カバーの取り外しおよび取り付け」 に示すように、上部カバーを取り外します。
e.
ライザー カード アセンブリをシャーシの背面に固定しているネジを外します(図 3-21 を参照)。
f.
アセンブリと、装着されている PCIe カードをまっすぐ持ち上げ、シャーシから外します。ブラケットの両側を水平に持ち上げ、ソケットまたはライザー カードが損傷しないようにします。
g.
ライザー カード アセンブリから PCIe カードを取り外し、横に置きます。
ステップ 2
次のようにして、PCIe ライザー カードを取り付けます。
a.
新しいライザー カード アセンブリに PCIe カードを再度取り付けます。
b.
ライザー カードをマザーボードの PCIe スロットに合わせるようにして、アセンブリを元どおりに配置します。
c.
アセンブリの両側を均一に押し、ライザー カードがしっかりとマザーボードの PCIe スロットに差し込まれるようにします。
d.
アセンブリをシャーシに固定するネジを再度取り付けます。
f.
サーバをラックに元どおりに配置し、電源コードおよびその他のケーブルを再度接続したら、 電源 ボタンを押してサーバの電源をオンにします。
図 3-21 PCIe ライザー カード アセンブリの取り外しおよび取り付け
|
|
|
•
「交換手順」
•
「Cisco UCS P81E 仮想インターフェイス カード(N2XX-ACPCI01)の特記事項」
•
「複数の PCIe カードの取り付けおよび限られたリソースの解決」
(注) Cisco UCS P81E 仮想インターフェイス カード(N2XX-ACPCI01)を取り付ける場合、前提条件に関する考慮事項があります。「Cisco UCS P81E 仮想インターフェイス カード(N2XX-ACPCI01)の特記事項」を参照してください。
(注) サポートされているコントローラおよびケーブルについては、「RAID コントローラに関する考慮事項」も参照してください。
このコンポーネントに関して認定されているサポート対象の部品番号は、時間の経過とともに変更されることがあります。交換可能なコンポーネントの最新リストについては、次の URL を参照し、『 Technical Specifications 』までスクロールしてください。
http://www.cisco.com/en/US/products/ps10493/products_data_sheets_list.html
PCIe カードを取り付けるには、先にライザー カード アセンブリをシャーシから取り外しておく必要があります。PCIe カードの取り付けまたは交換を行うには、次の手順に従います。
ステップ 1
次のようにして、PCIe カードを取り外します。
a.
「サーバのシャットダウンおよび電源オフ」の説明に従ってサーバの電源をオフにします。
c.
上部カバーを取り外せるように、サーバをラックの前方に引き出します。場合によっては、背面パネルからケーブルを取り外して隙間を空ける必要があります。
d.
「サーバ上部カバーの取り外しおよび取り付け」 に示すように、上部カバーを取り外します。
e.
カードから PCIe カード固定ラッチを外します。図 3-21を参照してください。
f.
アセンブリと、装着されている PCIe カードをまっすぐ持ち上げ、シャーシから外します。アセンブリの両側を水平に持ち上げ、ソケットまたはライザー カードが損傷しないようにします。
g.
カードの背面タブから PCIe カード固定ラッチを外します(図 3-23 を参照)。
ステップ 2
PCIe カードのコネクタをライザー カード ソケットから抜き取り、カードを傍らに置きます。
ステップ 3
次のようにして、PCIe カードを取り付けます。
a.
ライザー カード アセンブリの空のスロットに PCIe カードを取り付ける場合は、アセンブリの背面スロットからブランク パネルを取り外します。
(注) 標準プロファイルの PCIe カードの場合は、サーバの背面から見て右側のアセンブリに取り付ける必要があります。ロープロファイルの PCIe カードの場合は、左側のロープロファイル スロットに取り付けるか、カードに標準プロファイルの I/O ブラケットを使用して右側の標準プロファイル スロットに取り付けることができます。
b.
PCIe カードのコネクタをライザー カード ソケットの位置に合わせ、コネクタがしっかりライザー カード スロットに差し込まれるようカードの両側を均一に押し込みます。
c.
カードの背面タブから PCIe カード固定ラッチを外し、タブ上のラッチを閉じます。
d.
ライザー カードをマザーボードの PCIe スロットに合わせるようにして、アセンブリを元どおりに配置します。
e.
アセンブリの両側を均一に押し、ライザー カードがしっかりとマザーボードの PCIe スロットに差し込まれるようにします。
f.
ライザー カード アセンブリをシャーシに固定するネジを再度取り付けます。
h.
サーバをラックに元どおりに配置し、電源コードおよびその他のケーブルを再度接続したら、 電源 ボタンを押してサーバの電源をオンにします。
ステップ 4
交換したカードが RAID コントローラ カードの場合は、「RAID コントローラ交換後の RAID 設定の復元」を参照してください。
図 3-22 PCIe スロットの番号付けおよび物理的方向、サーバ背面側
|
|
|
||
|
|
|
Cisco UCS P81E 仮想インターフェイス カードは、標準プロファイルでハーフ長のデュアルポート 10 GB PCIe カード(SFP+ 規格)です。次の特記事項と前提条件を参照してください。
•
このカードは、M1 および M2 世代のサーバでサポートされます。
•
このサーバでは、これらのカードのうちの 1 つを取り付けられます。
•
このサーバの PCIe スロット 6 のみがこのカードに対応しています。
(注) このカードを PCIe スロット 6 に取り付けて、Cisco Card NIC モードを使用する必要があります(図 3-22 を参照)。「NIC モードおよび NIC 冗長化の設定」も参照してください。
•
このカードを使用するには、サーバに CIMC ファームウェア バージョン 1.2(1)以降がインストールされている必要があります。カードの上部と底部にはハートビート LED があり、ファームウェアがアクティブであることを示します。
•
Cisco UCS Manager 2.0(2xx) 以降を使用してこのカードを UCS 統合(UCSM モード)で使用するには、カード ファームウェアと uboot イメージのレベルが 2.0(2g) 以降である必要があります。
•
Cisco UCS Manager 1.4 または 2.0(1) との UCS 統合(UCSM モード)にこのカードを使用するには、カード ファームウェアと uboot イメージのレベルが 1.4(1i) 以降である必要があります。
•
このカードをアップストリームの Cisco Nexus ファブリック インターコネクト(スイッチ)に接続するには、ファブリック インターコネクトの NXOS バージョンが 5.0 以降である必要があります。
•
このカードには、新しい電源装置モデル R2X0-PSU2-650W-SB が必要です。このカードをサポートするため、5A スタンバイ モードがこれらの電源装置に追加されています。「サーバの電源装置モデルの識別方法」を参照してください。
•
両方の電源装置が R2X0-PSU2-650W-SB モデルである必要があります。サーバ内に異なる電源装置モデルを混在させないでください。
サーバに取り付けられている電源装置を識別するには、次の 2 つの方法があります。
1.
目視でサーバの背面の電源装置を確認します。新しい電源装置モデル R2X0-PSU2-650W-SB には黒いハンドルが付いています。古い電源装置のハンドルはシルバーです。
2.
Cisco Integrated Management Controller(CIMC)GUI を使用して、電源装置モデルを確認します。
a.
CIMC の IP アドレスを使用してブラウザから CIMC に接続します。
b.
管理者のユーザ名とパスワードを使用して CIMC にログインします。
c.
CIMC の [Server] タブで [Inventory] をクリックします。
d.
[Inventory] ペインで、[Power Supplies] タブをクリックします。
e.
[Product ID] カラムで電源装置モデル番号を確認します。新しい電源装置は、製造元のモデル番号である R2X0-PSU2-650W-SB で表示されます。
多数の PCIe アドオン カードがサーバに取り付けられている場合、PCIe デバイスに必要な次のリソースがシステムに不足する可能性があります。
この項のトピックでは、これらのリソース不足に関連する問題を解決するためのガイドラインを示します。
PCIe レガシー オプション ROM を実行するためのメモリは非常に限られているため、多数の PCIe アドオン カードがサーバに取り付けられていると、システム BIOS は一部のオプション ROM を実行できない場合があります。システム BIOS は、PCIe カードが列挙されている順番(スロット 1、スロット 2、スロット 3 など)でオプション ROM をロードし、実行します。
システム BIOS は、任意の PCIe オプション ROM をロードするためのメモリ領域が十分にない場合、そのオプション ROM のロードをスキップし、システム イベント ログ(SEL)イベントを CIMC コントローラにレポートし、BIOS セットアップ ユーティリティの [Error Manager] ページで次のエラーをレポートします。
この問題を解決するには、システムの起動に不要なオプション ROM をディセーブルにします。BIOS セットアップ ユーティリティにはセットアップ オプションがあり、PCIe 拡張スロットの PCIe スロット レベルおよびオンボード NIC のポート レベルでオプション ROM をイネーブルまたはディセーブルにします。これらのオプションは、BIOS セットアップ ユーティリティの [Advanced] ® [PCI Configuration] ページにあります。
サーバが RAID ストレージから基本的に起動するように設定されている場合、RAID コントローラの設定に応じて、RAID コントローラが取り付けられたスロットのオプション ROM が BIOS でイネーブルになっていることを確認します。
これらのスロットのオプション ROM がイネーブルになっているにもかかわらず、RAID コントローラがシステム ブート順序に表示されない場合は、RAID コントローラ オプション ROM の実行に必要なメモリ領域が不足している可能性があります。この場合は、システム設定に不要な他のオプション ROM をディセーブルにして、メモリ領域を RAID コントローラ オプション ROM 用に空けます。
•
オンボード NIC PXE のブートに関するガイドライン
オンボード NIC から PXE ブートを最初に実行するようにシステムが設定されている場合、ブート元のオンボード NIC のオプション ROM が BIOS セットアップ ユーティリティでイネーブルになっていることを確認してください。不要な他のオプション ROM をディセーブルにして、オンボード NIC に十分なメモリ領域を確保します。
システムでは、64 KB のレガシー 16 ビット I/O リソースのみを使用できます。64 KB の I/O 領域は、PCIe コントローラが CPU に統合されているため、システムの CPU 間で分割されます。サーバ BIOS には、各 CPU の 16 ビット I/O リソース要件を動的に検出し、BIOS POST の PCI バス列挙フェーズ時に 16 ビット I/O リソースの割り当てを CPU 間で適切にバランスをとる機能があります。
多数の PCIe カードがシステムに取り付けられている場合は、システム BIOS の I/O 領域が一部の PCIe デバイスで不足する可能性があります。システム BIOS で、任意の PCIe デバイスに必要な I/O リソースを割り当てることができない場合、次の現象が確認されます。
•
システムが、無限のリセット ループから抜け出せなくなる。
•
PCIe デバイスの初期化時に、BIOS がハングしたように見える。
•
PCIe オプション ROM の完了に時間がかかり、システムをロックしているように見える。
•
PCIe ブート デバイスに BIOS からアクセスできない。
•
PCIe オプション ROM が初期化エラーをレポートする。これらのエラーは、BIOS が制御をオペレーティング システムに渡す前に表示されます。
この問題を回避するには、次の方法を使用して 16 ビット I/O の負荷の再バランスを行います。
1.
未使用のすべての PCIe カードを物理的に取り外します。
2.
システムに 1 つ以上の Cisco 仮想インターフェイス カード(VIC)が取り付けられている場合は、CIMC WebUI の [Network Adapters] ページを使用して、システム ブート設定に不要な VIC での PXE ブートをディセーブルにして、一部の 16 ビット I/O リソースを解放します。各 VIC では、最小でも 16 KB の 16 ビット I/O リソースを使用しているため、Cisco VIC での PXE ブートをディセーブルにすると、一部の 16 ビット I/O リソースを解放して、システムに取り付けられている他の PCIe カードに使用できるようになります。
LSI MegaRAID カードとオプションの BBU をこのサーバに取り付ける場合は、LSI の取り付け手順に従って、BBU をカードの上に取り付けないでください。カードの過熱を避けるために、BBU はファン トレイの上にある特殊なブラケットに取り付ける必要があります。
(注) LSI では、年に一度か、再充電を 1,000 回行った後のいずれか早いタイミングで LSI BBU を交換することを推奨しています。CIMC をチェックして、BBU の交換が必要かどうかを確認します。サーバの CIMC にログインし、[Server] > [Inventory] > [Storage] > [Battery Backup Unit] を選択します。[Battery Replacement Required] フィールドに「True」と表示されている場合は、交換用の BBU を購入して交換する必要があります。
警告 バッテリを正しく交換しないと、爆発するおそれがあります。交換用バッテリは元のバッテリと同じものか、製造元が推奨する同等のタイプのものを使用してください。使用済みのバッテリは、製造元が指示する方法に従って処分してください。
ステートメント 1015
このコンポーネントに関して認定されているサポート対象の部品番号は、時間の経過とともに変更されることがあります。交換可能なコンポーネントの最新リストについては、次の URL を参照し、『 Technical Specifications 』までスクロールしてください。
http://www.cisco.com/en/US/products/ps10493/products_data_sheets_list.html
(注) BBU を取り付ける方法は、BBU のバージョンによって異なります。新しい LSIiBBU08 バージョンでは、サーバの取り付けブラケットを交換する必要があります。LSIiBBU06 と LSIiBBU08 の両方の手順を示します。
この BBU は、シスコによって次の RAID コントローラ カードでの使用がサポートされています。
•
LSI MegaRAID 9260-4i(Cisco 製品 ID R200-PL004, LSI 6G MegaRAID 9260-4i card w/512MB write cache)
•
LSI MegaRAID 9280-4i4e(Cisco 製品 ID UCSC-RAID-C-4i4e, LSI 9280-4i4e)
LSIiBBU06 バージョンの BBU の取り付けまたは交換を行うには、次の手順に従います。
a.
BBU をファン トレイの BBU ブラケットに固定している 3 個のネジを外します(図 3-24 を参照)。
b.
BBU からケーブルを外します。BBU だけを交換し、LSI カードは交換しない場合、ケーブルのもう一方の端をカードから外す必要はありません。
a.
LSI コントローラ カードに接続されているケーブルを BBU の裏側にあるソケット J2 に取り付けます。
(注) コネクタ ピンの損傷を避けるために、ケーブル コネクタの矢印マークをソケットの矢印マークに合わせるように注意してください。
b.
新しい BBU をファン トレイの BBU ブラケットの上に載せて、BBU の 3 つのネジ穴をブラケットにあらかじめ取り付けられている 3 つの絶縁ポストに合わせます。
c.
BBU を BBU ブラケットに固定する 3 個の止めネジを再度取り付けます。
ステップ 3
交換ではなく、初めて BBU を取り付ける場合は、BBU と LSI カードの間にケーブルを取り付けます。
(注) コネクタ ピンの損傷を避けるために、ケーブル コネクタの矢印マークをソケットの矢印マークに合わせるように注意してください。
図 3-24 LSIiBBU06 BBU の取り外しおよび取り付け
|
|
|
||
|
|
|
この BBU は、シスコによって次の RAID コントローラ カードでの使用がサポートされています。
•
LSI MegaRAID 9260-4i(Cisco 製品 ID R200-PL004, LSI 6G MegaRAID 9260-4i card w/512MB write cache)
•
LSI MegaRAID 9280-4i4e(Cisco 製品 ID UCSC-RAID-C-4i4e, LSI 9280-4i4e)
•
LSI MegaRAID 9260-8i(Cisco 製品 ID RC460-PL001, LSI 6G MegaRAID 9260-8i (C200 SFF only))
LSIiBBU08 BBU を取り付けるには、ファン トレイの取り付けブラケットを BBU に同梱されている特殊なアダプタ ブラケットに交換する必要があります。次の手順を使用して、ブラケットを交換し BBU を取り付けます。
ステップ 1
取り付けブラケットを交換します(LSIiBBU06 を LSIiBBU08 と 交換する場合のみ)。
サーバですでに LSIiBBU08 BBU が使用され、新しい取り付けブラケットが取り付けられている場合は、この手順をスキップしてステップ 2 に進みます。
a.
BBU 固定ネジを外して、既存のブラケットから既存の BBU を取り外します。
b.
RAID コントローラと BBU の間のケーブルを古い BBU から外します。
c.
ファン トレイの絶縁ポストにブラケットを固定している 3 個のネジを外します(図 3-25 を参照)。
d.
新しいブラケットを所定の位置にセットし、3 個のネジでファン トレイに固定します(図 3-26 を参照)。
図 3-25 LSIiBBU08 BBU 用取り付けブラケットの交換
図 3-26 LSIiBBU08 BBU 用取り付けブラケットの交換(拡大図)
ステップ 2
次のようにして、新しい LSIiBBU08 BBU を取り付けます。
(注) LSIiBBU08 BBU では、認識される LSI MegaRAID カードのファームウェアが 2.120.133.1322 以降である必要があります。Cisco Host Upgrade Utility を使用して LSI MegaRAID カードのファームウェアをアップグレードできます。Cisco.com ソフトウェア ダウンロード サイト(http://www.cisco.com/cisco/software/navigator.html)にアクセスし、Cisco Host Upgrade Utility 1.4.1 以降のパッケージ(ドライバを含む)を検索して取得します。
a.
LSI コントローラ カードと新しい BBU のソケット J2 の間に BBU ケーブルを取り付けます。
(注) コネクタ ピンの損傷を避けるために、ケーブル コネクタの矢印マークをソケットの矢印マークに合わせます。
b.
新しい BBU をファン トレイの新しい BBU ブラケットの上に載せて、BBU の 2 つのネジ穴をブラケットにあらかじめ取り付けられている 2 つの絶縁ポストに合わせます。
c.
BBU を BBU ブラケットに固定する 2 個の止めネジを取り付けます。
図 3-27 LSIiBBU06 BBU の取り外しおよび取り付け
|
|
|
||
|
|
|
このコンポーネントに関して認定されているサポート対象の部品番号は、時間の経過とともに変更されることがあります。交換可能なコンポーネントの最新リストについては、次の URL を参照し、『 Technical Specifications 』までスクロールしてください。
http://www.cisco.com/en/US/products/ps10493/products_data_sheets_list.html
メザニン カードの取り付けまたは交換を行うには、次の手順に従います。
ステップ 1
次のようにして、メザニン カードを取り外します。
a.
「サーバのシャットダウンおよび電源オフ」の説明に従ってサーバの電源をオフにします。
c.
上部カバーを取り外せるように、サーバをラックの前方に引き出します。場合によっては、背面パネルからケーブルを取り外して隙間を空ける必要があります。
d.
「サーバ上部カバーの取り外しおよび取り付け」 に示すように、上部カバーを取り外します。
e.
メザニン カードの上部のコネクタからケーブル ハーネスを取り外します。
f.
ニードルノーズ プライヤを使用して、メザニン カードをマザーボードに固定しているプラスチック製の絶縁ポスト(3 つ)をつまみます。支柱の上部をつまむと、メザニン カードを持ち上げて支柱から外すための隙間ができます(図 3-28 を参照)。
g.
メザニン カードの両端を水平に持ち上げ、マザーボードのソケットからコネクタを外します。
ステップ 2
次のようにして、メザニン カードを取り付けます。
a.
カードの穴をマザーボードにあるプラスチック製の 3 つの絶縁ポストに合わせるようにして、メザニン カードをシャーシ内に配置します。
b.
カードをしっかりと押し下げてカードのコネクタをマザーボードのソケットにはめ込みます。
c.
カードの穴がマザーボードにある 3 つのプラスチック製の支柱にカチッとはまったことを確認します。
d.
メザニン カードの上部のコネクタにケーブル ハーネスを再度取り付けます。
f.
サーバをラックに元どおりに配置し、電源コードおよびその他のケーブルを再度接続したら、 電源 ボタンを押してサーバの電源をオンにします。
(注) メザニン型の RAID コントローラを使用するには、スロット 6 および 7 のオプション ROM をサーバ BIOS でイネーブルにする必要があります。スロット 6 と 7 がイネーブルになっていない場合は、次のステップに進みます。
ステップ 3
スロット 6 および 7 のオプション ROM をイネーブルにします。
a.
サーバをリブートし、画面上に F2 を押すように求めるプロンプトが表示されるのを待ちます。
b.
プロンプトが表示されたら、F2 を押してサーバの BIOS セットアップ ユーティリティを起動します。
d.
[PCIe] を選択し、スロット 6 および 7 のオプション ROM をイネーブルにします。
e.
ユーティリティを終了し、変更を保存するには、F10 を押します。
(注) メザニン型の RAID コントローラを使用する前に、ICH10R コントローラを拡張モードでイネーブルにする必要があります。「BIOS でのメザニン カード RAID コントローラのイネーブル化」を参照してください。
|
|
|