Maintaining the Server

This chapter describes how to diagnose server system problems using LEDs. It also provides information about how to install or replace hardware components, and it includes the following sections:

Server Monitoring and Management Tools

Cisco Integrated Management Interface (CIMC)

You can monitor the server inventory, health, and system event logs by using the built-in Cisco Integrated Management Controller (CIMC) GUI or CLI interfaces. See the user documentation for your firmware release at the following URL:

http://www.cisco.com/en/US/products/ps10739/products_installation_and_configuration_guides_list.html

Server Configuration Utility

Cisco has also developed the Cisco Server Configuration Utility for C-Series servers, which can aid and simplify the following tasks:

  • Monitoring server inventory and health
  • Diagnosing common server problems with diagnostic tools and logs
  • Setting the BIOS booting order
  • Configuring some RAID configurations
  • Installing operating systems

This utility is pre-installed on an internal Cisco FlexFlash card inside the server (see Overview of the Pre-Installed Cisco FlexFlash Drive). You can also download the ISO from Cisco.com. See the user documentation for this utility at the following URL:

http://www.cisco.com/en/US/docs/unified_computing/ucs/sw/ucsscu/user/guide/20/SCUUG20.html

Status LEDs and Buttons

This section describes the location and meaning of LEDs and buttons and includes the following topics

Front Panel LEDs

Figure 3-1 shows the front panel LEDs. Table 3-1 defines the LED states.

Figure 3-1 Front Panel LEDs

 

1

Hard drive fault LED

6

Fan status LED

2

Hard drive activity LED

7

Temperature status LED

3

Power button/Power status LED

8

Power supply status LED

4

Identification button/LED

9

Network link activity LED

5

System status LED

 

 

Table 3-1 Front Panel LEDs, Definitions of States

LED Name
State

Hard drive activity

  • Off—There is no hard drive in the hard drive sled (no access, no fault).
  • Green—The hard drive is ready.
  • Green, blinking—The hard drive is reading or writing data.

Hard drive fault

  • Off—The hard drive is operating properly.
  • Amber—This hard drive has failed.
  • Amber, blinking—The device is rebuilding.

Power button/Power status LED

  • Off—There is no AC power to the server.
  • Amber—The server is in standby power mode. Power is supplied only to the CIMC and some motherboard functions.
  • Green—The server is in main power mode. Power is supplied to all server components.

Identification

  • Off—The Identification LED is not in use.
  • Blue—The Identification LED is activated.

System status

  • Green—The server is running in normal operating condition.
  • Green, blinking—The server is performing system initialization and memory check.
  • Amber, steady—The server is in a degraded operational state. For example:

Power supply redundancy is lost.

CPUs are mismatched.

At least one CPU is faulty.

At least one DIMM is faulty.

At least one drive in a RAID configuration failed.

  • Amber, blinking—The server is in a critical fault state. For example:

Boot failed.

Fatal CPU and/or bus error is detected.

Server is in over-temperature condition.

Fan status

  • Green—All fan modules are operating properly.
  • Amber, steady—One fan module has failed.
  • Amber, blinking—Critical fault, two or more fan modules have failed.

Temperature status

  • Green—The server is operating at normal temperature.
  • Amber, steady—One or more temperature sensors have exceeded a warning threshold.
  • Amber, blinking—One or more temperature sensors have exceeded a critical threshold.

Power supply status

  • Green—All power supplies are operating normally.
  • Amber, steady—One or more power supplies are in a degraded operational state.
  • Amber, blinking—One or more power supplies are in a critical fault state.

Network link activity

  • Off—The Ethernet link is idle.
  • Green—One or more Ethernet LOM ports are link-active.
  • Green, blinking—One or more Ethernet LOM ports are link-active, with activity.

Rear Panel LEDs and Buttons

Figure 3-2 shows the rear panel LEDs and buttons.

Figure 3-2 Rear Panel LEDs and Buttons

 

 

1

Power supply status

6

10-Gb Ethernet link speed
(present only if 10-Gb module is installed)

2

Power supply fault

7

1-Gb Ethernet link speed

3

10/100 Ethernet link speed

8

1-Gb Ethernet link status

4

10/100 Ethernet link status

9

Rear Identification button/LED

5

10-Gb Ethernet link status
(present only if 10-Gb module is installed)

 

 

Table 3-2 Rear Panel LEDs, Definitions of States

LED Name
State

Power supply status LED

  • Green, steady—The power supply is operating normally and supplying AC power to the server.
  • Green, blinking—The power supply is off and in cold-redundancy mode.

Power supply fault LED

  • Off—The power supply is operating normally.
  • Amber, blinking—An event warning threshold has been reached, but the power supply continues to operate.
  • Amber, steady—A critical fault threshold has been reached, causing the power supply to shut down.

10/100 Ethernet link speed

  • Off—link speed is 10 Mbps.
  • Green—link speed is 100 Mbps.

10/100 Ethernet link status

  • Off—No link is present.
  • Green—Link is active.
  • Green, blinking—Traffic is present on the active link.

10-Gb Ethernet link speed

  • Off—link speed is 10 Mbps.
  • Green—link speed is 10 Gbps.

10-Gb Ethernet link status

  • Off—No link is present.
  • Green—Link is active.
  • Green, blinking—Traffic is present on the active link.

1-Gb Ethernet link speed

  • Off—link speed is 10 Mbps.
  • Amber—link speed is 100 Mbps.
  • Green—link speed is 1 Gbps.

1-Gb Ethernet link status

  • Off—No link is present.
  • Green—Link is active.
  • Green, blinking—Traffic is present on the active link.

Identification

  • Off—The Identification LED is not in use.
  • Blue—The Identification LED is activated.

Internal Diagnostic LEDs

The server is equipped with a SuperCap voltage source that can activate internal component fault LEDs up to one half-hour after AC power is removed.

To use these LEDs to identify a failed component, press the front or rear Identification button (see Figure 3-1 or Figure 3-2) with AC power removed. An LED lights amber to indicate a failed component.

The server has internal fault LEDs for fan modules, CPU sockets, DIMMs, memory risers, the motherboard RTC battery, PCIe sockets, and Cisco FlexFlash cards.

See Figure 3-3 for the locations of these internal LEDs.

Figure 3-3 Internal Diagnostic LED Locations

 

1

Fan module fault LED (one on each fan)

5

RTC battery fault LED (on motherboard)

2

CPU fault LEDs (on motherboard)

6

Cisco FlexFlash card fault LEDs (one on each card socket on the I/O riser)

3

DIMM fault LEDs (on each memory riser)

7

PCIe card fault LED (on motherboard adjacent to each PCIe slot)

4

Memory riser fault LED (on each memory riser)

 

 

Table 3-3 Internal Diagnostic LEDs, Definition of States

LED Name
State

Internal diagnostic LEDs (all)

  • Off—Component is functioning normally.
  • Amber—Component has failed.

Preparing for Server Component Installation

This section describes how to prepare for component installation, and it includes the following topics:

Required Equipment

The following equipment is used to perform the procedures in this chapter:

  • Number 1 Phillips-head screwdriver
  • Number 2 Phillips-head screwdriver
  • Needle-nose pliers
  • Electrostatic discharge (ESD) strap or other grounding equipment such as a grounded mat

Shutting Down and Powering Off the Server

The server can run in two power modes:

  • Main power mode—Power is supplied to all server components and any operating system on your hard drives can run.
  • Standby power mode—Power is supplied only to the service processor and the cooling fans and it is safe to power off the server from this mode.

You can invoke a graceful shutdown or an hard shutdown by using either of the following methods:

  • Use the CIMC management interface.
  • Use the Power button on the server front panel. To use the Power button, follow these steps:

Step 1 Check the color of the Power Status LED (see the “Front Panel LEDs” section).

  • Green—the server is in main power mode and must be shut down before it can be safely powered off. Go to Step 2.
  • Amber—the server is already in standby mode and can be safely powered off. Go to Step 3.

Step 2 Invoke either a graceful shutdown or a hard shutdown:


Caution To avoid data loss or damage to your operating system, you should always invoke a graceful shutdown of the operating system.

  • Graceful shutdown—Press and release the Power button. The operating system performs a graceful shutdown and the server goes to standby mode, which is indicated by an amber Power Status LED.
  • Emergency shutdown—Press and hold the Power button for 4 seconds to force the main power off and immediately enter standby mode.

Step 3 Disconnect the power cords from the power supplies in your server to completely power off the server.


 

Removing and Replacing the Server Top Cover

To remove or replace the top cover of the server, follow these steps:


Tip You do not have to remove the cover to replace hard drives or power supplies.



Step 1 Remove the top cover:

a. Simultaneously press the two release buttons. See Figure 3-4.

b. Push the top cover toward the server rear about one-half inch (1.27 cm), until it stops.

c. Lift the top cover straight up from the server and set it aside.

Step 2 Replace the top cover:

a. Place the cover on top of the server about one-half inch (1.27 cm) behind the lip of the chassis front cover panel. The cover should sit flat when the edge flanges are sitting in the grooves in the chassis.

b. Slide the top cover toward the front cover panel until it stops and the release buttons lock.

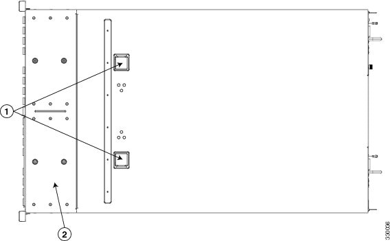
Figure 3-4 Removing the Top Cover

 

1

Release buttons

2

Front cover panel


 

Replaceable Component Locations

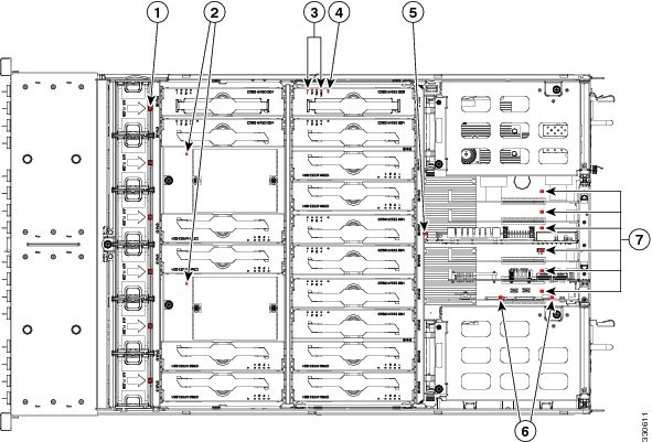
This section shows the locations of the components that are discussed in this chapter. The view in Figure 3-5 is from the top down with the top cover removed.

Figure 3-5 Replaceable Component Locations

 

1

Drive bay module 2 (up to eight 2.5-inch drives, hot-pluggable access through the front panel)

9

PCIe riser in PCIe slot 7

2

Drive bay module 1 (up to eight 2.5-inch drives, hot-pluggable access through the front panel)

10

Power supply 2 (hot-pluggable access through rear panel)

3

Fan tray, holding six fan modules

11

PCIe slots 2–6 on motherboard (5)
See also Figure 3-26 for details.

4

Drive backplane transition cards (up to 2 on chassis floor, not visible under fan tray in this view)

12

I/O riser (includes sockets for Cisco FlexFlash cards)

5

CPUs and heatsinks (up to 2)

13

Power supply 1 (hot-pluggable access through rear panel)

6

Memory risers (16)
Two-DIMM risers total capacity is 32 DIMMs.
Four-DIMM risers total capacity is 64 DIMMs.

14

PCIe riser in PCIe slot 1

7

RTC battery

15

Brackets for optional LSI RAID controller battery backup units (2)

8

Vertical USB slot

16

TPM socket (on motherboard, not visible under power supply in this view)

Color-Coded Touch Points

This server has color-coded touch points that indicate thumbscrews and latches on replaceable and hot-swappable components.

  • Hot-swappable components have green plastic touch points. This includes the internal cooling fans and the power supplies. (An exception is the drive trays on the front panel, which are hot-swappable but not green).
  • Some replaceable but non-hot-swappable components have light-blue plastic touch-points. This includes memory risers, PCIe risers, PCIe slots, and fan tray.

Installing or Replacing Server Components


Warning Blank faceplates and cover panels serve three important functions: they prevent exposure to hazardous voltages and currents inside the chassis; they contain electromagnetic interference (EMI) that might disrupt other equipment; and they direct the flow of cooling air through the chassis. Do not operate the system unless all cards, faceplates, front covers, and rear covers are in place.
Statement 1029



Warning Class 1 laser product.
Statement 1008



Caution When handling server components, wear an ESD strap to avoid damage.


Tip You can press the ID button on the front panel or rear panel to turn on a flashing ID LED on the front and rear panels of the server. This allows you to locate the specific server that you are servicing when you go to the opposite side of the rack. See the “Status LEDs and Buttons” section for locations of the LEDs.


This section describes how to install and replace server components, and it includes the following topics:

Replacing Hard Drives or Solid State Drives

This section includes the following information:

Drive Population Guidelines

The server can operate with one or two drive bay modules. Each of the drive bay modules can hold up to eight 2.5-inch drives, for a total of 16.

The internal firmware designation of drive numbering depends on how many drives are installed, as shown in Figure 3-6.

Figure 3-6 Drive Numbering (Facing Front of Server)

 

Drive Bay Module 1 (Left)
Drive Bay Module 2 (Right)

1

2

3

4

.

.

.

N

N+1

N+2

N+3

N+4

.

.

.

M

Observe these drive population guidelines for optimum performance:

  • When populating drives in a drive bay module, add drives in empty slots from left to right.
  • If your server has two drive bay modules, add drives evenly across the two modules.
  • Keep an empty drive blanking tray in any unused slots to ensure proper air flow.
  • You can mix hard drives and SSDs in the same server. However, You cannot configure a logical volume (virtual drive) that contains a mix of hard drives and SSDs. That is, when you create a logical volume, it must contain all hard drives or all SSDs.

Drive Replacement Procedure

To replace or install a hot-pluggable hard drive, follow these steps:


Tip You do not have to shut down or power off the server to replace hard drives or solid state drives (SSDs) because they are hot pluggable.



Step 1 Remove the drive that you are replacing or remove a blank panel from an empty bay:

a. Press the release button on the face of the drive tray. See Figure 3-7.

b. Grasp and open the ejector lever and then pull the drive tray out of the slot.

c. If you are replacing an existing drive, remove the four drive tray screws that secure the drive to the tray and then lift the drive out of the tray.

Step 2 Install a new drive:

a. Place a new drive in the empty drive tray and replace the four drive tray screws.

b. With the ejector lever on the drive tray open, insert the drive tray into the empty drive bay.

c. Push the tray into the slot until it touches the backplane, then close the ejector lever to lock the drive in place.

Figure 3-7 Removing and Replacing Hard Drives

 

1

Release button

3

Drive tray securing screws (4)

2

Ejector lever

 


 

Replacing a Modular Drive Bay Assembly

This server allows modular configuration of the drive bays, so that you can use one or two drive bays depending on your needs.

Each drive bay assembly includes the chassis-steel drive bay, the attached drive backplane, and a transition card (expander or nonexpander version) that provides connection to your RAID controllers and the motherboard.

  • Each of the two modular chassis drive bays can hold up to eight 2.5-inch drives.
  • Each drive backplane connects to one transition card. The transition card connects the drive backplane to the motherboard and connects to cables from your RAID controller.
  • The transition card is available in two versions:

Nonexpander—Two internal connections to the RAID controller card are required to control eight drives. This version includes two connectors for the cables from your RAID controller. One of the connectors allows control of drives 1 through 4 on the backplane. The other connector allows control of drives 5 through 8 on the backplane.

Expander—One internal connection to the RAID controller card is required to control eight drives. This one connectors allows control of drives 1 through 8 on the backplane.

  • To use more than eight 2.5-inch drives in the server (up to 16), two drive bay modules are required, each with its own backplane and transition card.

Figure 3-8 Drive Bay Assembly and Transition Card (Two Versions)

 

1

Chassis drive bay module (rear view)

4

Transition card securing screws (two)

2

Drive backplane

5

Transition card connector to motherboard

3

Transition card (non-expander version)

6

Transition card (expander version)

To install or replace the modular drive bay assembly, follow these steps:


Step 1 Remove the assembly that you are replacing. See Figure 3-8 and Figure 3-9:

a. Power off the server as described in the “Shutting Down and Powering Off the Server” section.

b. Slide the server out the front of the rack far enough so that you can remove the top cover. You might have to detach cables from the rear panel to provide clearance.


Caution If you cannot safely view and access the component, remove the server from the rack.

c. Remove the top cover as described in “Removing and Replacing the Server Top Cover” section.

d. Remove all drives from the drive-bay module that you are replacing.

e. Remove all memory risers from the front memory compartment (see Figure 3-9).

Lift on the blue plastic handle on the top panel of the riser to disengage the latches at each end, and then pull the riser from its motherboard socket. See Replacing Memory Risers for more information.


Tip When you remove the memory risers, set them on an anti-static mat in the same order that they were removed. This will help you keep the same matched pairs of risers (as required) when you reinstall them.


f. Remove the fan tray from the chassis, as described in Replacing a Fan Tray. You do not have to remove the fan modules from the fan tray.

g. Disconnect RAID controller cables from the transition card that you are replacing.


Tip Label the cables before you disconnect them to aid replacement.


h. Use a Number 1 Phillips-head screwdriver to remove the two screws that secure the transition card to the chassis floor (see Figure 3-9).

i. Slide the drive bay with attached backplane and transition card out the front of the chassis. The transition card disengages from its motherboard connector.


Note Tilt the module downward as you slide it out the chassis opening to provide clearance over an alignment peg on the chassis floor.


Step 2 Install a new drive bay assembly:

a. Carefully slide the drive bay with attached backplane and transition card into the front chassis opening.

Stop when the connector on the rear edge of the transition card is fully engaged with the motherboard connector and the front of the drive bay is even with the chassis front panel.

b. Replace the two screws that secure the transition card to the chassis floor.

c. Replace the RAID controller cables to the connectors on the transition card.

d. Replace the fan tray as described in Replacing a Fan Tray.

e. Replace all memory risers to the front compartment.

Use the alignment keys in the motherboard sockets to orient the risers correctly.

f. Replace the top cover.

g. Replace the server in the rack, replace cables, and then power on the server by pressing the Power button.

Figure 3-9 Removing and Replacing the Drive-Bay Module, Backplane, and Transition Card

 

1

Transition card on chassis floor
(shown with fan tray removed)

3

Transition card connector to motherboard

2

Transition card securing screws (2)

 


 

Replacing Fan Modules

The six fan modules in the server are numbered as follows when you are facing the front of the server.

Figure 3-10 Fan Module Numbering

 

FAN 1

FAN 2

FAN 3

FAN 4

FAN 5

FAN 6

 


Tip Each fan module has a fault LED that lights amber if the fan module fails.


To replace or install a hot-pluggable fan module, follow these steps:


Caution You do not have to shut down or power off the server to replace fan modules because they are hot- pluggable. However, to maintain proper cooling, do not operate the server for more than one minute with any fan module removed.


Step 1 Remove the fan module that you are replacing (see Figure 3-11):

a. Slide the server out the front of the rack far enough so that you can remove the top cover. You might have to detach cables from the rear panel to provide clearance.


Caution If you cannot safely view and access the component, remove the server from the rack.

b. Remove the top cover as described in “Removing and Replacing the Server Top Cover” section.

c. Insert your thumb and forefinger into the two release latches on the top of the fan module.

d. Squeeze the release latches together and lift out the fan module.

Step 2 Install a new fan module:

a. Grasp the fan module by the release latches and align it with the empty fan bay and the connector on the floor of the fan tray. See Figure 3-11.

b. Press down on the top corners of the fan module until the connector is fully seated and the release latches lock in place.

c. Replace the top cover.

d. Replace the server in the rack.

Figure 3-11 Removing and Replacing Fan Modules

 

1

Fan tray

3

Connector location on underside of fan module

2

Fan module release latches

 


 

Replacing a Fan Tray

To replace a fan tray, follow these steps:


Step 1 Remove the fan tray that you are replacing (see Figure 3-12):

a. Power off the server as described in the “Shutting Down and Powering Off the Server” section.

b. Slide the server out the front of the rack far enough so that you can remove the top cover. You might have to detach cables from the rear panel to provide clearance.


Caution If you cannot safely view and access the component, remove the server from the rack.

c. Remove the top cover as described in “Removing and Replacing the Server Top Cover” section.

d. Remove all memory risers from the front compartment to provide clearance.


Tip Note the locations of the memory risers before you remove them to assist you in replacing them.


e. Use a Number 1 Phillips-head screwdriver to loosen the three captive thumbscrews that secure the fan tray to the chassis.

f. Lift the fan tray straight up and out of the chassis.


Caution Be careful to avoid bumping the motherboard components with the fan tray so that you do not damage them or their solder connections to the motherboard.

Step 2 Install a new fan tray (see Figure 3-12):

a. Carefully align the new tray with the chassis and lower it in place:

Align the connector on the underside of the tray with its socket on the motherboard.

Align the two guide pegs on each end of the tray with the slots in the chassis.

b. Use a Number 1 Phillips-head screwdriver to tighten the three captive thumbscrews that secure the tray to the motherboard and chassis.

c. Replace the memory risers that you removed. Be sure to observe the configuration rules as described in Memory Riser Population Guidelines.

d. Replace the top cover.

e. Replace the server in the rack, replace cables, and then power on the server by pressing the Power button.

Figure 3-12 Removing and Replacing a Fan Tray

 

1

Captive thumbscrews (3)

3

Front compartment

2

Guide pegs (2 on each end of fan tray)

4

Motherboard connector location, underneath fan tray


 

Replacing Memory Risers

This section describes how to remove and replace memory risers. For information about replacing DIMMs on the memory risers, see Replacing DIMMs.

This section includes the following topics:

The memory risers connect to motherboard sockets. There are two versions of memory riser available for use in this server:

  • The two-DIMM riser is a passive riser with two DIMM sockets.
  • The four-DIMM riser is an active riser that utilizes an ASIC chipset to double the capacity to four DIMM sockets.

Memory Riser Population Guidelines

Figure 3-13 shows the CPUs and memory riser sockets on the motherboard.

Each CPU controls eight Millbrook-2 DDR3 channels. There is one memory riser for each DDR3 channel.

Use the following population guidelines when installing or replacing memory risers:

  • The server must have either all two-DIMM risers or all four-DIMM risers. Do not mix riser types.
  • Memory risers must be installed in pairs on paired DDR3 channels. The paired channels are as follows:

CPU1— [A0:A1], [B0:B1], [C0:C1], [D0:D1]

CPU2— [A0:A1], [B0:B1], [C0:C1], [D0:D1]

  • Matched pairs of risers on paired DDR3 channels must have identical DIMM configurations.

For example, the DIMM configurations must be identical on risers in A0:A1; however, the A0:A1 configurations do not have to be identical with the B0:B1 configurations.

  • The minimum riser configuration is one matched pair of risers on either CPU1 or CPU2. Either CPU can boot and run from a single matched pair of risers.
  • Any riser installed on a socket that is controlled by an absent CPU is not recognized.
  • Although it is not required, for optimal performance distribute riser pairs evenly across the CPUs. Follow this recommended installation order (see Figure 3-13):

1. CPU1 [A0:A1] and CPU2 [A0:A1]

2. CPU1 [C0:C1] and CPU2 [C0:C1]

3. CPU1 [B0:B1] and CPU2 [B0:B1]

4. CPU1 [D0:D1] and CPU2 [D0:D1]

Figure 3-13 Memory Riser Sockets on Motherboard

 

Identifying a Faulty Memory Riser or DIMM

The memory riser includes fault LEDs on its top panel so that you can identify which riser is faulty or which riser contains faulty DIMMs (see Figure 3-14).

Figure 3-14 Memory Riser Fault LEDs

 

1

Two-DIMM riser top panel

2

Four-DIMM riser top panel

Memory Riser Replacement Procedure

To replace or install a memory riser, follow these steps:


Step 1 Remove the memory riser that you are replacing: See Figure 3-15:

a. Power off the server as described in the “Shutting Down and Powering Off the Server” section.

b. Slide the server out the front of the rack far enough so that you can remove the top cover. You might have to detach cables from the rear panel to provide clearance.


Caution If you cannot safely view and access the component, remove the server from the rack.

c. Remove the top cover as described in “Removing and Replacing the Server Top Cover” section.

d. Lift on the blue plastic handle on the top panel of the riser to disengage the latches at each end, and then pull the riser from the motherboard socket.

The blue plastic handle is the release mechanism.

e. If you are installing or replacing DIMMs on the memory riser, use the instructions in Replacing DIMMs.

Step 2 Install a new memory riser:


Note Before installing memory risers or DIMMs, refer to the population guidelines. See Memory Riser Population Guidelines and DIMM Performance Guidelines and Population Rules.


a. Align the riser with the empty motherboard connector.


Note The risers face in alternating directions. Use the alignment keys in the motherboard socket to orient the riser correctly. See Figure 3-15.


b. Simultaneously press down on both top corners of the riser top panel to ensure that it is properly seated in the motherboard connector. Keep the riser vertical without tilting it at an angle.

c. Replace the top cover.

d. Replace the server in the rack, replace cables, and then power on the server by pressing the Power button.

Figure 3-15 Removing and Replacing Memory Risers

 

1

Alignment keys in motherboard socket

2

Memory riser


 

Replacing DIMMs

This section includes the following topics:


Caution DIMMs and their sockets are fragile and must be handled with care to avoid damage during installation.


Caution Cisco does not support 3rd-party DIMMs. Using non-Cisco DIMMs in the server might result in system problems or damage to the motherboard.


Note To ensure the best server performance, it is important that you are familiar with memory performance guidelines and population rules before you install or replace memory.


DIMM Performance Guidelines and Population Rules

This section describes the type of memory that the server requires and its effect on performance. The section includes the following topics:

DIMM Sockets

Figure 3-16 shows the numbering of the DIMM slots on the two types of memory risers.

Figure 3-16 DIMM Slots on Memory Risers

 

DIMM Population Rules

Observe the following guidelines when installing or replacing DIMMs:

  • The minimum memory riser configuration is one matched pair of memory risers on either CPU1 or CPU2. See Replacing Memory Risers for more detail on memory riser population.
  • Matched pairs of risers on paired DDR3 channels must have identical DIMM configurations.

For example, the DIMM configurations must be identical on risers in A0:A1; however, the A0:A1 configurations do not have to be identical with the B0:B1 configurations.

  • Any DIMM installed in a memory riser corresponding to an empty CPU slot becomes inaccessible.
  • Two-DIMM memory riser population rules are as follows:

The two-DIMM riser can operate with one or two DIMMs installed.

Both DIMMs installed on any one riser must be identical.

Populate the slots in this order: 1, 2. See Figure 3-16.

  • Four-DIMM memory riser population rules are as follows:

The four-DIMM riser can operate with one, two, three, or four DIMMs installed.

All DIMMs installed on any one riser must be identical.

Populate the slots in this order: 1, 2, 3, 4. See Figure 3-16.

DIMM Sparing and Rank Sparing

DIMM and rank sparing can be enabled in the BIOS configuration utility.

Sparing involves utilizing one of the DIMM pairs or rank pairs within each memory riser as a spare unit. When any of the other DIMM pairs within the same memory riser experiences errors beyond a pre-defined threshold, it fails over to the spare DIMM pair. Spared DIMMs and ranks are hidden from the user and the OS so that the BIOS can migrate to a spare unit when it finds degrading DIMMs.

When sparing is enabled, the available system memory is lesser than the total installed memory.

  • When using DIMM sparing, the available memory equals total installed memory minus the size of spared DIMMs.
  • When using rank sparing, available memory equals total installed memory minus the size of the spared ranks. Rank size equals DIMM size divided by the number of ranks.

DIMM Replacement Procedure

This section includes the following topics:

Identifying a Faulty Memory Riser or DIMM

The memory riser includes fault LEDs on its top panel so that you can identify which riser is faulty or which riser contains faulty DIMMs (see Figure 3-14).

Replacing DIMMs

To install a DIMM assembly, follow these steps:


Step 1 Remove the DIMMs that you are replacing:

a. Power off the server as described in the “Shutting Down and Powering Off the Server” section.

b. Slide the server out the front of the rack far enough so that you can remove the top cover. You might have to detach cables from the rear panel to provide clearance.


Caution If you cannot safely view and access the component, remove the server from the rack.

c. Remove the top cover as described in “Removing and Replacing the Server Top Cover” section.

d. Identify the memory riser that contains the faulty DIMM. See Identifying a Faulty Memory Riser or DIMM.

e. Lift on the blue plastic handle on the top panel of the riser to disengage the latches at each end, and then pull the riser from the motherboard socket.

f. Locate the faulty DIMM and remove it from the socket on the memory riser by opening the ejector levers at both ends of the DIMM socket.

Step 2 Install a new DIMM:


Note Before installing risers or DIMMs, refer to the population guidelines. See Memory Riser Population Guidelines and DIMM Performance Guidelines and Population Rules.


a. Align the new DIMM with the socket on the memory riser. Use the alignment key in the DIMM socket to correctly orient the DIMM.

b. Push the DIMM into the connector until it is fully seated and the ejector levers on either side of the connector lock into place.

c. Align the memory riser with the empty motherboard connector.


Note Memory risers face in alternating directions. Use the alignment keys in the motherboard socket to orient the riser correctly. See Figure 3-15.


d. Simultaneously press down on both top corners of the riser to ensure that it is properly seated in the motherboard connector. Keep the riser vertical without tilting it at an angle.

e. Replace the top cover.

f. Replace the server in the rack, replace cables, and then power on the server by pressing the Power button.


 

Replacing CPUs and Heatsinks

This server has two CPUs. Each CPU supports eight memory risers connected by serial memory interface (SMI). See Figure 3-17.


Caution CPUs and their motherboard sockets are fragile and must be handled with care to avoid damaging pins during installation. The CPUs must be installed with heatsinks and their thermal pads to ensure proper cooling. Failure to install a CPU correctly might result in damage to the server.

Figure 3-17 CPUs and Memory Riser Sockets

 

This section contains the following topics:

Additional CPU-Related Parts To Order With RMA Replacement Motherboards

When a return material authorization (RMA) of the motherboard or CPU is done on a Cisco UCS C-series server, there are additional parts that might not be included with the CPU or motherboard spare bill of materials (BOM). The TAC engineer might need to add the additional parts to the RMA to help ensure a successful replacement.

  • Scenario 1—You are re-using the existing heatsinks:

Heat sink cleaning kit (UCSX-HSCK=)

Thermal grease kit for C260 (UCS-CPU-GREASE=)

  • Scenario 2—You are replacing the existing heatsinks:

Heat sink (UCSC-HS-01-C260=)

Heat sink cleaning kit (UCSX-HSCK=)

A CPU heatsink cleaning kit is good for up to four CPU and heatsink cleanings. The cleaning kit contains two bottles of solution, one to clean the CPU and heatsink of old thermal interface material and the other to prepare the surface of the heatsink.

New heatsink spares have preinstalled thermal interface material covered by a small sheet of plastic. It is important to clean the old thermal interface material off of the CPU prior to installing the heatsinks. Therefore, when ordering new heatsinks it is still necessary to order the heatsink cleaning kit at a minimum.

CPU replacement Procedure

To install or replace a CPU heatsink and CPU, follow these steps:


Step 1 Remove the CPU and heatsink that you are replacing:

a. Power off the server as described in the “Shutting Down and Powering Off the Server” section.

b. Slide the server out the front of the rack far enough so that you can remove the top cover. You might have to detach cables from the rear panel to provide clearance.


Caution If you cannot safely view and access the component, remove the server from the rack.

c. Remove the top cover as described in “Removing and Replacing the Server Top Cover” section.

d. Use a Number 2 Phillips-head screwdriver to loosen the two captive screws that secure the heatsink and lift it off of the CPU. See Figure 3-18.


Note Alternate loosening each screw evenly to avoid damaging the heatsink or CPU.


e. Unclip the CPU retaining latch and open the hinged the CPU cover plate. See Figure 3-18.

f. Lift the CPU out of the socket and set it aside on an antistatic mat or in an antistatic bag.

Figure 3-18 CPU Latching Mechanism

 

1

Heatsink captive screws

3

CPU cover plate

2

CPU retaining latch

 

Step 2 Install a new CPU:

a. Insert the replacement CPU in the socket.


Note Orient the CPU alignment notches with the alignment keys in the socket. See Figure 3-19.


b. Close the CPU cover plate and clip down the CPU retaining latch.

Figure 3-19 CPU Socket Alignment Keys

 

1

CPU retaining latch

3

CPU alignment notches

2

CPU cover plate

4

CPU socket alignment keys

Step 3 Install a heatsink:


Caution The heatsink must have a new, undamaged thermal pad on the heatsink-to-CPU surface to ensure proper cooling. If you are replacing a heatsink that was previously installed, you must remove the old thermal pad. If you are installing a new heatsink, skip to step c. below.

a. Apply an alcohol-based cleaning solution to the old thermal pad and let it soak for a least 15 seconds.

b. Wipe all of the old thermal pad off the heatsink using a soft cloth that will not scratch the heatsink surface.


Caution Damage to the heatsink surface can damage the heat transferring properties of the heatsink.

c. Peel the protective film from the thermal pad that is on the bottom of the new heatsink.

d. Align the heatsink captive screws with the motherboard standoffs, then use a Number 2 Phillips-head screwdriver to tighten the captive screws evenly until the screws stop against the captive springs.


Note Alternate tightening each screw evenly to avoid damaging the heatsink or CPU.


e. Replace the top cover.

f. Replace the server in the rack, replace cables, and then power on the server by pressing the Power button.


 

Replacing the Motherboard RTC Battery


Warning There is danger of explosion if the battery is replaced incorrectly. Replace the battery only with the same or equivalent type recommended by the manufacturer. Dispose of used batteries according to the manufacturer’s instructions. [Statement 1015]


The CMOS real-time clock (RTC) battery retains system settings when the server is disconnected from power. The battery type is Panasonic CR2032 or equivalent.

To replace or install the motherboard CMOS battery, follow these steps:


Step 1 Remove the CMOS battery (see Figure 3-20):

a. Power off the server as described in the “Shutting Down and Powering Off the Server” section.

b. Slide the server out the front of the rack far enough so that you can remove the top cover. You might have to detach cables from the rear panel to provide clearance.


Caution If you cannot safely view and access the component, remove the server from the rack.

c. Remove the top cover as described in “Removing and Replacing the Server Top Cover” section.

d. Locate the CMOS battery. See Figure 3-20.

e. Bend the battery retaining clip away from the battery and use a pair of needle-nose pliers to pull the battery from the socket.

Step 2 Install a CMOS battery:

a. Bend the retaining clip away from the battery socket and insert the battery in the socket.


Note The positive side of the battery marked “3V+” should face the retaining clip.


b. Push the battery into the socket until it is fully seated.


Note Ensure that the retaining clip clicks over the top of the battery.


c. Replace the top cover.

d. Replace the server in the rack, replace cables, and then power on the server by pressing the Power button.

Figure 3-20 Removing and Replacing the Motherboard RTC Battery

 

1

RTC battery socket on motherboard

2

Retaining clip (enlarged view)


 

Replacing a PCIe Riser Assembly

The server contains two PCIe risers for horizontal installation of PCIe cards. These risers wrap around the power supply bays and connect to dedicated PCIe slots 1 and 7 on the motherboard. These risers each provide one standard-profile, half-length, x16 horizontal slot.

To install or replace a PCIe riser assembly, follow these steps:


Step 1 Remove the PCIe riser assembly that you are replacing (see Figure 3-21):

a. Power off the server as described in the “Shutting Down and Powering Off the Server” section.

b. Slide the server out the front of the rack far enough so that you can remove the top cover. You might have to detach cables from the rear panel to provide clearance.


Caution If you cannot safely view and access the component, remove the server from the rack.

c. Remove the top cover as described in “Removing and Replacing the Server Top Cover” section.

d. Use a Number 2 Phillips-head screwdriver to loosen the two captive thumbscrews that secure the PCIe riser assembly.

e. Lift straight up on both ends of the PCIe riser assembly to disengage its circuit board from the socket on the motherboard.

Step 2 Install a new PCIe riser assembly.

a. Set the PCIe riser assembly back in place over the power supply bay.

b. Align the circuit board edge with the socket on the motherboard and then push straight down on both ends of the assembly to fully engage the board with the socket.

c. Tighten the two captive thumbscrews that secure the riser assembly in place.

d. Replace the top cover.

e. Replace the server in the rack, replace cables, and then power on the server by pressing the Power button.

Figure 3-21 Removing and Replacing the PCIe Riser Assembly

 

1

PCIe riser assembly in PCIe slot 7

3

Riser assembly captive thumbscrews

2

PCIe riser assembly in PCIe slot 1

 


 

Replacing an I/O Riser

The I/O riser is a modular PCIe form-factor card that has a designated motherboard socket inside the server (see Figure 3-23). The module provides the external VGA video and RS-232 serial connectors for the rear panel of the server. See Figure 3-22.

The I/O riser also provides two internal slots for Cisco FlexFlash cards. For more information about Cisco FlexFlash cards, see Replacing a Cisco Flexible Flash Drive.

Figure 3-22 I/O Riser, Including Cisco FlexFlash Slots

 

1

I/O riser rear panel tab

3

VGA video connector (15-pin)

2

RS-232 Serial connector (9-pin)

4

Internal Cisco FlexFlash card slots

To install or replace an I/O riser, follow these steps:


Step 1 Remove the I/O riser that you are replacing (see Figure 3-23):

a. Power off the server as described in the “Shutting Down and Powering Off the Server” section.

b. Slide the server out the front of the rack far enough so that you can remove the top cover. You might have to detach cables from the rear panel to provide clearance.


Caution If you cannot safely view and access the component, remove the server from the rack.

c. Remove the top cover as described in “Removing and Replacing the Server Top Cover” section.

d. Disconnect any external cables from the I/O riser ports.

e. Use a Number 1 Phillips-head screwdriver to remove the single screw that secures the I/O riser rear panel tab to the chassis.

f. Lift the I/O riser straight up from the motherboard connector.


Note Lift up on both ends of the I/O riser evenly to avoid damaging its connector.


Step 2 Install a new I/O riser:

a. Align the new I/O riser with its empty designated socket on the motherboard. See Figure 3-23.


Note You must install the I/O riser in its designated motherboard socket.


b. Push down evenly on both ends of the I/O riser until it is fully seated in its motherboard socket.

c. Ensure that the I/O riser rear panel tab sits flat against the chassis rear panel opening.

d. Install the single screw that secures the I/O riser to the chassis.

e. Replace the top cover.

f. Replace the server in the rack, replace cables, and then power on the server by pressing the Power button.

Figure 3-23 Removing and Replacing an I/O Riser

 

1

I/O riser in designated motherboard socket

2

I/O riser securing screw


 

Replacing a Cisco Flexible Flash Drive

This section includes the following topics:

Overview of the Pre-Installed Cisco FlexFlash Drive

This server is shipped from the factory with one pre-installed Cisco FlexFlash drive. The slots for these drives are on the I/O riser (see Replacing an I/O Riser).


Note To use dual FlexFlash drives, your server must have minimum CIMC/BIOS 1.5(1) or later installed.


The Cisco FlexFlash drive is pre-installed with three software bundles, each on one of four preconfigured virtual drives (VDs). The fourth VD allows you to install an OS or embedded hypervisor.

The VDs are configured as follows:

1. Cisco UCS Server Configuration Utility (SCU).

2. Hypervisor (HV). This is a VD that you can use for your own purposes.

3. Cisco Drivers (Drivers).

4. Cisco Host Upgrade Utility (HUU).

Enabling a Cisco FlexFlash Virtual Drive

Each of the VDs on the pre-installed Cisco FlexFlash drive can be separately enabled or hidden from the host. The default as shipped from the factory is for all VDs to be hidden.

To enable VDs and expose them to the host, follow these steps:


Step 1 Log in to CIMC interface for the server, using the IP address of the server.

Step 2 Navigate through GUI tabs to Server > Inventory > Storage.

Step 3 Click FlexFlash-0 in the Storage Adapters list.

Step 4 Click on Configure Operational Profile in the Actions area.

The Operational Profile dialog opens.

Step 5 Check the box for each VD that you want to enable and expose to the host, then click Save Changes.


 

Booting a Cisco FlexFlash Virtual Drive

When you want to access the Cisco SCU or Cisco HUU software, you boot its VD with a one-time boot option. When you want to boot the hypervisor (HV) VD, you boot it with a permanent boot order selection. See the following topics in this section:

Booting the Cisco SCU and Cisco HUU Software VDs

You can access the preinstalled Cisco SCU and Cisco HUU software bundles on a Cisco FlexFlash drive by booting their respective VDs with a one-time boot option:


Step 1 Enable the SCU or HUU VD.

See Enabling a Cisco FlexFlash Virtual Drive.

Step 2 In the CIMC GUI interface, navigate through the tabs to Server > BIOS.

Step 3 Click Configure Boot Override Priority.

The Boot Override Priority dialog opens.

Step 4 Pull down the menu and select SCU or HUU, then click OK.

Step 5 Reboot the server.

The server boots the selected VD.


Note This is a one-time boot option. After running Cisco SCU or Cisco HUU, the server returns to its previously configured boot path.



 

Booting the Hypervisor VD

You can boot the hypervisor (HV) VD with a more permanent boot selection. (To change the boot order one time, use the procedure in Booting the Cisco SCU and Cisco HUU Software VDs.

To permanently set the boot order for an HV VD, use the following steps:


Step 1 Boot the server and watch for the prompt to press F2 to open the BIOS Setup utility.

Step 2 When prompted, press F2 to open the BIOS Setup utility.

Step 3 Navigate to the Boot Options tab.

Step 4 Use the Boot Options screen to set the HV VD to your desired boot order for the server.


 

Monitoring and Managing a Cisco FlexFlash Drive

You can monitor and manage your installed Cisco FlexFlash drives by using the CIMC GUI interface or the CLI interface. See the Cisco UCS C-Series Rack-Mount Server Configuration Guide or the Cisco UCS C-Series Rack-Mount Server CLI Configuration Guide in the documentation roadmap linked below.

The links to these documents are in the C-Series documentation roadmap:

http://www.cisco.com/go/unifiedcomputing/c-series-doc

Synchronizing RAID After Installing a Second Cisco FlexFlash Drive


Note To use dual FlexFlash drives, your server must have minimum CIMC/BIOS 1.5(1) or later installed.


After you install or replace a second Cisco FlexFlash drive, you must synchronize the RAID partition by using the Cisco UCS Server Configuration Utility (SCU).

The SCU provides an option to synchronize the Hypervisor VD, configured as a RAID-1 disk. This feature is available only when both Cisco FlexFlash drive slots are populated.

When one member slot of the SD card is corrupt, use this option to synchronize the hypervisor data across two members of the RAID-1 virtual disk. You can initiate this synchronization only if two cards are detected and the RAID-1 group is determined as unhealthy (one member is corrupt).


Step 1 Click the Hypervisor Sync icon on the toolbar of the SCU interface.

A dialog prompts you to confirm that you want to synchronize the Hypervisor RAID.

Step 2 Click Yes.

A dialog is displayed when the synchronization is complete.

Step 3 Click OK.

After you click OK, the Hypervisor Sync icon on the toolbar is greyed out.


 

For more information about the utility, see the Cisco UCS Server Configuration Utility User Guide.

Cisco FlexFlash Drive Replacement Procedure

To install or replace a Cisco FlexFlash drive, follow these steps:


Step 1 Remove the SD card that you are replacing. See Figure 3-23:

a. Power off the server as described in the “Shutting Down and Powering Off the Server” section.

b. Slide the server out the front of the rack far enough so that you can remove the top cover. You might have to detach cables from the rear panel to provide clearance.


Caution If you cannot safely view and access the component, remove the server from the rack.

c. Remove the top cover as described in “Removing and Replacing the Server Top Cover” section.

d. Locate the Cisco FlexFlash drive that you are replacing on the I/O riser card. See Figure 3-23.

e. Push down on the top of the Cisco FlexFlash drive, then release it to allow it to spring up in the socket.

f. Remove the Cisco FlexFlash drive from the socket.

g. Wait 10 seconds for the Cisco FlexFlash management software to recognize and react to the absence of the drive.

Step 2 Install a Cisco FlexFlash drive:


Note To be usable for Cisco FlexFlash, an SD card must be at least 16 GB in size.



Note Any SD card that is installed into the Cisco FlexFlash slot is configured with the VD partitioning described in Overview of the Pre-Installed Cisco FlexFlash Drive. This overwrites data on the SD card where Cisco stores the configuration metadata.


a. Insert the Cisco FlexFlash drive into an SD card slot on the I/O riser with the label side facing outward.

b. Press down on the top of the drive until it clicks in the slot and stays in place. The top of the drive is level with the top edge of the I/O riser when fully seated.

c. Replace the top cover.

d. Replace the server in the rack, replace cables, and then power on the server by pressing the Power button.


 

Replacing a 10-Gb LOM Module

The 10-Gb LOM module is a modular PCIe form-factor card (UCSX-MLOM) that is supported only in PCIe slot 4 (see Figure 3-26). The module provides two external 10-Gb SFP+ connectors for the rear panel of the server.

To install or replace a 10-Gb LOM module, follow these steps:


Step 1 Remove the 10-Gb LOM module that you are replacing (see Figure 3-25):

a. Power off the server as described in the “Shutting Down and Powering Off the Server” section.

b. Slide the server out the front of the rack far enough so that you can remove the top cover. You might have to detach cables from the rear panel to provide clearance.


Caution If you cannot safely view and access the component, remove the server from the rack.

c. Remove the top cover as described in “Removing and Replacing the Server Top Cover” section.

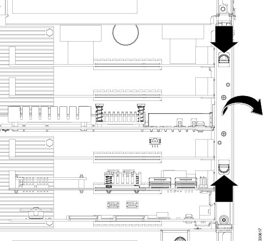
d. Open the hinged PCIe card retainer. Pinch the two release latches toward the center of the retainer while you lift up on the front edge of the retainer to open it (see Figure 3-24).

Figure 3-24 Hinged PCIe Card Retainer on Rear of Chassis

 

e. Lift the module straight up from the motherboard socket.


Note Lift up on both ends of the module evenly to avoid damaging its socket.


Step 2 Install a new 10-Gb LOM module:

a. Align the new module with the empty PCIe slot 4 socket on the motherboard. See Figure 3-25.

b. Push down evenly on both ends of the module until it is fully seated in the motherboard socket.

c. Ensure that the module rear panel sits flat against the chassis rear panel opening.

d. Close the hinged PCIe retainer and push down on it in the closed position until the latches lock in place.

e. Replace the top cover.

f. Replace the server in the rack, replace cables, and then power on the server by pressing the Power button.

Figure 3-25 Removing and Replacing a 10-Gb LOM Module

 

1

10-Gb LOM module
in designated PCIe slot 4

2

PCI card retainer release latches


 

Replacing a PCIe Card


Caution Cisco supports all PCIe cards qualified and sold by Cisco. PCIe cards not qualified or sold by Cisco are the responsibility of the customer. Although Cisco will always stand behind and support the C-Series rack-mount servers, customers using standard, off-the-shelf, third-party cards must go to the third-party card vendor for support if any issue with that particular third-party card occurs.

This server has 7 PCIe expansion slots. See Figure 3-26 and Table 3-4 for information about the slots. This section includes the following topics:

PCIe Slots

Figure 3-26 PCIe Expansion Slot Locations

 

 

Table 3-4 PCIe Slots

Slot Number
Electrical
Lane Width
Connector Length
Card Length 1
Card Height 2
NCSI 3 Support

1 (on riser)

Gen-2 x16

x16 connector

1/2 length

Full-height

Yes4

2

Gen-2 x4

x8 connector

1/2 length

1/2 height

No

3

Gen-2 x8

x8 connector

1/2 length

1/2 height

No

4

Gen-2 x8

x8 connector

1/2 length

1/2 height

Yes

5

Gen-2 x8

x8 connector

1/2 length

1/2 height

No

6

Gen-2 x8

x8 connector

1/2 length

1/2 height

No

7 (on riser)

Gen-2 x16

x16 connector

1/2 length

Full height

Yes

1.This is the supported length because of internal clearance.

2.This is the size of the rear panel opening.

3.Network Communications Services Interface protocol.

4.Slots 1, 4 and 7 have NCSI support and can operate when the server is in standby power mode.

RAID Card Firmware Compatibility

If the PCIe card that you are installing is a RAID controller card, firmware on the RAID controller must be verified for compatibility with the current Cisco IMC and BIOS versions that are installed on the server. If not compatible, upgrade or downgrade the RAID controller firmware accordingly using the Host Upgrade Utility (HUU) for your firmware release to bring it to a compatible level.

See the HUU guide for your Cisco IMC release for instructions on downloading and using the utility to bring server components to compatible levels: HUU Guides

PCIe Configuration Guide

For the best performance, we recommend that you populate the PCIe slots in the order shown in Table 3-5 for each type of add-on card. For each card type, populate the primary slot first, followed by the secondary slot, then any alternate slots. See Figure 3-26 for the slot locations.

 

Table 3-5 PCIe Slot Population

PCIe Card Type
Primary Slot
Secondary Slot
Alternate Slots

RAID controller

Slot 3

Slot 5

Low-profile (half-height) network adapter

Slot 6

Slot 3 or Slot 4

Slots 1, 2, 5, or 75

Cisco UCS VIC

Slot 7

Slot 1

Modular 10-Gb LOM

Slot 4

5.To use a low-profile card in slots 1 or 7, you must have a standard-profile rear panel attached to the card.

Replacing a PCIe Card in a Riser Slot


Note If you are installing a Cisco UCS Virtual Interface Card, there are prerequisite considerations. See Special Considerations for Cisco UCS Virtual Interface Cards.


To install or replace a PCIe card in standard-profile slots 1 or 7 on the PCIe risers, follow these steps:


Step 1 Remove a PCIe card (or a blank filler panel) from the PCIe riser assembly:

a. Shut down and power off the server as described in the “Shutting Down and Powering Off the Server” section.

b. Slide the server out the front of the rack far enough so that you can remove the top cover. You might have to detach cables from the rear panel to provide clearance.


Caution If you cannot safely view and access the component, remove the server from the rack.

c. Remove the top cover as described in the “Removing and Replacing the Server Top Cover” section.

d. Remove any cables from the rear ports of the PCIe card that you are replacing.


Tip Label the cables when you disconnect them to aid correct connection to the new card.


e. Use a Number 2 Phillips-head screwdriver to loosen the two captive thumbscrews that secure the PCIe riser assembly. See Figure 3-21.

f. Lift straight up on both ends of the PCIe riser assembly to disengage its attached circuit board from the socket on the motherboard.


Note Lift up on both ends of the PCIe riser evenly to avoid damaging its connector.


g. Pull evenly on both corners of the PCIe card to remove it from the socket on the PCIe riser assembly.

Step 2 Install a PCIe card:

a. Align the new PCIe card with the empty socket on the PCIe riser assembly.

b. Push down evenly on both ends of the card until it is fully seated in the socket.

c. Ensure that the card rear panel tab sits flat against the PCIe riser rear panel opening.

d. Set the PCIe riser assembly back in place over the power supply bay.

e. Align the PCIe riser circuit board edge with the socket on the motherboard and then push straight down on both ends of the PCIe riser assembly to fully engage the board with the socket.

f. Tighten the two captive thumbscrews that secure the PCIe riser assembly in place.

g. Replace the top cover.

h. Replace the server in the rack, replace cables, and then power on the server by pressing the Power button.

Figure 3-27 PCIe Riser Assembly Side View

 

1

PCIe card socket on PCIe riser assembly

2

PCIe card rear panel tab


 

Replacing a PCIe Card in a Motherboard Slot


Note If you replace an LSI MegaRAID controller card, you must restore your RAID configuration to the new card. See Restoring RAID Configuration After Replacing a RAID Controller.


To install or replace a PCIe card in low-profile motherboard slots 2 through 6, follow these steps:


Step 1 Remove a PCIe card (or a blank filler panel):

a. Shut down and power off the server as described in the “Shutting Down and Powering Off the Server” section.

b. Slide the server out the front of the rack far enough so that you can remove the top cover. You might have to detach cables from the rear panel to provide clearance.


Caution If you cannot safely view and access the component, remove the server from the rack.

c. Remove the top cover as described in the “Removing and Replacing the Server Top Cover” section.

d. Remove any cables from the rear ports of the PCIe card that you are replacing.


Tip Label the cables when you disconnect them to aid correct connection to the new card.


e. Open the hinged PCIe card retainer. Pinch the two release latches toward the center of the retainer while you lift up on the front edge of the retainer to open it. See Figure 3-24.

f. Lift the card straight up from the motherboard connector.


Note Lift up on both ends of the card evenly to avoid damaging its connector.


Step 2 Install a PCIe card:

a. Align the PCIe card with the empty PCIe connector on the motherboard.

b. Push down evenly on both ends of the card until it is fully seated in the motherboard connector.

c. Ensure that the card rear panel sits flat against the chassis rear panel opening.

d. Close the hinged PCIe retainer and push down on it in the closed position until the latches lock in place.

e. Replace the top cover.

f. Replace the server in the rack, replace cables, and then power on the server by pressing the Power button.

Step 3 If the card that you replaced is a mass storage controller, restore the RAID configuration on your drives to the new mass storage controller.

See Restoring RAID Configuration After Replacing a RAID Controller.


 

Special Considerations for Cisco UCS Virtual Interface Cards

Table 3-6 describes the requirements for the supported Cisco UCS virtual interface cards (VICs).

 

Table 3-6 Cisco UCS C260 Requirements for Virtual Interface Cards

Virtual Interface Card (VIC)
Number of VICs Supported in Server
Slots That Support VICs 6
Primary Slot For UCS Integration or Cisco Card NIC Mode
Minimum CIMC Firmware
Minimum VIC Firmware For Use With UCS Integration
Minimum Nexus OS on an Upstream Nexus Fabric Interconnect
Cisco UCS VIC P81E

N2XX-ACPCI01

2

PCIE 1

PCIE 7

PCIE 7

1.4(3)

2.0(2)

5.0

Cisco UCS VIC 1225

UCSC-PCIE-CSC-02

2

PCIE 1

PCIE 7

PCIE 7

1.4(6)

2.1(0)

5.0

Cisco UCS VIC1225T

UCSC-PCIE-C10T-02

2

PCIE 1

PCIE 7

PCIE 77

1.5(1)

2.1(1)

5.0

6.See PCIe Slots.

7.The Cisco UCS VIC1225T is not supported for UCS integration at this time.

Installing Multiple PCIe Cards and Resolving Limited Resources

When a large number of PCIe add-on cards are installed in the server, the system may run out of the following resources required for PCIe devices:

  • Option ROM memory space
  • 16-bit I/O space

The topics in this section provide guidelines for resolving the issues related to these limited resources.

Resolving Insufficient Memory Space to Execute Option ROMs

The system has very limited memory to execute PCIe legacy option ROMs, so when a large number of PCIe add-on cards are installed in the server, the system BIOS might not able to execute all of the option ROMs. The system BIOS loads and executes the option ROMs in the order that the PCIe cards are enumerated (Slot 1, Slot 2, Slot 3, etc.).

If the system BIOS does not have sufficient memory space to load any PCIe option ROM, it skips loading that option ROM, reports a system event log (SEL) event to the CIMC controller and reports the following error in the Error Manager page of the BIOS Setup utility:

ERROR CODE SEVERITY INSTANCE DESCRIPTION
146 Major N/A PCI out of resources error.
Major severity requires user
intervention but does not
prevent system boot.

 

To resolve this issue, disable the Option ROMs that are not needed for system booting. The BIOS Setup Utility provides the setup options to enable or disable the Option ROMs at the PCIe slot level for the PCIe expansion slots and at the port level for the onboard NICs. These options can be found in the BIOS Setup Utility Advanced → PCI Configuration page (see Figure 3-28).

Figure 3-28 BIOS Setup Utility Advanced > PCI Configuration Page

 

  • Guidelines for RAID controller booting:

When this server is configured in the factory, the RAID controllers are installed in PCIe Slot 3 or Slot 5 for single RAID controller configuration, or in both Slot 3 and Slot 5 for dual RAID controller configuration.

If the server is configured to boot primarily from RAID storage, make sure that the option ROMs for Slot 3 and/or Slot 5 are enabled in the BIOS, depending your RAID controller configuration. If the RAID controller does not appear in the system boot order even with the option ROMs for Slot 3 and Slot 5 enabled, the RAID controller option ROM might not have sufficient memory space to execute. In that case, disable other option ROMs that are not needed for the system configuration to free up some memory space for the RAID controller option ROM.

  • Guidelines for onboard NIC PXE booting:

If the system is configured to primarily perform PXE boot from onboard NICs, make sure that the option ROMs for the onboard NICs to be booted from are enabled in the BIOS Setup Utility. Disable other option ROMs that are not needed to create sufficient memory space for the onboard NICs.

Resolving Insufficient 16-Bit I/O Space

The system has only 64 KB of legacy 16-bit I/O resources available. This 64 KB of I/O space is divided between two I/O Hubs (IOH0 and IOH1) in the system.

The default BIOS setting is to allocate 40 KB to IOH0 and 24 KB to IOH1. Every PCIe device that is connected to IOH0 has to share the 40 KB of I/O. Every PCIe device connected to IOH1 must share that 24 KB of I/O.

When a large number of PCIe cards are installed in the system, the system BIOS might not have sufficient I/O space for some PCIe devices. If the system BIOS is not able to allocate the required I/O resources for any PCIe devices, the following symptoms have been observed:

  • The BIOS might appear to hang while initializing PCIe devices.
  • The PCIe option ROMs might take excessive time to complete, which appears to lock up the system.
  • PCIe boot devices might not be accessible from the BIOS.
  • PCIe option ROMs might report initialization errors. These errors are seen before the BIOS hands control to the operating system.
  • The keyboard might not work.

To work around this problem, rebalance the load on each IOH using the following methods:

1. Adjust the IOH IO Resource Allocation ratio. This option is included in the BIOS Setup Utility Advanced → PCI Configuration page (see Figure 3-28).

2. Physically remove any unused PCIe cards.

3. Physically rearrange the PCIe cards to create a balance between IOH0 and IOH1.

In this server, the PCIe slots are connected to IOH0 and IOH1 as follows:

Slot 1: IOH 1

Slot 2: IOH 1

Slot 3: IOH 1

Slot 4: IOH 1

Slot 5: IOH 0

Slot 6: IOH 0

Slot 7: IOH 0

Replacing the RAID Controller Battery Backup Unit

This server supports installation of up to two LSI RAID controller battery backup units (BBUs).


Note This optional LSI BBU is available only when using the optional LSI 9260-8i SAS MegaRAID controller card. This BBU provides approximately 72 hours of battery backup for the disk write-back cache DRAM in the case of sudden power loss.



Note LSI recommends that you replace the LSI BBU once per year or after 1,000 recharge cycles, whichever comes first. Verify whether BBU replacement is required by looking in the CIMC. Log in to CIMC for the server, then click Server—Inventory—Storage—Battery Backup Unit. If the Battery Replacement Required field says, “True,” then you must purchase a replacement BBU and replace it.



Warning There is danger of explosion if the battery is replaced incorrectly. Replace the battery only with the same or equivalent type recommended by the manufacturer. Dispose of used batteries according to the manufacturer’s instructions.
Statement 1015


To replace the RAID controller BBU, follow these steps:


Step 1 Remove a BBU (see Figure 3-29).

a. Power off the server as described in the “Shutting Down and Powering Off the Server” section.

b. Slide the server out the front of the rack far enough so that you can remove the top cover. You might have to detach cables from the rear panel to provide clearance.


Caution If you cannot safely view and access the component, remove the server from the rack.

c. Remove the top cover as described in the “Removing and Replacing the Server Top Cover” section.

d. Disconnect the cable that is attached to the BBU.

e. Grasp the plastic BBU holder and slide it upward to free its slotted holes from the two mounting pegs on the inner chassis wall.

f. Pull the retainer clip on the plastic BBU holder away from the BBU and then lift the BBU from the holder.

Step 2 Install a new BBU:

a. Set the new BBU into the plastic BBU holder and push it flat so that retaining clip closes over the BBU.

b. Insert the plastic BBU holder against the inner chassis wall and align the two holes in the back of the holder with the two pegs on the chassis wall.

c. Push the plastic BBU holder downward on the two mounting pegs until it stops.

d. Connect the cable from the RAID controller to the new BBU.

e. Replace the top cover.

f. Replace the server in the rack, replace cables, and then power on the server by pressing the Power button.

Figure 3-29 Removing the BBU

 

1

BBUs (up to 2)

3

Slotted holes for mounting pegs

2

Plastic BBU holder rear view

 

 


 

Installing a Trusted Platform Module

The trusted platform module (TPM) is a small circuit board that attaches to a motherboard socket. The socket location is on the motherboard, underneath the cage for power supply 1.


Note For security purposes, the TPM is installed with a one-way screw. It cannot be removed with a standard screwdriver.


To install a trusted platform module (TPM), follow these steps:


Step 1 Prepare the server for component installation.

a. Power off the server as described in the “Shutting Down and Powering Off the Server” section.

b. Slide the server out the front of the rack far enough so that you can remove the top cover. You might have to detach cables from the rear panel to provide clearance.


Caution If you cannot safely view and access the component, remove the server from the rack.

c. Remove the top cover as described in the “Removing and Replacing the Server Top Cover” section.

d. Remove the PCIe riser assembly that is in PCIe slot 1 (see Figure 3-26). See Replacing a PCIe Riser Assembly for details.

e. Remove power supply 1 from its cage. See Replacing Power Supplies for details.

Step 2 Install a TPM (see Figure 3-30):

a. Locate the TPM socket on the motherboard, as shown in Figure 3-30.

b. Align the connector that is on the bottom of the TPM circuit board with the motherboard TPM socket. Align the screw hole and standoff on the TPM board with the screw hole adjacent to the TPM socket.

c. Push down evenly on the TPM to seat it in the motherboard socket.

d. Install the single one-way screw that secures the TPM to the motherboard.

e. Replace power supply 1 to the empty bay.

f. Replace the PCIe riser assembly to PCIe slot 1.

g. Replace the top cover.

h. Replace the server in the rack, replace cables, and then power on the server by pressing the Power button.

Step 3 Enable the TPM:

a. Watch during bootup for the F2 prompt, and then press F2 to enter BIOS setup.

b. Log into the BIOS Setup utility with your BIOS Administrator password.

c. On the BIOS Setup utility screen, select the Advanced tab.

d. Select Trusted Computing to open the TPM Security Device Configuration screen.

e. Change TPM SUPPORT to Enabled.

f. Press F10 to save your settings and reboot the server.

Step 4 Verify that the TPM is now enabled.

a. Watch during bootup for the F2 prompt, and then press F2 to enter BIOS setup.

b. Log into the BIOS Setup utility with your BIOS Administrator password.

c. Select the Advanced tab.

d. Select Trusted Computing to open the TPM Security Device Configuration screen.

e. Verify that TPM SUPPORT is Enabled.


Note If you want to use the Intel Trusted Execution Technology (TXT) feature, it must be enabled in the server BIOS as described in Enabling the Intel Trusted Execution Technology (TXT) Feature For the TPM.


Figure 3-30 TPM Socket Location on Motherboard

 

1

TPM socket and screw hole on motherboard (visible through power supply cage with PCIe riser and power supply removed)

 

 


 

Enabling the Intel Trusted Execution Technology (TXT) Feature For the TPM

Intel TXT provides greater protection for information that is used and stored on the business server. A key aspect of that protection is the provision of an isolated execution environment and associated sections of memory where operations can be conducted on sensitive data, invisibly to the rest of the system. Likewise, Intel TXT provides for a sealed portion of storage where sensitive data such as encryption keys can be kept, helping to shield them from being compromised during an attack by malicious code.

To enable the TXT feature, follow these steps:


Step 1 Verify that a TPM is now installed and enabled in the server:

a. Either attach a VGA monitor and USB keyboard to the server, or log in remotely to the CIMC interface of the server and open a virtual KVM console window.

b. Reboot the server.

c. Watch during bootup for the F2 prompt, and then press F2 to enter BIOS setup.

d. Log in to the BIOS Setup utility with your BIOS Administrator password.


Note You must be logged in as the BIOS administrator to perform this procedure. If you have not done so already, set a BIOS administrator password on the Security tab of the BIOS Setup utility.


e. Select the Advanced tab.

f. On the Advanced tab, select Trusted Computing to open the TPM Security Device Configuration screen.

g. Verify that TPM SUPPORT is Enabled. If it is not, set TPM SUPPORT to Enabled.

h. Press Escape to return to the BIOS Setup utility Advanced tab.

Step 2 Enable the Intel Trusted Execution Technology (TXT) feature:

a. On the Advanced tab, select Intel TXT(LT-SX) Configuration to open the Intel TXT(LT-SX) Hardware Support screen.


Note The Intel Trusted Execution Technology feature can be enabled only when the server has a TPM installed on the TPM header.


b. Set TXT Support to Enabled.

Step 3 On the same screen, verify that the Intel Virtualization Technology (VT) and the Intel VT for Directed I/O (VT-d) features are enabled (the factory default).

a. On the Intel TXT(LT-SX) Hardware Support screen, verify that VT-d Support and VT Support are both listed as Enabled.

If they are already enabled, skip to Step 4.

If VT-d Support and VT Support are not enabled, continue with the next steps to enable them.

b. Press Escape to return to the BIOS Setup utility Advanced tab.

c. On the Advanced tab, select Processor Configuration to open the Processor Configuration screen.

d. Set Intel (R) VT and Intel (R) VT-d to Enabled.

Step 4 Press F10 to save your changes and exit the BIOS Setup utility.

Step 5 Verify that the Intel TXT, VT, and VT-d features are enabled:

a. Reboot the server.

b. Watch during bootup for the F2 prompt, and then press F2 to enter BIOS setup.

c. Select the Advanced tab.

d. Select Intel TXT(LT-SX) Configuration and verify that TXT Support, VT-d Support, and VT Support are Enabled.


 

Replacing Power Supplies

The server can have one or two power supplies. When two power supplies are installed they are redundant as 1+1.

To replace or install a power supply, follow these steps:


Note If you have ordered a server with power supply redundancy (two power supplies), you do not have to power off the server to replace power supplies because they are redundant as 1+1.



Step 1 Remove the power supply that you are replacing or a blank panel from an empty bay (see Figure 3-31):

a. Perform one of the following actions:

If your server has only one power supply, shut down and power off the server as described in the “Shutting Down and Powering Off the Server” section.

If your server has two power supplies, you do not have to shut down the server.

b. Remove the power cord from the power supply that you are replacing.

c. Grasp the power supply handle while pinching the release lever towards the handle.

d. Pull the power supply out of the bay.

Step 2 Install a new power supply:

a. Grasp the power supply handle and insert the new power supply into the empty bay.

b. Push the power supply into the bay until the release lever locks.

c. Connect the power cord to the new power supply.

d. If you shut down the server, press the Power button to return the server to main power mode.

Figure 3-31 Removing and Replacing Power Supplies

 

1

Power supply handle

2

Power supply release lever


 

Enabling or Disabling the Internal USB Port

The factory default is for all USB ports on the server to be enabled. However, the internal USB port can be enabled or disabled in the server BIOS. To enable or disable the internal USB port, follow these steps:


Step 1 Enter the BIOS Setup utility by pressing the F2 key when prompted during bootup.

Step 2 Navigate to the Advanced tab.

Step 3 On the Advanced tab, select USB Configuration.

Step 4 On the USB Configuration page, select USB Ports Configuration.

Step 5 Scroll to USB Port: Internal, press Enter, and then select either Enabled or Disabled from the pop-up menu.

Step 6 Press F10 to save and exit the utility.