温度要件
スイッチには 32 ~ 104 °F(0 ~ 40 °C)の動作温度が必要です。スイッチが動作していない場合、温度は -40 ~ 158°F(-40 ~ 70°C)である必要があります。
The documentation set for this product strives to use bias-free language. For the purposes of this documentation set, bias-free is defined as language that does not imply discrimination based on age, disability, gender, racial identity, ethnic identity, sexual orientation, socioeconomic status, and intersectionality. Exceptions may be present in the documentation due to language that is hardcoded in the user interfaces of the product software, language used based on RFP documentation, or language that is used by a referenced third-party product. Learn more about how Cisco is using Inclusive Language.
スイッチには 32 ~ 104 °F(0 ~ 40 °C)の動作温度が必要です。スイッチが動作していない場合、温度は -40 ~ 158°F(-40 ~ 70°C)である必要があります。
湿度が高いと、スイッチに湿気が入ることがあります。湿気が原因で、内部コンポーネントの腐食、および電気抵抗、熱伝導性、物理的強度、サイズなどの特性の劣化が発生することがあります。スイッチは、5 ~ 95%(結露なし)の相対湿度に耐えると評価されます。
温暖期の空調と寒冷期の暖房により室温が四季を通して管理されている建物内では、スイッチ装置にとって、通常許容できるレベルの湿度が維持されています。ただし、スイッチを極端に湿度の高い場所に設置する場合は、除湿装置を使用して、湿度を許容範囲内に維持してください。
高度定格は、取り付けられている電源に基づいています。高度定格については、「システム CB レポート」の「重要なコンポーネント」のリストを参照してください。
シャーシ内のさまざまな開口部を通じて空気を吸気および排気することによって、排気ファンは電源モジュールを冷却し、システム ファンはスイッチを冷却します。しかし、ファンはほこりやその他の微粒子を吸い込み、スイッチに混入物質を蓄積させ、内部シャーシの温度が上昇する原因にもなります。ほこりや微粒子は絶縁体となり、スイッチの機械部品と干渉する可能性があります。清潔な稼働環境を維持することにより、ほこりなどの微粒子による悪影響を大幅に減らすことができます。
ほこりや粒子が付かない環境を保つことに加えて、これらの前提条件に従い、スイッチが汚れないようにします。
スイッチの近くでの喫煙を禁止する。
スイッチの近くでの飲食を禁止する。
スイッチからの電磁波干渉(EMI)および無線周波数干渉(RFI)は、他のデバイス(ラジオおよびテレビ受信機)に悪影響を及ぼす可能性があります。また、スイッチから出る無線周波数が、コードレス電話や低出力電話の通信を妨げる場合もあります。逆に、高出力の電話からの RFI によって、スイッチのモニタに意味不明の文字が表示されることがあります。
RFI は、10 kHz を超える周波数を発生させる EMI として定義されます。このタイプの干渉は、電源ケーブルおよび電源を通じて、または送信された電波のように空気中を通じてスイッチから他の装置に伝わる場合があります。米国連邦通信委員会(FCC)は、コンピュータ装置が放出する EMI および RFI の量を制限する固有の規制を公表しています。各スイッチは、FCC の規格を満たしています。
EMI および RFI の発生を抑えるために、次の注意事項に従ってください。
すべての空き拡張スロットをブランク フィラー プレートで覆います。
スイッチと周辺装置との接続には、必ず、金属製コネクタ シェル付きのシールド ケーブルを使用します。
電磁界内で長距離にわたって配線を行う場合、配線上の信号の間で干渉が発生することがあり、そのために次のような影響があります。
配線を適切に行わないと、プラント配線から無線干渉が発生することがあります。
特に雷または無線トランスミッタによって生じる強力な EMI は、シャーシ内の信号ドライバやレシーバーを破損したり、電圧サージが回線を介して装置内に伝導するなど、電気的に危険な状況をもたらす原因になります。
![]() (注) |
強力な EMI を予測して防止するには、RFI の専門家に相談する必要があります。 |
アース導体を適切に配置してツイストペア ケーブルを使用すれば、配線から無線干渉が発生することはほとんどありません。推奨距離を超える場合は、データ信号ごとにアース導体を施した高品質のツイストペア ケーブルを使用してください。
![]() 注意 |
配線が推奨距離を超える場合、または配線が建物間にまたがる場合は、近辺で発生する落雷の影響に十分に注意してください。雷などの高エネルギー現象で発生する電磁パルス(EMP)により、電子スイッチを破壊するほどのエネルギーが非シールド導体に発生することがあります。過去にこのような問題が発生した場合は、電力サージ抑制やシールドの専門家に相談してください。 |
スイッチは、動作範囲、運搬、および地震の標準を満たすように衝撃と振動の検査を受けています。
スイッチは、電源によって供給される電圧の変動の影響を受けます。過電圧、低電圧、および過渡電圧(またはスパイク)によって、データがメモリから消去されたり、コンポーネントの障害が発生するおそれがあります。このような問題から保護するために、スイッチにアース接続があることを確認してください。スイッチのアース パッドは、アース接続に直接接続するか、完全に接合されてアースされたラックに接続できます。
アースされたラックに正しくシャーシを取り付けている場合、スイッチはラックに金属間接続されているためアースされています。また、国や地域の設置要件を満たすユーザが用意したアース線を使用して、シャーシをアースすることができます。米国で設置する場合は、6-AWG 線をお勧めします。アース ラグ(スイッチ アクセサリ キットに同梱)を使用してアース線をシャーシおよび設置場所のアースに接続します。
![]() (注) |
AC 電源に接続すると、AC 電源モジュールが自動的にアースされます。DC 電源モジュールの場合、電源モジュールを DC 電源に配線するときにアース線を接続する必要があります。 |
スイッチには、次のいずれかの組み合わせで 2 台の電源モジュールが付属しています(電流を共有した 1 対 1 の冗長性)。
1200 W 標準 AC 電源モジュール(NEBS 準拠)2 台
1200 W HVAC/HVDC 電源モジュール 2 台
930 W DC 電源モジュール 2 台
![]() (注) |
両方の電源モジュールは同じ種類でなければなりません。同じシャーシ内で AC、DC、HVAC/HVDC の電源モジュールを混在させないでください。 |
![]() (注) |
冗長性が n+1 の場合は、2 つの電源モジュールに 1 つまたは 2 つの電源を使用できます。冗長性が n + n の場合は、2 つの電源を使用して、それぞれの電源モジュールを独立した電源に接続する必要があります。 |
電源モジュールの定格出力は、最大 1200 W(AC および HVAC/HVDC 電源モジュール)または最大 930 W(DC 電源モジュール)ですが、スイッチは電源モジュールから供給されるこれらの電力ほどの電力は必要としません。スイッチを起動するには、スイッチと電源モジュールの両方の要件をカバーするために電源から十分な電力をプロビジョニングする必要があります。通常、このスイッチと電源モジュールには電源から 310 W の電源入力を必要としますが、ピーク時の需要に対応できるように電源から 1050 W ほどの電源入力をプロビジョニングする必要があります。
![]() (注) |
電源モジュールによっては、スイッチ要件を超える定格機能を備えている場合があります。所要電力を計算する場合、スイッチ要件を使用して電源モジュールに必要な電力量を決定します。 |
回路の障害の可能性を最小限に抑えるために、スイッチで使用する各電源回路がそのスイッチ専用であることを確認します。
![]() (注) |
AC 入力の用途の場合、以下のステートメントを参照してください。 |
![]() 警告 |
ステートメント 1005:回路ブレーカー この製品は設置する建物に回路短絡(過電流)保護機構が備わっていることを前提に設計されています。防護デバイスと 20A (北米) 16A (ヨーロッパ)、および 13A (英国) よりも大きい値は評価しないことを確認します。 |
![]() (注) |
DC 入力の用途の場合、以下のステートメントを参照してください。 |
![]() 警告 |
ステートメント 1005:回路ブレーカー この製品は設置する建物に回路短絡(過電流)保護機構が備わっていることを前提に設計されています。
|
![]() 警告 |
ステートメント 1033 装置は、必ず、IEC 60950 に基づいた安全基準の安全超低電圧(SELV)の要件に準拠する DC 電源に接続してください。 |
![]() (注) |
米国で DC 設置を行う場合は、8-AWG 線をお勧めします。 |
![]() (注) |
電源モジュールに使用する電源コードについては、電源ケーブルの仕様を参照してください。 |
スイッチは、ケーブル配線や保守要件に応じて、ラックの前面または背面のどちらかにポートが配置されています。次のいずれかの方法でコールド アイルからホット アイルに冷却空気を移動させるファンと電源モジュールが必要です。
ポート側排気エアーフロー:冷却空気は、コールド アイルのファンと電源モジュールからシャーシに入り、ホット アイルのシャーシのポート端から抜けます。
ポート側吸気エアーフロー:冷却空気は、コールド アイルのポート端からシャーシに入り、ホット アイルのファンと電源モジュールから抜けます。
双方向エアーフロー:設置されているファン モジュールの方向はエアーフローによって決まります。
ファンおよび電源モジュールそれぞれのエアーフローの方向は、次のようにその色で識別できます。
青色のカラーリングは、ポート側排気エアーフローを示します。
赤紫色のカラーリングは、ポート側吸気エアーフローを示します。
HVAC/HVDC 電源の白色のカラーリングは、双方向エアーフローを示します。
DC 電源の灰色のカラーリングは、ポート側排気エアーフローを示します。
DC 電源の緑色のカラーリングは、ポート側吸気エアーフローを示します。
![]() (注) |
スイッチの過熱やシャットダウンを防ぐために、スイッチの空気取り入れ口はコールド アイルに配置する必要があります。ファンと電源モジュールは、エアーフローの方向が同じである必要があります(その色が異なる場合でも)。スイッチのエアーフロー方向を変更する必要がある場合は、モジュールを変更する前にスイッチをシャットダウンする必要があります。 |
次のタイプのスイッチ用ラックまたはキャビネットを設置できます。
標準穴あき型キャビネット
ルーフ ファン トレイ(下から上への冷却用)付きの 1 枚壁型キャビネット
標準の Telco 4 支柱オープン ラック
標準の Telco 2 支柱オープン ラック
キャビネットのベンダーに相談して次の要件を満たすキャビネットを見つけるか、Cisco Technical Assistance Center(TAC)で推奨品を確認してください。
取り付けレールが ANSI/EIA-310-D-1992 セクション 1 に基づく英国ユニバーサル ピッチの規格に準拠する、標準 19 インチ(48.3 cm)4 支柱 Electronic Industries Alliance(EIA)キャビネットまたはラックを使用してください。
4 支柱ラックの奥行は、正面および背面の取り付けレール間で 24 ~ 32 インチ(61.0 ~ 81.3 cm)である必要があります(下部支持ブラケットまたは他の取り付けハードウェアの適切な取り付けのため)。
シャーシとラックの端またはキャビネット内部の間に必要なスペースは次のとおりです。
シャーシの前面とキャビネット内部の間に 4.5 インチ(11.4 cm)(ケーブル配線に必要)。
シャーシの背面とキャビネット内部の間に 3.0 インチ(7.6 cm)(使用する場合、キャビネットのエアーフローに必要)。
シャーシとラックまたはキャビネットの側面のスペースは不要(横方向のエアーフローなし)。
また、電源コンセントは、スイッチが使用する電力コードの届く範囲にある必要があります。
![]() 警告 |
ステートメント 1048:ラックの安定性 ラックの安定装置を取り付けるか、ラックを床にボルトで固定してから、設置または保守を行う必要があります。ラックを安定させないと、身体に傷害を負う可能性があります。 |
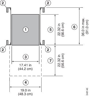
シャーシの設置を正しく行えるように、シャーシと他のラック、デバイス、または構造体との間に適切なスペースを確保します。ケーブルの配線、通気の確保、およびスイッチのメンテナンスを行えるように、シャーシに適切なスペースを確保します。4 支柱ラックへのこのシャーシの設置に必要なスペースについては、次の図を参照してください。
1 |
シャーシ |
5 |
シャーシの奥行 |
2 |
ラックマウントの垂直の支柱とレール |
6 |
下部支持レールの最大延長 |
3 |
シャーシの幅 |
7 |
前面のスペースの奥行(シャーシ奥行と等しい長さ) |
4 |
前面のスペースの幅(2 個のラックマウント ブラケットが取り付けられているシャーシの幅と等しい長さ) |
![]() (注) |
シャーシの前面および背面の両方がエアーフローの両アイルに開かれる必要があります。 |