FindIT Network Probe(查找IT网络探测功能)上的Floor Plan(楼层规划)视图允许您跟踪网络设备的物理位置。您可以上传建筑或建筑中每层的规划,并将每台网络设备放置在规划中。这有助于在需要维护时轻松定位设备。
建筑平面图的运行与拓扑图类似,而放置在建筑平面图上的设备的运行方式与拓扑图中的设备相同。
本文提供有关如何在FindIT网络探测功能上管理楼层规划以及根据网络设备的位置放置网络设备的说明。
步骤1.登录FindIT Network Probe的Administration GUI。

步骤2.选择“发现”>“平面图”。

步骤3.在New Building字段中输入楼层所在建筑的名称。

注意:在本例中,Office用作建筑名称。
步骤4.单击“保存”。
步骤5.将包含楼层规划图的图像文件拖放到新楼层的目标区域。支持的图像格式为.png、.gif和.jpg。最大映像大小为500 KB。

注意:或者,您也可以点击目标区域,从计算机上传图像。
步骤6.在“新建楼层”字段中输入楼层名称。

注意:在本例中,楼层名称使用“底层”。
步骤7.单击“保存”。
步骤8.对每个楼层和网络设备重复步骤6到7。

步骤9.对每栋建筑重复步骤3至8。
您现在应该已创建新建筑和楼层规划。
步骤1.选择“发现”>“平面图”。

步骤2.单击建筑名称旁边的“编辑”按钮编辑名称。

步骤3.在“建筑名称”字段中输入新建筑名称。

步骤4.单击“保存”按钮。
步骤5.单击楼层名称旁的“编辑”按钮编辑名称。

步骤6.在“楼层名称”字段中输入新的楼层名称。

步骤7.单击“保存”按钮。
现在,您应该已保存楼层规划图中的更改。

步骤1.选择“发现”>“平面图”。

步骤2.要删除建筑平面图,请点击要删除的建筑平面图名称旁边的删除图标。

步骤3.单击“确定”继续。

步骤4.要删除建筑,请点击要删除的建筑名称旁边的删除图标。

步骤5.单击“确定”继续。

您现在应该已删除楼层规划图。
您可以管理站点的楼层规划并放置网络设备,以记录设备的位置。以下步骤将指导您完成此过程。
步骤1.在“发现”工作窗格中,单击“楼层规划”。

步骤2.单击楼层规划图。

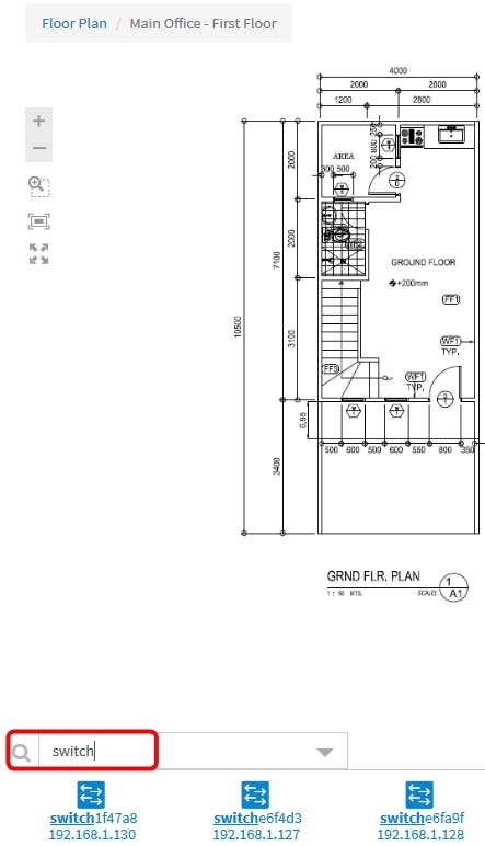
注意:在本例中,选择了Main Office中的First Floor。
步骤3.要将设备放在楼层规划图中,请在屏幕底部的搜索框中输入设备名称或IP地址。键入时,将显示匹配的设备。灰显的设备图标表示已放置在楼层规划图中的设备。

注意:在本例中,交换机用于搜索。
步骤4.单击设备将其添加到建筑平面图。

注意:在本例中,选择switch1f47a8。
所选设备将显示在楼层规划图中。

现在,您应该已在楼层规划图中添加了网络设备。
步骤1.选择“发现”>“建筑平面图”,然后单击建筑平面图。

注意:在本例中,选择了Main Office中的First Floor。
步骤2.单击设备将其添加到建筑平面图。
重要信息:如果您选择的设备已放在另一个楼层规划图上,该设备将被移除并添加到此楼层规划图。

步骤3.单击并拖动设备以移动到楼层规划图中的所需位置。
步骤4.重复步骤2和3,直到所有设备都添加到建筑平面图。

现在,您应该已经将网络设备定位在楼层规划图上。
步骤1.选择“发现”>“楼层规划”,然后单击楼层规划。

注意:在本例中,选择“First Floor”。
步骤2.单击要删除的设备。

注意:在本例中,选择WAP150。
步骤3.单击显示的Delete按钮,将设备从建筑平面图中删除。

您现在应该已从平面图中移除设备。
