Installing the Cisco NCS 4216 14RU

This chapter describes how to install the Cisco NCS 4216 14RU.

Prerequisites

Before installing the Cisco NCS 4216 14RU, it is important to prepare for the installation by:

  • Preparing the site (site planning) and reviewing the installation plans or method of procedures (MOP)
  • Unpacking and inspecting the Cisco NCS 4216 14RU
  • Gathering the tools and test equipment required to properly install the Cisco NCS 4216 14RU

For more instructions on how to prepare for the installation of the Cisco NCS 4216 14RU, see the Preparing for Installation section.

Installing the Router in a Rack

The following sections describe how to install the Cisco NCS 4216 14 RU Router in a rack:

Installing the Chassis Brackets

The chassis is shipped with mounting brackets that can be installed on the front or rear of the chassis. To install the brackets on the front of the chassis, perform these steps:

Procedure


Step 1

Remove the rack-mount brackets from the accessory kit and position them beside the router chassis.

The figure below shows how to attach the brackets on the Cisco NCS 4216 14RU Router for the 23-inch rack.

Figure 1. Attaching Mounting Brackets for the 23-inch Rack

Step 2

Position one of the brackets against the chassis side, and align the screw holes.

Step 3

Secure the bracket to the chassis with the screws removed when performing Step 1. The recommended maximum torque is 28 in.-lb (3.16 N-m).


What to do next

Repeat Step 2 and Step 3 for the other bracket.

Installing the Router Chassis in the Rack

The procedures in this section apply to both horizontal and vertical mounting of the router in a rack.

To install the router chassis in the equipment rack, perform these steps:

Procedure


Step 1

Position the chassis in the rack as follows:

  • If the front of the chassis (front panel) is at the front of the rack, insert the rear of the chassis between the mounting posts.
  • If the rear of the chassis is at the front of the rack, insert the front of the chassis between the mounting posts.

Step 2

Align the mounting holes in the bracket (and optional cable guide) with the mounting holes in the equipment rack.

Caution

 

Do not use interface module and power supply ejector handles to lift the chassis; using the handles to lift the chassis can deform or damage the handles. Installing the Chassis to support the Japanese JIS Rack Standard.

Figure 2. Installing the Chassis in the 23-inch Rack

Step 3

Install the 8 or 12 (4 or 6 per side) 12-24 x 3/4-inch or 10-32 x 3/4-inch screws through the holes in the bracket and into the threaded holes in the equipment rack posts.

Step 4

Use a tape measure and level to verify that the chassis is installed straight and level.


Installing the Cisco NCS 4216 14RU Door

This section describes how to install the Cisco NCS 4216 14RU door.

Figure 3. Installing the Door Brackets
Figure 4. Installing the Cisco NCS 4216 14RU Door

To install the door of NCS 4216 14RU shelf, follow the steps below:

Procedure


Step 1

Align the left door bracket screw holes against the shelf screw holes.

Step 2

Insert the fasteners provided along with the packaging (four screws from outside and two screws from inside of the two door brackets) and tighten them to a torque value of 11.5 in-lb (1.3 N-m).

Step 3

Place a safety washer on the front bottom of the door brackets and fasten it with a fastener.

Step 4

Align the door latches against screw holes on the opposite side.

Step 5

Insert the fasteners provided along with the packaging (four screws with two screws on the bottom and two screws on the top) and tighten them to a torque value of 11.5 in-lb (1.3 N-m).

Step 6

Pull the top hinge pin down on the door.

Note

 
The bottom hinge pin is fixed.

Step 7

Align the door hinges with the bracket hinges.

Step 8

Slide the bottom hinge pin into the bracket hinge and move the top hinge pin in the upward direction.

Note

 
The ground strap cable is pre-installed on the door.

Step 9

Connect the other end of the ground strap cable to a grounding point on the door bracket using a fastener.


Removing and Replacing the Door of the NCS 4216 14RU Shelf

This procedure opens and removes the door of the Cisco NCS 4216 14RU shelf.


Note


The Cisco NCS 4216 14RU shelf has an ESD plug input and is shipped with an ESD wrist strap. The ESD plug input is located on the outside of the shelf on the right side. It is labeled “ESD” on the top and bottom. Always wear an ESD wrist strap and connect the strap to the ESD plug when working on the NCS shelf.

To open and remove the door of the Cisco NCS 4216 14RU router, follow the steps below:

Procedure


Step 1

Flip the latches on the top and bottom to unlock the door.

Step 2

Swing the door open.

Step 3

Remove the ground cable from the shelf by removing the screw.

Step 4

Pull the top hinge pin holding the door to the chassis, in the downward direction.

Step 5

Lift the door out of the bottom hinge pin to remove the door from its hinges.


Installing the Patch Panel on the Rack

This procedure installs the Patch Panel on the Rack.

Procedure


Step 1

Assemble the patch panels on the opposite side of the rack to make the cable routing process easy.

Step 2

Fix one patch panel with a minimum of two screws on each side.

Figure 5. Installing the Patch Panel on the Rack

Installing the Chassis Ground Connection

Before you connect the power or turn on the power to the Cisco NCS 4216 14RU, you must provide an adequate chassis ground (earth) connection to your router.

This section describes how to ground the Cisco NCS 4216 14RU chassis. The router provides two locations for attaching a 2-hole grounding lug according to the rack-mounting brackets you use to install the router.


Note


It is sufficient to connect only one grounding lug.


Figure 6. Attaching a Grounding Lug to the Front of the Router
Figure 7. Attaching a Grounding Lug to the Rear of the Router

1, 2

Grounding lug

To ensure that the chassis ground connection that you provide is adequate, you need the following parts and tools:

  • Ratcheting torque screwdriver with Phillips head that exerts up to 15 in.-lb (1.69 N-m) of pressure for attaching the ground wire to the router
  • Crimping tool as specified by the ground lug manufacturer
  • 6 or 8 AWG copper wire for the power cord
  • 6 AWG or larger copper wire for the ground wire
  • Wire-stripping tools appropriate to the wire you are using

Caution


Before making connections to the Cisco NCS 4216 14RU, ensure that you disconnect the power at the circuit breaker. Otherwise, severe injury to you or damage to the router may occur.



Warning


This equipment must be grounded. Never defeat the ground conductor or operate the equipment in the absence of a suitably installed ground conductor. Contact the appropriate electrical inspection authority or an electrician if you are uncertain that suitable grounding is available. Statement 1024



Warning


Use copper conductors only. Statement 1025



Warning


When installing the unit, the ground connection must always be made first and disconnected last. Statement 42


This unit is to be installed in a restrictive access location and must be permanently grounded to minimum 6 AWG copper ground wire.

Perform the following procedure to ground the Cisco NCS 4216 14RU using a 2-hole lug and the corresponding mounting point. Most carriers require a minimum 6 AWG ground connection. Verify your carrier’s requirements for the ground connection.

Procedure


Step 1

If your ground wire is insulated, use a wire-stripping tool to strip the ground wire to 0.5 inch ± 0.02 inch (12.7 mm ±0.5 mm).

Figure 8. Stripping a Ground Wire

Step 2

Slide the open end of your 2-hole ground lug over the exposed area of the ground wire.

Step 3

Using a crimping tool (as specified by the ground lug manufacturer), crimp the ground lug to the ground wire as shown in the figure below.

Figure 9. Crimping a Ground Lug onto the Ground Wire

Step 4

Use a Phillips head screwdriver to attach the 2-hole ground lug and wire assembly to the router with the 2 pan-head Phillips head screws. For a 23-inch EIA rack, attach the 2-hole ground lug to the front or the rear of the router.

Step 5

Connect the other end of the ground wire to a suitable grounding point at your site.


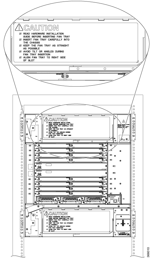
Installing the Fan Tray

The fan tray is a modular unit that provides cooling to the Cisco NCS 4216 14RU. Follow these steps to install the fan tray in the chassis:


Warning


Do not introduce body parts or objects in the fan tray slot when installing or removing the fan tray module. Exposed circuitry is an energy hazard.

Procedure


Step 1

Insert the fan trays gently inside the flap door to allow smooth entry of the fan as shown below. For more instructions, refer to the caution label on the flap door.

Figure 10. Flap Door for Fan Tray
Figure 11. Installing the Fan Tray

Note

 
The fan trays are assembled with filters when shipped. You can remove the filters for easy installation of fan trays. For more information, see Removing and Replacing the Dust Filter section.

Warning

 
While installing the fan tray, align the fan tray towards the right of the chassis to avoid any damage to your fingers or to the equipment. The fans are exposed on the front of the fan tray without the dust filter. Always handle the fan tray by the handle.

Step 2

Orient the fan trays so that the captive screws are on the top of the fan tray’s front panel.

Step 3

Guide the fan trays into the chassis until it is fully seated.

Step 4

Secure the fan trays to the chassis using the attached captive installation screws. The recommended maximum torque is 5.5 in.-lb (.62 N-m).

Note

 

Top fan tray is the master fan tray and it is mandatory to run. Without the top fan tray the PSU fan tray runs at full speed.

This completes the procedure for installing or replacing the fan trays in a Cisco NCS 4216 14RU.

For information about connecting cables to the fan tray alarm port, see the Connecting the Fan Tray Alarm Port section. For a summary of the LEDs on the fan tray, see the LED Summary section. For more information about air flow guidelines, see Air Flow Guidelines section.


Removing the Dust Filter

Remove the dust filter for a replacement.


Note


  • The dust filter is a single-use component.

  • Use the dust filter (A907-FAN-F) within 6 months of buying as the shelf or storage life is less than 6 months. The ideal storage condition for a filter is a cool, dry, and dark environment. Surroundings that adversely affect the dust filter are high heat, humidity at high temperatures, and ultraviolet light.


Removing and Replacing the Dust Filter

Procedure

Step 1

Remove the fan filter cover (NCS4216-F2B-FAN-F=) by unscrewing the captive installation screws at the top and bottom of the dust filter frame. See the figure below.

Figure 12. Fan Filter

Step 2

Fix the new dust filter onto the fan tray.

Step 3

Secure the filter with the top and bottom captive screws, in the chassis.


Dust Filter Maintenance

A periodic health check of the filter, every three months based on the level of dust in the environment helps in avoiding over clogging of the filters and provide better life. The product's filter may be used as a single use or reused depending upon the local deployment needs. If reuse of the filter is prohibited, it may be replaced every six months with the part number (NCS4216-F2B-FAN-F=) or equivalent.


Caution


Avoid using harsh solvents or cleaning agents.


Removing and Replacing the Fan Tray

The fan tray supports online insertion and removal (OIR). There’s no need to power down the Cisco NCS 4216 14RU to remove or replace the fan tray. You can remove or replace only one fan tray at a time. However, if the fan tray is removed for more than 5 minutes at 30º C, the router shuts down. If more than one fan tray is removed, the system shuts down immediately. Once the thermal overload condition is absent, the system attempts to power up automatically if the fan tray is reinserted and the system temperature is within limits. At approximately 25º C, the system powers back in 2 minutes.


Note


If the system shuts down due to overheating, the removed fan tray must be reinserted before powering up the system. After the system is online, the alarms generated before the shutdown must be cleared in the Cisco Evolved Programmable Network Manager (EPNM) or any other server manager used to manage the device.



Note


Don’t introduce body parts or objects in the fan tray slot when installing or removing the fan tray module. Exposed circuitry is an energy hazard.

Caution


The router can stay active for up to 60 seconds if the temperature is below the ambient limit. However, in the event of an overtemperature alarm, the router can shut down in less than 60 seconds. In the event of a critical temperature alarm, the router shuts down immediately.



Caution


To avoid erroneous failure messages, allow at least 2 minutes for the system to reinitialize after the fan tray has been removed or replaced.


Installing the PSU Fan Tray

Follow these steps to install the PSU fan tray on the Cisco NCS 4216 14RU:

Procedure


Step 1

Insert the PSU fan tray into the chassis until it is firmly seated.

Figure 13. Installing the PSU Fan Tray

Step 2

Using a No. 2 Phillips screwdriver or your fingers, tighten the captive installation screw that secures the fan tray to the chassis. The following figure shows the front of the fan tray, including the captive installation screws.

Figure 14. Attaching the Fan Tray

1

Fan tray handle

2

Captive screw

Step 3

Ensure that the fan tray is fixed and engaged to the power receptacle on the midplane.


Removing and Replacing the PSU Fan Tray

Follow these steps to remove and replace the PSU fan tray on the Cisco NCS 4216 14RU:

Procedure


Step 1

Using a No. 2 Phillips screwdriver or your fingers, loosen the captive installation screw that secures the fan tray to the chassis.

Step 2

Grasp the fan tray handle with one hand and pull out.

Caution

 
The fans are exposed on the right side of the fan tray. Keep your fingers, clothing, and jewelry away from the fans. Always handle the fan tray by the handle.

Step 3

Pull the fan tray toward you no more than 1 inch to disengage it from the power receptacle on the midplane, as shown in the following figure.

Figure 15. Fan Tray Removal

Warning

 
When removing the fan tray, keep your hands and fingers away from the spinning fan blades. Let the fan blades completely stop before you remove the fan tray. Statement 258

Note

 
As the fan tray slides out of the chassis, support the bottom of the fan tray with one hand and keep your other hand on the fan tray handle.

Note

 
The chassis must not be allowed to operate without fans.

Step 4

Completely remove the fan tray from the chassis and replace it with a new one.


RSP Installation

Follow the steps in the sections below on handling an RSP module in the Cisco NCS 4216 14RU:

Installing an RSP Module

To install an RSP module in the router chassis, perform the following steps:

Procedure


Step 1

Choose a slot for the module. Make sure that there is enough clearance to accommodate any equipment that will be connected to the ports on the module. If a blank module filler plate is installed in the slot in which you plan to install the module, remove the plate by removing its 2 Phillips pan-head screws.

Step 2

Fully open both the ejector levers on the new module, as shown in the figure below.

Caution

 

To prevent ESD damage, handle modules by carrier edges only.

Step 3

Position the module in the slot. Make sure that you align the sides of the module with the guides on each side of the slot, as shown in the figure below.

Figure 16. Cisco NCS 4216 14RU RSP Installation

Step 4

Carefully slide the module into the slot until the EMI gasket on the module makes contact with the module in the adjacent slot and both the ejector levers have closed to approximately 45 degrees with respect to the module faceplate.

Caution

 

If the top slot already has an RSP module installed, and you install a second RSP module in the slot below it, be careful not to damage the EMI gasket of the bottom RSP module against the ejector levers of the top RSP during insertion.

Step 5

While pressing down, simultaneously close both the ejector levers to fully seat the module in the backplane connector. The ejector levers are fully closed when they are flush with the module faceplate.

Step 6

Tighten the two captive installation screws on the module. The recommended maximum torque is 5.5 in.-lb (.62 N-m).

Note

 
Make sure that the ejector levers are fully closed before tightening the captive installation screws.

Step 7

Verify that the captive installation screws are tightened on all of the modules installed in the chassis. This step ensures that the EMI gaskets on all the modules are fully compressed in order to maximize the opening space for the new or replacement module.

Note

 
If the captive installation screws are loose, the EMI gaskets on the installed modules will push adjacent modules toward the open slot, which reduces the size of the opening and makes it difficult to install the new module.

Caution

 

Blank module filler plates (Cisco part number A90X-RSPA-BLANK-W) should be installed in any empty chassis slots to keep dust out of the chassis and to maintain consistent airflow through the chassis.

Note

 
When installing the cabling to an RSP, we recommend that you leave a service loop of extra cabling sufficient to allow for fan tray removal.

Removing an RSP Module

Before you remove an RSP from the router, you must save the current configuration on a TFTP server or an external USB flash drive, using the copy running-config {ftp | tftp | bootflash: } command. This saves you time when bringing the module back online.

If the module is running Cisco IOS software, save the current running configuration by entering the copy running-config startup-config command.


Warning


Hazardous voltage or energy is present on the backplane when the system is operating. Use caution when servicing. Statement 1034



Warning


Invisible laser radiation may be emitted from disconnected fibers or connectors. Do not stare into beams or view directly with optical instruments. Statement 1051


To remove an RSP module, perform the following steps:

Procedure


Step 1

Disconnect any cables attached to the ports on the module.

Step 2

Verify that the captive installation screws on all the modules in the chassis are tight. This step ensures that the space created by the removed module is maintained.

Note

 
If the captive installation screws are loose, the EMI gaskets on the installed modules push the modules toward the open slot, which in turn reduces the size of the opening and makes it difficult to remove the module.

Step 3

Loosen the two captive installation screws on the module you plan to remove from the chassis.

Step 4

Place your thumbs on the ejector levers (see figure Cisco NCS 4216 14RU RSP Installation) and simultaneously rotate the ejector levers outward to unseat the module from the backplane connector.

Step 5

Grasp the front edge of the module and slide the module straight out of the slot. If the chassis has horizontal slots, place your hand under the module to support its weight as you slide it out from the slot. Do not touch the module circuitry.

Caution

 
To prevent ESD damage, handle modules by the carrier edges only.

Step 6

Place the module on an antistatic mat or antistatic foam, or immediately reinstall the module in another slot.

Step 7

Install blank module filler plates (Cisco part number A9XX-RSPB-BLANK) in empty slots, if any.

Warning

 

Blank faceplates and cover panels serve three important functions: they prevent exposure to hazardous voltages and currents inside the chassis; they contain electromagnetic interference (EMI) that might disrupt other equipment; and they direct the flow of cooling air through the chassis. Do not operate the system unless all cards, faceplates, front covers, and rear covers are in place. Statement 1029


Hot-Swapping an RSP Module

The Cisco NCS 4216 14RU provides a feature that allows you to remove and replace a redundant RSP module without powering down the router. This feature, called hot-swapping or OIR, allows you to remove and replace a redundant module without disrupting router operation.

When two redundant modules are installed in the router, only one of the modules is active. The other one runs in standby mode, ready to take over processing if the active module fails.

When you remove or insert a redundant module while the router is powered on and running, the router does the following:

  1. Determines if there is sufficient power for the module.
  2. Scans the backplane for configuration changes.
  3. Initializes the newly inserted module. In addition, the system notes any removed modules and places those modules in the administratively shutdown state.
  4. Places any previously configured interfaces on the module back to the state they were in when they were removed. Any newly inserted interfaces are put in the administratively shutdown state as if they were present (but unconfigured) at boot time. If you insert the same type of module into a slot, its ports are configured and brought online up to the port count of the original module.

The router runs diagnostic tests on any new interfaces and the test results indicate the following:

  • If the tests pass, the router is operating normally.
  • If the new module is faulty, the router resumes normal operation but leaves the new interfaces disabled.
  • If the diagnostic tests fail, the router stops operating, which usually indicates that the new module has a problem in the bus and should be removed.

Use the following guidelines when performing an OIR on an IM:

  • Allow at least 2 minutes for the system to reinitialize before inserting a new IM.
  • Avoid inserting a new IM during bootup until the active and standby RSPs have reached an OK state.
  • When inserting multiple IMs into the chassis, wait until each IM reaches an OK state before inserting the next IM.

Interface Module Installation

The sections describe the various tasks of associated with interface module installation on the Cisco NCS 4216 14RU:

Installing an Interface Module

Procedure


Step 1

Before inserting an interface module, make sure that the chassis is grounded.

Step 2

To insert the interface module, carefully align the edges of the interface module between the upper and lower edges of the router slot.

Step 3

Carefully slide the interface module into the router slot until the interface module makes contact with the backplane. The following figure shows how to install the interface module.

Note

 
Ensure that none of the slots remain empty, else insert the filler trays (A900-IMA-FILLER) in the respective slots.
Figure 17. Inserting an Interface Module

Step 4

Tighten the locking thumbscrews on both sides of the interface module. The recommended maximum torque is 5.5 in.-lb (.62 N-m).

Step 5

Connect all the cables to each interface module.


What to do next


Caution


Do not use interface module and power supply ejector handles to lift the chassis; using the handles to lift the chassis can deform or damage the handles.

Removing an Interface Module

Procedure


Step 1

To remove an interface module, disconnect all the cables from each interface module.

Step 2

Loosen the locking thumbscrews on both sides of the interface module.

Step 3

Slide the interface module out of the router slot by pulling on the handles. If you are removing a blank filler plate, pull the blank filler plate completely out of the router slot using the captive screws.

Step 4

If the interface module slot is meant to be empty, then ensure that blank filler plates are installed in the respective slots.


Hot-Swapping an Interface Module

The Cisco NCS 4216 14RU provides a feature that allows you to remove and replace an interface module without powering down the router. This feature, called hot-swapping or OIR, allows you to remove and replace a redundant module without disrupting router operation.

The Cisco NCS 4216 14RU does not support hot-swapping an interface module with another module of a different type. For example, you cannot swap an SFP Gigabit Ethernet module with a copper Gigabit Ethernet module without disrupting router operation.

  • If the TDM interface module is swapped with the Gigabit Ethernet module in the same slot or vice-versa, the router must be reloaded.

If you perform OIR on an interface module and move the module to a different slot, the router does not retain the module configuration; you must reconfigure the interface module.

Replacing a configured interface module with a different interface module in the same slot is not supported on the router.


Note


Always refer to Interface Module compatibility matrix tables in the Data Sheet before you swap any IM.
Table 1. Supported Hot Swapping Combinations

Interface Modules

NCS4216-RSP/Cisco IOS XE Release

SFP Combo IM—8-port Gigabit Ethernet (8X1GE) +

1-port 10 Gigabit Ethernet (1X10GE)

Swapping is allowed within Ethernet interface modules

8-port 10 Gigabit Ethernet Interface Module (8X10GE)

1-port 100 Gigabit Ethernet Interface Module (1X100GE)

2-port 100 Gigabit Ethernet (QSFP) Interface Module (2X100GE)1

2-port 40 Gigabit Ethernet QSFP Interface Module (2X40GE)

8/16-port 1 Gigabit Ethernet (SFP/SFP) + 1-port 10 Gigabit Ethernet (SFP+) / 2-port 1 Gigabit Ethernet (CSFP) Interface Module

1-port OC482/ STM-16 or 4-port OC-12/OC-3 / STM-1/STM-4 + 12-port T1/E1 + 4-Port T3/E3 CEM Interface Module

1-port OC-192 Interface Module with 8-port Low Rate CEM Interface Module (10G HO / 10G LO)

Swapping is allowed within TDM interface modules

48-port T1/E1 Interface Module

48-port T3/E3 Interface Module

1 IM supports only one port of 100G with RSP3 as QSFP28 on Port 0 in both slots 7 and 8.
2 Any of the 4 ports can be used as an OC48, but if a port is configured as OC48, then the remaining 3 ports are disabled.

When you remove or insert a redundant module while the router is powered on and running, the router does the following:

  1. Determines if there is sufficient power for the module.
  2. Scans the backplane for configuration changes.
  3. Initializes the newly inserted module. In addition, the system notes any removed modules and places those modules in the administratively shutdown state.
  4. Places any previously configured interfaces on the module back to the state they were in when they were removed.

The router runs diagnostic tests on any new interfaces and the test results indicate the following:

  • If the tests pass, the router is operating normally.
  • If the new module is faulty, the router resumes normal operation but leaves the new interfaces disabled.
  • If the diagnostic tests fail, the router stops operating, which usually indicates that the new module has a problem in the bus and must be removed.

Caution


To avoid erroneous failure messages, note the current configuration of all interfaces before you remove or replace an interface module, and allow at least 2 minutes for the system to reinitialize after a module has been removed or replaced. This time is recommended in order to allow for synchronization between components within the interface module and for synchronization with the standby RSP.


Installing the Power Supply

Category

Details

Tools/Equipment

  • #2 Phillips Dynamometric screwdriver
  • Medium slot-head screwdriver
  • Small slot-head screwdriver
  • Wire wrapper
  • Wire cutters
  • Wire strippers
  • Crimp tool
  • Open-end wrench or hex tube screw driver
  • Torque wrench
  • 1/4” socket wrench
  • Sockets
  • Manufacturer’s die for power lug
  • Fuse panel
  • Power cable (from fuse and alarm panel to assembly), 6 AWG, copper conductors, 194° F (90° C)
  • Suitable ground cable stranded

Prerequisite Procedures

Chassis is grouded

Required/As Needed

Required

Onsite/Remote

Onsite

Security Level

None

The Cisco NCS 4216 14RU router provides a choice of the following power supply:

  • 900 W DC power: - 40 VDC to -72 VDC

Note


The power on voltage is -42 VDC.

The DC power supply provides option to connect with two different sources (dual feed); positive (+) and negative (-) are marked on the PSU terminals.


Caution


The power supply must be wired before plugging the power supply in the chassis. Ensure the branch circuit breaker is turned off. Only after installing the power supply in the chassis, should the branch circuit breaker be turned on. The branch circuit breaker must be turned off before unplugging the power supply.


Each power supply provides a dual primary input power connection.


Warning


Read the installation instructions before connecting the system to the power source. Statement 10



Caution


Do not use interface module and power supply ejector handles to lift the chassis; using the handles to lift the chassis can deform or damage the handles.


Preventing Power Loss

Use the following guidelines to prevent power loss to the router.

  • To prevent loss of input power, ensure that the total maximum load on each circuit supplying the power supplies is within the current ratings of the wiring and breakers.
  • In some systems, you can use an UPS to protect against power failures at your site. Avoid UPS types that use ferroresonant technology. These UPS types can become unstable with systems like the Cisco NCS 4216 14RU, which can have substantial current draw fluctuations due to bursty data traffic patterns.

Use the information in the DC Power Supply Specifications table to estimate the power requirements and heat dissipation of a Cisco NCS 4216 14RU based on a given configuration of the router. Determining power requirements is useful for planning the power distribution system to support the router.

Power Connection Guidelines

This section provides guidelines for connecting the Cisco NCS 4216 14RU power supplies to the site power source.


Warning


Never defeat the ground conductor or operate the equipment in the absence of a suitably installed ground conductor. Contact the appropriate electrical inspection authority or an electrician if you are uncertain that suitable grounding is available. Statement 213



Warning


This product requires short-circuit (overcurrent) protection, to be provided as part of the building installation. Install only in accordance with national and local wiring regulations. Statement 1045


Guidelines for DC-Powered Systems

Basic guidelines for DC-powered systems include the following:

  • Each chassis power supply should have its own dedicated input power source. The source must comply with the safety extra-low voltage (SELV) requirements in the UL 60950, CSA 60950, EN 60950, and IEC 60950 standards.
  • The circuit must be protected by a dedicated two-pole circuit breaker. The circuit breaker should be sized according to the power supply input rating and local or national code requirements.
  • The circuit breaker is considered the disconnect device and should be easily accessible.
  • The system ground is the power supply and chassis ground.
  • Do not connect the DC return wire to the system frame or to the system grounding equipment.
  • Use the grounding lug to attach a wrist strap for ESD protection during servicing.

Installing the DC Power Supply

The sections describe how to install a DC power supply in the Cisco NCS 4216 14RU:


Note


If the voltage feed is less than 15 V then the system will report it as 0 V.

Note


This equipment is suitable for installation in Network Telecommunications Facilities and locations where the NEC applies.

Note


This equipment is suitable for installations utilizing the Common Bonding Network (CBN).

Note


The grounding architecture of this product is DC-Isolated (DC-I) for DC-powered products. DC-powered products have a nominal operating DC voltage of 48 VDC.

Installing the DC Power Supply Module

Perform the following procedure to install the power supply module:

Procedure

Step 1

Ensure that the system (earth) ground connection has been made. For ground connection installation instructions, see the Installing the Chassis Ground Connection section.

Step 2

If necessary, remove the blank power supply filler plate from the chassis power supply bay opening by loosening the captive installation screws.

Step 3

Verify that power to the DC circuit connected to the power supply you are installing is off. To ensure that power has been removed from the DC circuits, locate the circuit breakers for the DC circuits, switch the circuit breakers to the OFF position, and tape the circuit-breaker switches in the OFF position.

Step 4

Grasp the power supply handle with one hand. Place your other hand underneath the power supply, as shown in the figure below. Slide the power supply into the power supply bay. Make sure that the power supply is fully seated in the bay.

Figure 18. Installing the DC Power Supply

Step 5

Tighten the captive installation screws of the power supply. The recommended maximum torque is 5.5 in.-lb (.62 N-m).

If you are installing a redundant DC power supply, repeat these steps for the second power source.


Connecting DC Power Supply Unit (A900-PWR900-D2)

A900-PWR900-D2 is a dual feed 900W DC PSU. The DC power supply accepts a dual-hole type lug. The lug must be a UL listed, CSA certified and rated to accept the 8 AWG cable. The lug is assembled on the unit with two nuts.


Warning


Before performing any of the following procedures, ensure that power is removed from the DC circuit.


Tools and Equipment
  • Dual-hole lugs

  • Double barrel with inspection hole

  • Hole spacing is 5/8 in.

  • Lug tab width max 0.46 in.

  • Nuts

  • PSU can accommodate 10 – 6 AWG

  • Number 2 Phillips Screwdriver

  • 7 mm nut driver or 7 mm socket on a torque wrench

Procedure

Step 1

Locate the terminal block on the power supply unit.

Step 2

Flap open the front protective cover on the power supply unit.

Step 3

Use a wire-stripping tool to strip the ends of each of the two wires coming from the DC-input power source as recommended by the lug manufacturer.

Note

 
Stripping more than the recommended amount of wire can leave behind exposed wire from the terminal block after installation.

Step 4

Identify the positive and negative feed positions for the terminal block. The recommended wiring sequence is as in the figure below.

Step 5

Attach the lugs on the terminal block, see the figure below.

Figure 19. Power Supply with Lead Wires


1, 3

Negative (-) lead wire

2, 4

Positive (+) lead wire

Caution

 

Do not overtorque the fasteners of the terminal block. The recommended maximum torque is from 25 in.-lb (2.82 N-m).

Step 6

Use a tie wrap to secure the wires to the rack, so that the wires are not pulled from the terminal block by casual contact. Make sure the tie wrap allows for some slack in the wire.


Installing DC Power Feeds for Fan Tray


Caution


Cisco NCS 4216 14RU relies on the protective devices in the building installation to protect against short circuit, overcurrent, and ground faults. Ensure that the protective devices are properly rated and comply with national and local codes.



Note


Follow your local practices and requirements when installing power.

Perform the following procedure to install the power feeds.


Note


Ensure that power to DC circuit connected to the power supply you are about to install is switched off. To verify, locate the circuit breakers for the DC circuits, put the circuit breakers to the OFF position, and tape the circuit-breaker switches.

Note


Replace the fan tray only when both fan power feeds are active; violation may result in immediate shut down of the entire system.


Procedure

Step 1

Verify that the correct fuse and alarm panel are installed.

Step 2

Connect each distribution cable according to the fuse panel engineering specifications.

Step 3

Measure and cut the cables as required to reach the router from the fuse panel.

Step 4

Strip 1/2 inch (12.7 mm) of insulation from all power cables that you use.

Step 5

Crimp the lugs onto the ends of all the power distribution cables using the manufacturer’s suggested die for the lug.

Step 6

Remove the terminal block protective covers from the power distribution lugs.

Figure 20. Connecting DC Power Feeds

1, 3

Positive (+) lead wire

2, 4

Negative (-) lead wire

1, 2

Feed A

3, 4

Feed B

Step 7

Unscrew the nuts from the terminal block.

Step 8

Insert the lugs as shown in the figure above. Follow the fuse assignments to ensure the correct cabling of the battery and return to the shelf.

Note

 
The power lugs must be crimped horizontally with the power cables.

Step 9

Insert the lock washers and nuts to the terminal block (see the figure above). Tighten the nuts to a torque value of 20 in-lb (2.25 N-m).

Step 10

Reinstall the terminal block protective covers over the DC distribution lugs.


Activating the DC Power Supply

Perform the following procedure to activate the DC power supply:

Procedure

Step 1

Remove the tape from the circuit-breaker switch handle, and restore power by moving the circuit-breaker switch handle to the On (|) position.

Step 2

Verify power supply operation by checking if the power supply front panel LEDs are in the following states:

  • INPUT OK LED is green
  • OUTPUT FAIL LED is red

If the LEDs indicate a power problem, see the Troubleshooting section.

If you are installing a redundant DC power supply, ensure that each power supply is connected to a separate power source to prevent power loss during a power failure.

If you are installing a redundant DC power supply, repeat these steps for the second power source.


Activating the DC Power Supply for Fan Tray

Perform the following procedure to activate the DC power supply for the fan tray:

Procedure

Step 1

Remove the tape from the circuit-breaker switch handle, and restore power by moving the circuit-breaker switch handle to the On (|) position.

Step 2

Verify power supply operation by checking for the 48 V LED in the PSU fan tray:

  • INPUT OK LED is green
  • INPUT FAIL LED is red

If the LEDs indicate a power problem, see the Troubleshooting section.


Recommended Power Sequence

For the system to boot properly, we recommend you to power on the fan tray, followed by the chassis. If this sequence is not followed, the system goes for a power cycle and starts booting only after 2 minutes.


Note


The PSU fan tray LED remains red until the system boots.

Removing and Replacing the DC Power Supply

This section provides information about removing and replacing the DC power supply in the Cisco NCS 4216 14RU.


Note


The Cisco NCS 4216 14RU power supplies are hot-swappable. If you have installed redundant power supply modules, you can replace a single power supply without interrupting power to the router.

Caution


To avoid erroneous failure messages, allow at least 2 minutes for the system to reinitialize after a power supply has been removed or replaced.



Warning


When you install the unit, the ground connection must always be made first and disconnected last. Statement 1046



Warning


Before performing any of the following procedures, ensure that power is removed from the DC circuit. Statement 1003



Warning


Only trained and qualified personnel should be allowed to install, replace, or service this equipment. Statement 1030



Warning


Installation of the equipment must comply with local and national electrical codes. Statement 1074


Follow these steps to remove and replace the DC power supply on the Cisco NCS 4216 14RU:

Procedure


Step 1

Before servicing the power supply, switch off the circuit breaker in your equipment area. As an additional precaution, tape the circuit-breaker switch in the Off position.

Step 2

Slip on the ESD-preventive wrist strap that was included in the accessory kit.

Step 3

Switch the power supply circuit-breaker switch to the Off (O) position.

Step 4

Pull the terminal block plug connector out of the terminal block head in the power supply.

Step 5

Loosen the captive screws on the DC power supply.

Step 6

Grasping the power supply handle with one hand, pull the power supply out from the chassis while supporting it with the other hand.

Step 7

Replace the DC power supply within 5 minutes. If the power supply bay is to remain empty, install a blank filler plate (Cisco part number A900-PWR-BLANK) over the opening, and secure it with the captive installation screws.


Connecting the Cisco NCS 4216 14RU Router to the Network

The sections describe how to connect cables on the Cisco NCS 4216 14RU.


Note


When installing the cabling to the RSPs, we recommend that you leave a service loop of extra cabling sufficient to allow for fan tray removal.

Connecting Console Cables

The sections describe how to connect to the Cisco NCS 4216 14RU using console cables.


Note


You cannot use the USB and RS232 console ports at the same time; if you insert the USB cable into the router, the RS232 port is disabled.

Connecting to the Serial Port using Microsoft Windows

This procedure shows how to connect to the serial port using Microsoft Windows.


Note


Install the USB device driver before establishing a physical connection between the router and the PC, by using the USB Console cable plugged into the USB serial port. Otherwise, the connection will fail. For more information, see the Installing the Cisco Microsoft Windows USB Device Driver section.
Procedure

Step 1

Connect the end of the console cable with the RJ45 connector to the light blue console port on the router. or Connect a USB Type A-to-Type A cable to the USB console port as shown in the figure below. If you are using the USB serial port for the first time on a Windows-based PC, install the USB driver now according to the instructions in the following sections.

  • Installing the Cisco Microsoft Windows XP USB Driver section
  • Installing the Cisco Microsoft Windows 2000 USB Driver section
  • Installing the Cisco Microsoft Windows Vista USB Driver section

Note

 
You cannot use the USB port and the EIA port concurrently. See the Connecting to the Auxiliary Port section. When the USB port is used it takes priority over the RJ45 EIA port.

Note

 
The USB Type A-to-Type A cable is not included with the Cisco NCS 4216 14RU; it is ordered separately.

Step 2

Connect the end of the cable with the DB-9 connector (or USB Type-A) to the terminal or PC. If your terminal or PC has a console port that does not accommodate a DB-9 connector, you must provide an appropriate adapter for that port.

Step 3

To communicate with the router, start a terminal emulator application, such as Microsoft Windows HyperTerminal. This software should be configured with the following parameters:

  • 9600 baud
  • 8 data bits
  • no parity
  • 1 stop-bit
  • no flow control
Figure 21. Connecting the USB Console Cable to the Cisco NCS 4216 14RU

1

USB Type-A console port

2

USB 5-pin mini USB Type-B to USB Type-A console cable

3

USB Type-A


Connecting to the Console Port using Mac OS X

This procedure describes how to connect a Mac OS X system USB port to the console using the built in OS X Terminal utility.

Procedure

Step 1

Use the Finder to go to Applications > Utilities > Terminal.

Step 2

Connect the OS X USB port to the router.

Step 3

Enter the following commands to find the OS X USB port number:

Example:

macbook:user$ cd /dev
macbook:user$ ls -ltr /dev/*usb*
crw-rw-rw-  1 root    wheel       9,  66 Apr  1 16:46 tty.usbmodem1a21 DT-macbook:dev user$

Step 4

Connect to the USB port with the following command followed by the router USB port speed

Example:

macbook:user$ screen /dev/tty.usbmodem1a21 9600

To disconnect the OS X USB console from the Terminal window

Enter Ctrl-a followed by Ctrl-\


Connecting to the Console Port using Linux

This procedure shows how to connect a Linux system USB port to the console using the built in Linux Terminal utility.

Procedure

Step 1

Open the Linux Terminal window.

Step 2

Connect the Linux USB port to the router.

Step 3

Enter the following commands to find the Linux USB port number:

Example:

root@usb-suse# cd /dev
root@usb-suse /dev# ls -ltr *ACM*
crw-r--r--    1 root     root     188,   0 Jan 14 18:02 ttyACM0
root@usb-suse /dev#

Step 4

Connect to the USB port with the following command followed by the router USB port speed:

Example:

root@usb-suse /dev# screen /dev/ttyACM0 9600

To disconnect the Linux USB console from the Terminal window

Enter Ctrl-a followed by : then quit


Installing the Cisco Microsoft Windows USB Device Driver

A USB device driver must be installed the first time a Microsoft Windows-based PC is connected to the USB serial port on the router.

Installing the Cisco Microsoft Windows XP USB Driver

Download the driver for your router model from the Tools and Resources Download Software site, USB Console Software category, at the following URL:

https://www.cisco.com/c/en/us/support/index.html

Procedure

Step 1

Unzip the file Cisco_usbconsole_driver_X_X.zip (where X is a revision number).

Step 2

If using 32-bit Windows XP double-click the file setup.exe from the Windows_32 folder, or if using 64-bit Windows XP double-click the file setup(x64).exe from the Windows_64 folder.

Step 3

Follow the instructions on your screen to complete the installation.

Step 4

Connect the USB cable to the PC and router USB console ports. The EN LED for the USB console port turns green, and within a few moments the Found New Hardware Wizard appears. Following the instructions to complete the installation of the driver.

The USB console is ready for use.


Installing the Cisco Microsoft Windows 2000 USB Driver
Procedure

Step 1

Obtain the file Cisco_usbconsole_driver.zip from the Cisco.com web site and unzip it.

Step 2

Double-click the file setup.exe.

Step 3

Follow the instructions on your screen to complete the installation.

Step 4

Connect the USB cable to the PC and router USB console ports. The EN LED for the USB console port turns green, and within a few moments a series of Found New Hardware Wizard windows appear. Following the instructions to complete the installation of the driver.

The USB console is ready for use.


Installing the Cisco Microsoft Windows Vista USB Driver
Procedure

Step 1

Obtain the file Cisco_usbconsole_driver.zip from the Cisco.com web site and unzip it.

Step 2

If using 32-bit Windows Vista double-click the file setup.exe from the Windows_32 folder, or if using 64-bit Windows Vista double-click the file setup(x64).exe from the Windows_64 folder.

Step 3

Follow the instructions on your screen to complete the installation.

Step 4

Connect the USB cable to the PC and router USB console ports. The EN LED for the USB console port turns green, and within a few moments a pop up window stating “Installing device driver software” appears. Following the instructions to complete the installation of the driver.

The USB console is ready for use.


Uninstalling the Cisco Microsoft Windows USB Driver

This section provides instructions for how to uninstall the Cisco Microsoft Windows USB device driver.

Uninstalling the Cisco Microsoft Windows XP and 2000 USB Driver

This procedure shows you how to uninstall both the Microsoft Windows XP and 2000 USB driver. The driver can be removed using the Windows Add Remove Programs utility or the setup.exe program.

Using the Add Remove Programs Utility


Note


Disconnect the router console terminal before uninstalling the driver.
Procedure

Step 1

Click Start > Control Panel > Add or Remove Programs.

Step 2

Scroll to Cisco Virtual Com and click Remove.

Step 3

When the Program Maintenance window appears, select the Remove radio button. Click Next.


Uninstalling the Cisco Microsoft Windows Vista USB Driver

This procedure shows you how to uninstall the Microsoft Windows Vista USB driver.


Note


Disconnect the router console terminal before uninstalling the driver.
Procedure

Step 1

Run the setup.exe for Windows 32-bit or setup(x64).exe for Windows-64bit. Click Next.

Step 2

The InstallShield Wizard for Cisco Virtual Com appears. Click Next.

Step 3

When the Program Maintenance window appears, select the Remove radio button. Click Next.

Step 4

When the Remove the Program window appears, click Remove.

Note

 
If a User Account Control warning appears, click “Allow - I trust this program...” to proceed.

Step 5

When the InstallShield Wizard Completed window appears click Finish.


Connecting to the Auxiliary Port

When a modem is connected to the auxiliary port, a remote user can dial in to the router and configure it. Use a light blue console cable and the DB-9-to-DB-25 connector adapter.


Note


The console cable and DB-9-to-DB-25 connector are not included with the Cisco NCS 4216 14RU; they are ordered separately.

To connect a modem to the router, follow these steps:

Procedure


Step 1

Connect the RJ45 end of the adapter cable to the black AUX port on the router, as shown in the figure below.

Figure 22. Connecting a Modem to the Cisco NCS 4216 14RU

1

RJ45 AUX port

3

RJ45 to DB-9

2

DB-9 to DB-25 adapter

4

Modem

Step 2

Connect the DB-9 end of the console cable to the DB-9 end of the modem adapter.

Step 3

Connect the DB-25 end of the modem adapter to the modem.

Step 4

Make sure that your modem and the router auxiliary port are configured for the same transmission speed (up to 115200 bps is supported) and for mode control with data carrier detect (DCD) and data terminal ready (DTR) operations.


Connecting a Management Ethernet Cable

When using the Ethernet Management port in the default mode (speed-auto and duplex-auto) the port operates in auto-MDI/MDI-X mode. The port automatically provides the correct signal connectivity through the Auto-MDI/MDI-X feature. The port automatically senses a crossover or straight-through cable and adapts to it.

However, when the Ethernet Management port is configured to a fixed speed (10 or 100 Mbps) through command-line interface (CLI) commands, the port is forced to MDI mode.

When in a fixed-speed configuration and MDI mode:

  • Use a crossover cable to connect to an MDI port
  • Use a straight-through cable to connect to an MDI-X port

Warning


To comply with the Telcordia GR-1089 NEBS standard for electromagnetic compatibility and safety, connect the Management Ethernet ports only to intra-building or unexposed wiring or cable. The intrabuilding cable must be shielded and the shield must be grounded at both ends. The intra-building port(s) of the equipment or subassembly must not be metallically connected to interfaces that connect to the OSP or its wiring. These interfaces are designed for use as intra-building interfaces only (Type 2 or Type 4 ports as described in GR-1089-CORE) and require isolation from the exposed OSP cabling. The addition of Primary Protectors is not sufficient protection in order to connect these interfaces metallically to OSP wiring.


Installing and Removing SFP

The Cisco NCS 4216 14RU supports a variety of SFP modules, including optical and Ethernet modules. For information on how to install and remove SFP modules, see the documentation for the SFP module at

http://www.cisco.com/en/US/partner/products/hw/modules/ps5455/prod_installation_guides_list.html

For information about inspecting and cleaning fiber-optic connections, see http://www.cisco.com/en/US/partner/tech/tk482/tk876/technologies_white_paper09186a0080254eba.shtml


Caution


We recommend that you wait 30 seconds between removal and insertion of an SFP on an interface module. This time is recommended to allow the transceiver software to initialize and synchronize with the standby RSP. Changing an SFP more quickly could result in transceiver initialization issues that disable the SFP.


Connecting a USB Flash Device

To connect a USB flash device to the Cisco NCS 4216 14RU, insert the memory stick in the USB port labeled MEM. The Flash memory module can be inserted in only one way, and can be inserted or removed regardless of whether the router is powered up or not.

The following figure shows the USB port connector on the Cisco NCS 4216 14RU.

Figure 23. Cisco NCS 4216 14RU Flash Token Memory Stick

Removing a USB Flash Device

To remove and then replace a USB flash token memory stick from a Cisco NCS 4216 14RU, follow these steps:

Procedure

Step 1

Pull the memory stick from the USB port.

Step 2

To replace a Cisco USB Flash memory stick, simply insert the module into the USB port labeled MEM as shown in the Cisco NCS 4216 14RU Flash Token Memory Stick figure. The Flash memory module can be inserted in only one way, and can be inserted or removed regardless of whether the router is powered up or not.

Note

 
You can insert or remove the memory stick whether the router is powered on or not.

This completes the USB Flash memory installation procedure.


Connecting Timing Cables

The sections describe how to connect timing cables to the Cisco NCS 4216 14RU:


Note


When installing the cabling to the RSPs, we recommend that you leave a service loop of extra cabling sufficient to allow for fan tray removal.

Connecting Cables to the BITS Interface

The following steps describe how to connect a cable to the router BITS port:

Procedure

Step 1

Confirm that the router is powered off.

Step 2

Connect one end of the cable to the BITS port using a straight-through, shielded RJ48C-to-RJ48C cable.

Step 3

Connect the other end to the BTS patch or demarcation panel at your site.

Step 4

Turn on power to the router.

For information about the BITS port pinouts and using wire wrap adapters to connect to BITS interface, see the Troubleshooting section.

Note

 
Use of two BITS sources or a Y-cable is optional. Each BITS input port is routed to both RSPs, so that SETS device on each RSP has visibility to both BITS inputs.

Warning

 

To comply with the Telcordia GR-1089 NEBS standard for electromagnetic compatibility and safety, connect the BITS ports only to intra-building or unexposed wiring or cable. The intrabuilding cable must be shielded and the shield must be grounded at both ends. The intra-building port(s) of the equipment or subassembly must not be metallically connected to interfaces that connect to the OSP or its wiring. These interfaces are designed for use as intra-building interfaces only (Type 2 or Type 4 ports as described in GR-1089-CORE) and require isolation from the exposed OSP cabling. The addition of Primary Protectors is not sufficient protection in order to connect these interfaces metallically to OSP wiring.


Connecting Cables to a GNSS Interface

The sections describe how to connect cables from the Cisco NCS 4216 14RU to a GPS unit for input or output timing of frequency:


Note


A Y-cable is required to connect to a primary and backup RSP in order to ensure that the router continues to transmit timing signals in the event of a network failure. For a mini-coax connection, this Y-cable can be part number CAB-BNC-7INY (7 inch BNC Y-cable). For an Ethernet connection, this Y-cable can be a RJ45 Cat5 1-to-2 splitter (3 female port RJ45 connector).

Note


When installing the cabling to the RSPs, we recommend that you leave a service loop of extra cabling sufficient to allow for fan tray removal.
Connecting Cables to the Input 10Mhz or 1PPS Interface
Procedure

Step 1

Connect one end of a mini-coax Y-cable to the GPS unit.

Step 2

Connect one end of the split-side Y-cable mini-coax to the 10Mhz or 1PPS port on the primary RSP of the Cisco NCS 4216 14RU.

Step 3

Connect the other end of the split-side Y-cable mini-coax to the 10Mhz or 1PPS port on the backup RSP of the Cisco NCS 4216 14RU.


Connecting Cables to the Output 10Mhz or 1PPS Interface
Procedure

Step 1

Connect one end of a mini-coax Y-cable to the Slave unit.

Step 2

Connect one end of the split-side Y-cable mini-coax to the 10Mhz or 1PPS port on the primary RSP of the Cisco NCS 4216 14RU.

Step 3

Connect the other end of the split-side Y-cable mini-coax to the 10Mhz or 1PPS port on the backup RSP of the Cisco NCS 4216 14RU.


Connecting Cables to the ToD Interface
Procedure

Step 1

Connect one end of a straight-through Ethernet cable to the GPS unit.

Step 2

Connect one end of the split-side Y-cable Ethernet to the ToD port on the primary RSP of the Cisco NCS 4216 14RU.

Step 3

Connect the other end of the split-side Y-cable Ethernet to the ToD port on the backup RSP of the Cisco NCS 4216 14RU.

Note

 
For instructions on how to configure clocking, see the Cisco NCS 4216 Software Configuration Guide.

Warning

 

To comply with the Telcordia GR-1089 NEBS standard for electromagnetic compatibility and safety, connect the ToD ports only to intra-building or unexposed wiring or cable. The intrabuilding cable must be shielded and the shield must be grounded at both ends. The intra-building port(s) of the equipment or subassembly must not be metallically connected to interfaces that connect to the OSP or its wiring. These interfaces are designed for use as intra-building interfaces only (Type 2 or Type 4 ports as described in GR-1089-CORE) and require isolation from the exposed OSP cabling. The addition of Primary Protectors is not sufficient protection in order to connect these interfaces metallically to OSP wiring.

Note

 
For more information about GPS port pinouts, see the Troubleshooting section.

Connecting a Cable to the GNSS Antenna Interface


Note


The GNSS module is not hot swappable.

Procedure


Step 1

Connect one end of a shielded coaxial cable to the GNSS RF IN port.

Step 2

Connect the other end of the shielded coaxial cable to the GNSS antenna after the primary protector.

Note

 
The GNSS RF In port should have a primary protector installed to meet the Local Safety guidelines.
  • The GNSS RF In coaxial cable shield must be connected to the Facility Equipment Ground through the chassis. The chassis must have the ground wire connected to the Facility Equipment Ground.
Figure 24. Installing the GNSS Module in the RSP

1

Screw on the GNSS Module

2

Inserting the GNSS Module


Connecting Ethernet Cables

The Cisco NCS 4216 14RU interface modules support RJ45 or SFP Ethernet ports. For instructions on how to connect cables to Ethernet SFP ports, see the Connecting Cables to SFP Modules section.

The RJ45 port supports standard straight-through and crossover Category 5 unshielded twisted-pair (UTP) cables. Cisco Systems does not supply Category 5 UTP cables; these cables are available commercially.


Warning


To comply with the Telcordia GR-1089 NEBS standard for electromagnetic compatibility and safety, connect the Gigabit Ethernet ports only to intra-building or unexposed wiring or cable. The intrabuilding cable must be shielded and the shield must be grounded at both ends. The intra-building port(s) of the equipment or subassembly must not be metallically connected to interfaces that connect to the OSP or its wiring. These interfaces are designed for use as intra-building interfaces only (Type 2 or Type 4 ports as described in GR-1089-CORE) and require isolation from the exposed OSP cabling. The addition of Primary Protectors is not sufficient protection in order to connect these interfaces metallically to OSP wiring.



Note


When installing the cabling to the RSPs, we recommend that you leave a service loop of extra cabling sufficient to allow for fan tray removal.

Follow these steps to connect the cable to a copper Gigabit Ethernet port:

Procedure


Step 1

Confirm that the router is powered off.

Step 2

Connect one end of the cable to the Gigabit Ethernet port on the router.

Step 3

Connect the other end to the BTS patch or demarcation panel at your site.


Connecting T1/E1 cables

The physical layer interface for the Cisco NCS 4216 T1/E1 port is a customer-installed high-density connector. The high-density connector has thumbscrews which should be screwed into the interface when the cable is installed.


Note


Patch panels are required in order to connect the high-density interface connectors to individual T1/E1 lines.

Installing the Cable Connectors

Patch Panel cables

The patch panel cable connects the interface modules with the patch panel.

Each cable connects one VHDCI connector on the interface module to the connector on the patch panel. A set of three cables is required to connect one interface module to one 48-port patch panel.

The following table shows details of the patch panel cables:

Patch Panel Cable

Description

CABLE-16TDM-C

16-port cable for TDM CEM Interface Module, no redundancy, 6 feet in length

CABLE-16TDM-C-L1

16-port cable for TDM CEM Interface Module, no redundancy, 4.7 feet in length

CABLE-16TDM-C-L2

16-port cable for TDM CEM Interface Module, no redundancy, 5.3 feet in length

CABLE-16TDM-C-L3

16-port cable for TDM CEM Interface Module, no redundancy, 7.1 feet in length

CABLE-16TDM-C-L4

16-port cable for TDM CEM Interface Module, no redundancy, 8 feet in length

Connecting Cables to the Patch Panel

Figure 25. Interface Module with the Connector
Figure 26. Patch Panel with the Connector

If you are connecting two T1/E1 interfaces to each other, you must cable both interfaces’ patch panels together using a T1 straight-through shielded cables. If both T1/E1 interfaces are connected to their patch panels in a different configuration, use a T1 straight-through cable (standard RJ48C patch cable) to connect the patch panels.


Caution


The intra-building port(s) of the equipment or subassembly is suitable for connection to intra-building or unexposed wiring or cabling only. The intra-building port(s) of the equipment or subassembly must not be metallically connected to interfaces which connect to the OSP or its wiring. These interfaces are designed for use as intra-building interfaces only (Type 2 or Type 4 ports as described in GR-1089-CORE) and require isolation from the exposed OSP cabling. The addition of primary protectors is not sufficient protection in order to connect these interfaces metallically to OSP wiring. Statement 7005


Patch Panel Connectors

The PANEL-48-1-DIN and PANEL-48-3-DIN provide 48 DIN 1.0/2.3 connectors on the front side of the patch panel. These connectors terminate to 75 ohm coaxial cable through the DIN plug.

The PANEL-48-1-RJ48 provide 48 RJ45 connector on the front side of the patch panel. These connectors terminate to 110 ohm T1/E1 cable through a RJ45 connector.

The PANEL-48-1-AMP64 provide 48 port 110 ohm T1/E1 lines via 4 AMP64 connectors on the front of the patch panel.

The PANEL-48-3-HDBNC Provide 48 HDBNC connectors on the front of the patch panel. These connectors terminate to 75 ohm coaxial cable through the HDBNC plug.

Figure 27. Patch Panel Connector on the Patch Panel

Installing Patch Panel

To install the brackets on the rear of the patch panel, perform these steps:

Procedure

Step 1

Remove the larger (M4) rack mount screws (as indicated in the Rack Mount Screws figure below) from both sides. To secure the brackets, follow the instructions in Step-3.

Step 2

Remove the patch panel rack-mount brackets from the accessory kit and position them beside the patch panel.

Step 3

Position the brackets against the patch panel sides, and align with the screw holes. Secure the rack mount bracket to patch panel using a torque of 13.2 in.-lb (1.5 N-m) see the figure below.

Figure 28. Rack Mount Screws

(1) Rack mount screws to secure rack mount brackets on both the sides.

Figure 29. Patch Panel Front View with Brackets


Step 4

Position the cable management guides against the mounting brackets on the patch panel, see the figure below.

Figure 30. Patch Panel Front View with Brackets and Guides


Figure 31. Patch Panel Rear View with Brackets and Guides


Step 5

Secure the guides to the brackets with the screws. The recommended maximum torque is 28 in.-lb (3.16 N-m).

Step 6

Position the patch panel with brackets and guide onto the rack and secure with screws provided. The recommended maximum torque is 28 in.-lb (3.16 N-m), see the figure below.

Note

 

Cable brackets should be assembled according to the PID used as different PIDs have different set and quantity of brackets. Refer figures 110 to 115 for PID and cable bracket details.

Figure 32. Patch Panel Front View with Brackets and Guides Installed on Rack


Figure 33. Patch Panel Rear View with Brackets and Guides Installed on Rack


Figure 34. PANEL-16-DIN Patch Panel Mounting Installed on Rack
Figure 35. PANEL-48-1-AMP64
Figure 36. PANEL-48-1-DIN
Figure 37. PANEL-48-1-RJ48
Figure 38. PANEL-48-3-DIN

Note

 
The installation of PANEL-48-1-AMP64, PANEL-48-1-DIN, PANEL-48-1-RJ48, and PANEL-48-3-DIN is similar to the installation steps mentioned above.
Figure 39. PANEL-48-3-HDBNC
Figure 40. PANEL-144-1-AMP64
Figure 41. Example of 120⁰ Exit Cable Hood

The following table shows details of the 120⁰ exit cable hood:

Table 2. Cable Routing Recommendation for Panel-144-1-AMP64

1

120⁰ exit cable hood with left routing should be used for centre ports on the Tx side.

2

120⁰ exit cable hood with right routing should be used for centre ports on the Rx side.


Install 3G Patch Panel

You can choose to either set up the Cisco ASR 903 3G patch panel on a rack or wall mount it.

Install Rack Brackets
Procedure

Step 1

Connect the grounding lugs using a crimping tool (as specified by the ground lug manufacturer), crimp the ground lug to the ground wire.

Step 2

Use a 6 AWG ground wire to connect the other end to a suitable grounding point at your site.

Figure 42. Patch Panel Grounding - Single
Figure 43. Patch Panel Grounding - Dual

Step 3

Position the patch panel in the rack as follows:

  • If the front of the patch panel is at the front of the rack, insert the rear of the chassis between the mounting posts.
  • If the rear of the patch panel is at the front of the rack, insert the front of the chassis between the mounting posts.

Step 4

Align the mounting holes in the bracket with the mounting holes in the equipment rack.

Figure 44. Installing the Patch Panel - Single in a 19-inch Rack
Figure 45. Installing the Patch Panel - Dual in a 19-inch Rack
Figure 46. Installing the Patch Panel - Single in a 21-inch Rack
Figure 47. Installing the Patch Panel - Dual in a 21-inch Rack
Figure 48. Installing the Patch Panel - Single in a 23-inch Rack
Figure 49. Installing the Patch Panel - Dual in a 23-inch Rack

Step 5

Secure the brackets to the chassis with the screws. The recommended maximum torque is 28 in.-lb (3.16 N-m).

  • EIA 19 and 23 inches mounting brackets for both single and double 3G interface module patch panels.

  • ETSI 21 inches mounting brackets for both single and double 3G interface module patch panels.


Set up 3G Patch Panel on Rack

To install the optional cable management brackets, perform these steps:

Procedure

Step 1

Position the cable management brackets against the front of the chassis and align the screw holes, as shown in the figure.

Step 2

Secure the cable management brackets with the screws. The recommended maximum torque is 10 in.-lb (1.12 N-m).

Figure 50. Attaching 19-inch Brackets to Patch Panel - Single
Figure 51. Installing 19-inch Brackets on to Rack - Single
Figure 52. Attaching 19-inch Brackets to Patch Panel - Dual
Figure 53. Installing 19-inch Brackets on to Rack - Dual
Figure 54. Attaching 21-inch Brackets to Patch Panel - Single
Figure 55. Installing 21-inch Brackets on to Rack - Single
Figure 56. Attaching 21-inch Brackets to Patch Panel - Dual
Figure 57. Installing 21-inch Brackets on to Rack - Dual
Figure 58. Attaching 23-inch Brackets to Patch Panel - Single
Figure 59. Installing 23-inch Brackets on to Rack - Single
Figure 60. Attaching 23-inch Brackets to Patch Panel - Dual
Figure 61. Installing 23-inch Brackets on to Rack - Dual

Wall Mount 3G Patch Panel
Before you begin

You must first install the mounting brackets and cable guides on to the patch panel before you mount it on the wall. You can use the same rack mount brackets (700-113653-01) for wall mount.

Procedure

Step 1

Remove the mounting brackets from the accessory kit and position them beside the device.

Note

 
You can install the brackets as shown in the figure.
Figure 62. Wall Mount - Single
Figure 63. Wall Mount - Dual

Step 2

Secure the bracket to the device with the recommended maximum torque of 10 inch-pounds (1.1 newton meters).

Step 3

Position the device vertically on the wall.

Caution

 
Before mounting the device, ensure that all unused holes at the sides of the device are protected with screws.

Step 4

Use a tape measure and level to verify that the device is installed straight and on level.


Patch Panel Dimensions

Following are the various patch panel dimensions.

Figure 64. Patch Panel Without Brackets

Figure 65. Patch Panel With Brackets

Figure 66. AMP64 Patch Panel With Brackets

Figure 67. 3G Patch Panel Without Brackets - Single

Figure 68. 3G Patch Panel Without Brackets - Dual

Patch Panel Pinout

Given below are the pinout information for the regular crossover and the straight-through cable patch panel.

Table 3. Pinout Details

Pin #

Crossover

Straight-through

1

Receive Tip

Transmit Tip

2

Receive Ring

Transmit Ring

3

4

Transmit Tip

Receive Tip

5

Transmit Ring

Receive Ring

6

7

8

Patch Panel Cabling for Redundancy

You can connect the patch panels with the interface modules for redundancy, using the Y-cables. The Y-cable stub lengths are reduced, so that the cable does not exceed from the rack spacer. The Y-cables are numbered based on the different stub length. Cable lengths differ for even numbered and odd numbered slots in the chassis.

Figure 69. Y-Cable Routing

Note


Do not try to interchange the cables as the length may vary based on odd and even slots.
Table 4. Y-Cable for Redundancy

Bundle PID

Y-Cable Hood Marking

Description

CABLE-16TDM-R1EL1

T1/E1-Cable S-3

16-port cable for TDM CEM Interface Module, 42 inches cable length and 10 inches stub length, even slot

T1/E1 Cable S-2

16-port cable for TDM CEM Interface Module, 42 inches cable length and 7.5 inches stub length, even slot

T1/E1 Cable S-1

16-port cable for TDM CEM Interface Module, 42 inches cable length and 6.5 inches stub length, even slot

CABLE-16TDM-R1EL2

T1/E1-Cable M-3

16-port cable for TDM CEM Interface Module, 62 inches cable length and 10 inches stub length, even slot

T1/E1-Cable M-2

16-port cable for TDM CEM Interface Module, 62 inches cable length and 7.5 inches stub length, even slot

T1/E1-Cable M-1

16-port cable for TDM CEM Interface Module, 62 inches cable length and 6.5 inches stub length, even slot

CABLE-16TDM-R1EL3

T1/E1-Cable L-3

16-port cable for TDM CEM Interface Module, 78 inches cable length and 10 inches stub length, even slot

T1/E1-Cable L-2

16-port cable for TDM CEM Interface Module, 78 inches cable length and 7.5 inches stub length, even slot

T1/E1-Cable L-1

16-port cable for TDM CEM Interface Module, 78 inches cable length and 6.5 inches stub length, even slot

CABLE-16TDM-R3EL1

T3/E3-Cable S-3

16-port cable for TDM CEM Interface Module, 42 inches cable length and 10 inches stub length, even slot

T3/E3-Cable S-2

16-port cable for TDM CEM Interface Module, 42 inches cable length and 7.5 inches stub length, even slot

T3/E3-Cable S-1

16-port cable for TDM CEM Interface Module, 42 inches cable length and 6.5 inches stub length, even slot

CABLE-16TDM-R3EL2

T3/E3-Cable M-3

16-port cable for TDM CEM Interface Module, 62 inches cable length and 10 inches stub length, even slot

T3/E3-Cable M-2

16-port cable for TDM CEM Interface Module, 62 inches cable length and 7.5 inches stub length, even slot

T3/E3-Cable M-1

16-port cable for TDM CEM Interface Module, 62 inches cable length and 6.5 inches stub length, even slot

CABLE-16TDM-R3EL3

T3/E3-Cable L-3

16-port cable for TDM CEM Interface Module, 78 inches cable length and 10 inches stub length, even slot

T3/E3-Cable L-2

16-port cable for TDM CEM Interface Module, 78 inches cable length and 7.5 inches stub length, even slot

T3/E3-Cable L-1

16-port cable for TDM CEM Interface Module, 78 inches cable length and 6.5 inches stub length, even slot

CABLE-16TDM-R1OL1

T1/E1-Cable S-3

3 x 16-port cables for TDM CEM Interface Module, 42 inches cable length and 10 inches stub length, odd slot

CABLE-16TDM-R1OL2

T1/E1-Cable M-3

3 x 16-port cables for TDM CEM Interface Module, 62 inches cable length and 10 inches stub length, odd slot

CABLE-16TDM-R1OL3

T1/E1-Cable L-3

3 x 16-port cables for TDM CEM Interface Module, 78 inches cable length and 10 inches stub length, odd slot

CABLE-16TDM-R3OL1

T3/E3-Cable S-3

3 x 16-port cables for TDM CEM Interface Module, 42 inches cable length and 10 inches stub length, odd slot

CABLE-16TDM-R3OL2

T3/E3-Cable M-3

3 x 16-port cables for TDM CEM Interface Module, 62 inches cable length and 10 inches stub length, odd slot

CABLE-16TDM-R3OL3

T3/E3-Cable L-3

3 x 16-port cables for TDM CEM Interface Module, 78 inches cable length and 10 inches stub length, odd slot

Connecting the Fan Tray Alarm Port

The fan tray includes an alarm port that maps to four dry contact alarm inputs.

The pins on the alarm port are passive signals and can be configured as Normally Open (an alarm generated when current is interrupted) or Normally Closed (an alarm is generated when a circuit is established) alarms. You can configure each alarm input as critical, major, or minor. An alarm triggers alarm LEDs and alarm messages. The relay contacts can be controlled through any appropriate third-party relay controller. Ensure that the shield is terminated to ground at both ends. The open and close configuration is an option controlled in IOS.


Warning


To comply with the Telcordia GR-1089 NEBS standard for electromagnetic compatibility and safety, connect the alarm ports only to intra-building or unexposed wiring or cable. The intrabuilding cable must be shielded and the shield must be grounded at both ends. The intra-building ports of the equipment or subassembly must not be metallically connected to interfaces that connect to the OSP or its wiring. These interfaces are designed for use as intra-building interfaces only (Type 2 or Type 4 ports as described in GR-1089-CORE) and require isolation from the exposed OSP cabling. The addition of Primary Protectors is not sufficient protection in order to connect these interfaces metallically to OSP wiring.


Only Pins 1, 2, 4, 6, and 8 are available for customer use. The remaining pins are for Cisco manufacturing test, and should not be connected. Use a shielded cable for connection to this port for EMC protection. External Alarm Input Pinout table summarizes the pinouts on the alarm port in the Troubleshooting section.

Procedure


Step 1

Attach a RJ45 cable to the alarm port.

Step 2

Attach the other end of the RJ45 cable to the relay controller.


What to do next

For information about how to map alarm inputs to critical, major, and minor alarm conditions, see the Cisco NCS 4216 Software Configuration Guide.

Connector and Cable Specifications

For more information on cable specifications and pinouts, see the Troubleshooting section.